Қыздырғыштардың алдындағы газ қысымы


КІРІСПЕ
Автоматтандырудың даму тарихы өздігімен әрекет ететін құрылғылардың пайда болуынан басталады. Қазіргі уақытта технологиялық процесті автоматты басқару жүйесін қолдануды қажет етпейтін өндіріс саласы жоқ. ТПБАЖ-ның негізгі артықшылықтары басқару процесінде адам фоктарын төмендету немесе мүлдем алшақтау, жұмыс персоналын қысқарту, шикізат шығынын азайту, бастапқы өнімнің сапасын арттыру және өндіріс тиімділігін ұлғайту болып табылады. Автоматты басқару жүйенің орындайтын негізгі функцияларын бақылау және басқару, мәліметтердің алмасуы, ақпаратты өңдеу, жинау және сақтау, дабыл сигналдарын қалыптастыру, графиктерді және есептемені жасау құрайды. Жалпы алынып отырған тақырып «Бу - қазандығын автоматтандыру», соныменбу қазандығы - оттығы бар және онда жанатын отын өнімдерімен жылытылатын және осы құрылғыда қолданылатын будың атмосфералық қысымнан жоғары қысым алуға тағайындалған құрылғы. Осы Техникалық регламентте қазан түсінігінде су жылыту немесе бу қазандығы немесе оның кез келген үйлесімі түріндегі түсінік қолданылады.
Кейбір реттеуші бөліктердің шығыс мәндері бір уақытта басқаларына
қатысты кіріс мәндері болып табылады.
Мысалы, қазандықта қызған бу шығыны VT
отын шығынына байланысты шығыс шама болып табылады, ал қызған будың
температурасы мен қысымына қатысты кіріс шама болып келеді және
барабандағы бу қысымы Rb отын шығыны бойынша шығыс шама болса, ал
барабандағы су деңгейін реттеу НB бойынша кіріс шама болып келеді.
Қазандық басқару обьектісі ретінде бірнеше кіріс және шығыс шамалары
байланысқан күрделі динамикалық жүйе болып табылады. Автоматтандыру заманауи өндірістің даму негізі және ғылыми-техникалық процестің негізгі бағыты болып табылады. Өнеркәсіпті автоматтандырудың негізгі мақсаты еңбек нәтижелілігін арттыру, өндірілетін өнімнің сапасын арттыру және өндірістің барлық ресурстарын ұтымды қолдану болып табылады.
1 ТЕХНОЛОГИЯЛЫҚ БӨЛІМ
- Бу қазандығын қысқаша сипаттамасы
Теплогор құю-механикалық зауытының қазандығы ыстық су дайындауға және цехтарды жылытуға, бу шығаруға арналған. Жылу беру жүйесі жабық. Қазандыққа арналған отын Qн = 8485 ккал/м3 жану жылуы болып табылады.
Қазандық бөлмесі екі қыздырғышпен жабдықталған ДКВР - 20/13 бу қыздырғышсыз. Есептелген мәліметтер бойынша қазандықтың өнімділігі 28т/сағ. Бу қысымы 13 кгс/см 2 . Қазандықтың ыстық су түрінде беретін жылу мөлшері максималды 100% құрайды. Конденсаттың қайтарымы 10%. Қазандықтарды тамақтандыруға арналған су өзен немесе артезиан арқылы тазартылады. ДКВР қазандық қондырғысы - 20/13, 1. 1-сурет, ұзындығы 3 м құбырлармен ВТН жүйесінің бір өткізгішті шойын экономайзерімен жабдықталған. Қуат реттегіші ВЭК орнатылған, газ үшін де, су үшін де ажыратылмайды.
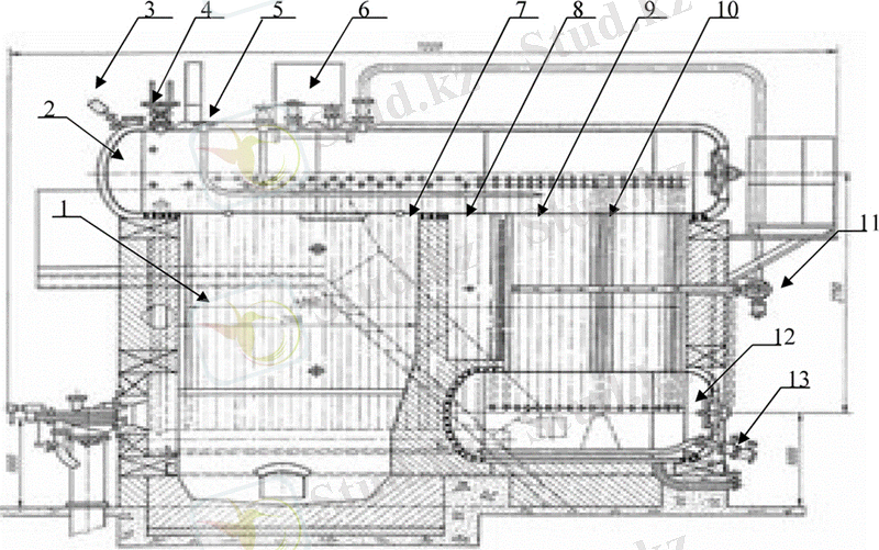
1. 1-сурет. ДКВР маркалы қазандық
1 - қалқан құбырлары; 2 - жоғарғы барабан; 3- манометр; 4 - қауіпсіздік клапандары; 5 - қоректендіретін су құбырлары; 6 - бу бөлгіш; 7 - қауіпсіздік пробкасы; 8 - от жағу камерасы; 9- бөлімдер; 10 - конвективті түтіктер; 11 - үрлеу құрылғысы; 12 - төменгі барабан; 13 - тазарту құбыры.
ВЭК-тен кейін 174 ° C-тан жоғары су температурасының көтерілуін шектеу үшін автоматты құрылғысы бар қысу сызығы қарастырылған. Экономайзердегі газдардың жоғарыдан төменге қарай қозғалуы. Экономайзерден шыққан газдар қазандық бөлмесінің қабырғаларында орнатылған түтін шығарғышқа бағытталған. Үрлеу желдеткіші қазандықтың астына орнатылған. Желдеткішпен ауа сору металл ауа өткізгіш арқылыжүзеге асырылады. Қыздырғыштарға ауа беру қазандықтың іргетасы арқылы өтеді. Қазандық үш ГМГП газ-мазутты оттығымен жабдықталған. 2- суретте.
1. 2-сурет. ГМГП-120 газ-мазутты оттық
1-газ бөлігі; 2-фланец; 3-ауа бөлігі; 4-газды саптама; 5 баррель; 6-диффузор; 7-жапырақ; 8 сұйықтықты саптама; 9-реттеу бұрандасы; 10-ғимарат
ГМГП-120 оттықтың номиналды жылу қуаты 1, 75 МВт құрайды. Ол газ бен мазутты бірге жағуға арналған. Мазут бумен шашыратылады. Қыздырғыш диффузормен жабдықталған (6), ол жалынның ашылу бұрышын белгілейді, және бөлек газ (4) және май (5) саптамалары бар. Ауа қиылысатын кеңістікке жеткізіледі. Саптамалар оттықтың шығатын жерінде орналасуы арқасында лақтыру эффектісі пайда болады. Оттықтың дизайны монтаждауды бастағанда пештің оңай тұтануын қамтамасыз етеді (тек газбен қамтамасыз ету), атомдалған сұйық отынды ауамен жақсы араластыру, түтін газдарын алау түбіріне сору (шығару эффектісі) . Саптамалар аралықты ауамен қамтамасыз ету (газ бен сұйық отын ағындары арасында) отынның екі сатылы жануына жағдай жасайды.
1. 3-сурет. ГМГП-120 қыздырғышының жалын профилі
1. 3-суретте ГМГП-120 форсункасының жалын профилі екі жанармай жануымен көрсетілген. Бастапқы ауа кеңістікке ~ 1, 0 артық ауа қатынасы арқылы жеткізіледі және сұйық отынмен араласады. Ауадан буланған отын мен оттегі толық емес жану пайда болатын ішкі жану фронтына енеді. Сыртқы алаудың алдыңғы жағында химиялық заттар жанып кетеді. Оттегі соңғысының сыртқы алдыңғы жағына форсунка саптамасы арқылы сорылатын ауадан жану кеңістігіне диффузия арқылы енеді. Жалпы ауа коэффициенті 1. 10-1. 15 құрайды. Сонымен қатар, эжекция әсерінің арқасында түтін газдары алаудың тамырына сорылып, интерппин кеңістігіне берілетін ауадағы оттегінің мөлшерін азайтады, бұл жану температурасының 50-70 ° C-қа төмендеуіне әкеледі.
Жану температурасының төмендеуі химиялық реакциялардың жылдамдығын баяулатады және жалынның айтарлықтай созылуына әкеледі. Технологиялық пештегі жылудың шамамен 80% сәулелену арқылы берілетіндігін ескере отырып, радиациялық жылу ағыны іс жүзінде өзгеріссіз қалады және пештің жылу балансы сақталады.
ДКВР қазандықтары келесі негізгі бөліктерден тұрады: екі барабан (жоғарғы және төменгі) ; экран құбырлары; экран коллекторлары (камералар) . 13 кгс / см2 қысымға арналған қазандықтардың барабандары қабырғаларының қалыңдығы 13 мм болатын бірдей ішкі диаметрге (1000 мм) ие. Оларда орналасқан барабандар мен құрылғыларды тексеру үшін, сондай-ақ құбырларды кескіштермен тазарту үшін артқы түбінде люктер бар; ұзын барабаны бар ДКВР-20 қазандығында жоғарғы барабанның алдыңғы түбінде де тесік бар.
Жоғарғы барабандағы су деңгейін бақылау үшін екі суды көрсететін стакан және деңгей индикаторы орнатылған. Ұзын барабаны бар қазандықтарда суды көрсететін көзілдірік барабанның цилиндрлік бөлігіне, ал қысқа барабанды қазандықтарда алдыңғы түбіне бекітіледі. Жоғарғы барабанның алдыңғы төменгі жағынан импульсті түтіктер қуат реттегішіне бағытталады. Жоғарғы барабанның су кеңістігінде қоректендіру құбыры бар, ұзын барабаны бар ДКВР 20-13 қазандықтары үшін - үздіксіз үрлеуге арналған құбыр; бу көлемінде - бөлу құрылғылары. Төменгі барабанда мезгіл-мезгіл үрлеуге арналған тесілген құбыр, күйдіру кезінде барабанды жылытуға арналған құрылғы және суды ағызуға арналған саптама бар. Бүйірлік экран коллекторлары жоғарғы барабанның шығыңқы бөлігінің астында, қаптаманың бүйір қабырғаларына жақын орналасқан. Экрандарда циркуляция циклын құру үшін әр экран коллекторының алдыңғы шеті қыздырылмаған тамшы құбырымен жоғарғы барабанға, ал артқы шеті төменгі барабанға айналма құбыр арқылы жалғанады. Су бүйірлік экрандарға алдыңғы барабандар арқылы жоғарғы барабаннан, ал төменгі барабаннан айналма жол арқылы бір уақытта енеді. Мұндай бүйірлік экрандарға арналған электрмен жабдықтау схемасы жоғарғы барабандағы судың төмен деңгейінде жұмыс сенімділігін арттырады, айналым жылдамдығын арттырады.
ДКВР бу қазандықтарының экрандық құбырлары 51 × 2, 5 мм болаттан жасалған.
Ұзын жоғарғы барабаны бар қазандықтарда экрандық құбырлар экран коллекторларына дәнекерленеді және олар жоғарғы барабанға айналдырылады.
Барлық ДКВР қазандықтарының бүйірлік экрандарының қадамы 80 мм, артқы және алдыңғы экрандардың қадамы 80-130 мм. Қазандық түтік шоғыры диаметрі 51 × 2, 5 мм болатын жіксіз иілген болат құбырлардан жасалған.
ДКВР типті бу қазандықтарының қайнап жатқан түтіктерінің ұштары домалату арқылы төменгі және жоғарғы барабандарға бекітіледі.
Қазандықтың құбырларындағы айналым құбырлардың алдыңғы қатарларындағы судың қатты булануына байланысты болады, өйткені олар отқа жақын жерде орналасқан және артқы газдарға қарағанда ыстық газдармен жуылады, нәтижесінде су көтерілмейді, бірақ қазандықтан шыққан газдардың шығысында орналасқан артқы құбырларда төмендейді. Жану камерасы жалынның конвективтік шоғырға түсуіне жол бермеу және ысыраппен шығынды азайту үшін (Q4 - отынның жануының механикалық толымсыздығынан) қалқанмен екі бөлікке бөлінеді: от және жану камерасы. Қазандықтың бөлімдері түтін газдары құбырларды көлденең токпен жуатындай етіп жасалады, бұл конвективті бумада жылу берілуіне ықпал етеді.
Кесте-1. 1
Технологиялық параметрлер
2. АРНАЙЫ БӨЛІМ
2. 1. СUENOD C-285 қыздырғышы
2. 1-сурет. CUENOD C-285 қыздырғышы
Қыздырғыштардың конструктивті техникасы өндірістің бүкіл тарихында жақсарды, бірақ соңғы жылдары тек тиімділік, қоршаған ортаны қорғау және қауіпсіздіктің талаптарын ескерді. Бұл келесі салалардың даму қарқынының өсуіне алып келді:
- жанармай қоспасын дайындау әдістері - жану процесін оңтайландыру және тұрақтандыру.
- Оттықтардың геометриясын жетілдіру - олардың қызметтерінің күрделілігін төмендету үшін
- Қауіпсіздікті арттыру мақсатында қыздырғыштың жұмысын бақылау және бақылау процестеріне адамның қатысуын азайту бойынша автоматтандыру процестерін жетілдіру. Бұл CUENOD техникалық зертханасын құруда және бірқатар патенттелген конструкциялар мен техникалық шешімдерді енгізуде көрініс тапты.
Осы технологиялардың негізінде тұтынушылардың сұраныстарына, отын үнемдеуге және қоршаған ортаны қорғауға қойылатын талаптарды қанағаттандыратын заманауи жоғары сапалы жабдықтар жасалуда.
Оттық сипаттамалары:
C. 285, С. 330, С. 380, С. 430 модельдері - бұл екі сатылы қуатты басқарумен жабдықталған және тұрмыстық және өнеркәсіптік мақсаттарда қолданылатын газ тәріздес метан немесе сұйытылған мұнай газымен жұмыс істеуге арналған азот оксидтерінің аз шығарылымы бар, .
Техникалық сипаттама:
• Серводан жасалған автоматты ауаны өшіру.
• Бірінші от алауын жеңілдету үшін зауытта алдын ала түзетілген.
• IP 43 қорғау класы.
• Екі бастық ұзындығы бар.
• 400 В 50 Гц үш фазалы қуат көзі.
• Жылытқыш пен бастың арасындағы ыңғайлы бұрылыста қазандыққа оңай және жылдам орнату.
• Сүзгі, қысым реттегіші, екі электромагнитті клапанымен бірге шағын газ құбыры, сондай-ақ қауіпсіздік клапаны үшін ең төменгі қысым датчигі және қысқыш құрылғы.
Газ блокты тек көлденең, солға немесе оңға орнатуға болады.
Жанарғыш үшін H және L топтарының табиғи газдары, сондай-ақ қол жетімді қысымда және осы газдардың жылу құнын өзгерткенін ескере отырып, пропан қолданылады.
Дизайн ерекшеліктері:
Арнайы дизайнның жетекшісі IME® жүйесін (Cuenod patent) азот оксидтерінің 80 мг / кВтсағының төменгі мазмұнын қамтамасыз етеді. Отқыш қашықтан басқару және басқару үшін конфигурацияланған. AGP® жүйесі (Cuenod's патенты) газды / ауа қоспасының, CO2 мазмұнын жоғары деңгейде қамтамасыз етуге, сондай-ақ конденсатын қазандықтарды максималды тиімді пайдалану үшін қажетті артық ауаны жеткізуді дәл бақылауға мүмкіндік береді. ауа айналымының оңтайландырылған жүйесі діріл мен шуды болдырмайды, алаудың дизайны кезінде жүйеге және жану аймағындағы компоненттерге толық қол жетімділік қарастырылған.
ТЕХНОЛОГИЯЛАР:
RTC® - бұл конструкцияны жаңартып, параметрлерді сақтау мүмкіндігі арқылы техникалық қызмет көрсетуді оңтайландыру жүйесі. Тұрғын үй конструкцияларының оңтайлы үйлесімі, қыздырғыш бас технологиясы және RTCR жады бар тюнинг жүйесі қыздырғыштың барлық бөліктеріне іске қосу, жылдам әрі жеңіл техникалық қызмет көрсету үшін жеңіл қолжетімділікті қамтамасыз етеді. Жалынның басы мен қысқа және ұзын компоненттерінің біреуін біржолата толық бөлшектеуді жүзеге асыруға болады. Желдеткішті бөлшектегенде, жүйе оңтайландырылған бастапқы параметрлерді есте сақтауға мүмкіндік береді, бұл күйтуді қалпына келтіруге қажетті уақытты үнемдейді.
AGP® (Air-Gas Proporcional) - қуаттылығы 120 кВт және одан жоғары екі сатылы модулді қыздырғыштар үшін пневматикалық байланысқан газдық ауа қатынасын басқару жүйесі жанғыш желдеткіштің қозғалтқышы мен атмосфералық қысымның тұрақсыздығы Газ фитингтері екі диафрагма бар тұтқалар жүйесі бар қыздырғыш газ қысымды реттегішті қамтиды. Жану камерасындағы газ қысымының, ауа мен қысымның ағымдағы мәні импульстік түтіктер арқылы қабылданады. Газ ауа қоспасының үлесті барлық қуат диапазонында автоматты түрде сақтау үшін салыстыру әдісі пайдаланылды, газды ауа қоспасының тұрақты және нақты үлестірілуіне және CO2 үнемі жоғары үлестірілуіне конденсатын қазандықтарды барынша тиімді пайдалану үшін өте маңызды.
IME® - газды жағудың көп сатылы жүйесі. Бұл технология қуаттылығы 200 кВт болатын барлық газ оттықтарында қолданылады. Газды жану екі кезеңде жүреді. Алғашқы ауадан асып кетеді. Газ инжекторларының арнайы орналасуы бірінші сатыдан кейін қалған газдың алаудың негізінде газ қоспасы араласуы мен екінші кезеңде күйіп қалуымен тез арада кетуіне әкеледі. Бұл алаудың жалын температурасын төмендетеді және NOx шығарындыларының азаюына әкеп соғады
2. 2. ICI Coldaie REX 200 қазандығы
2. 2-сурет. ICI Coldaie REX 200 қазандығы
ICI CALDAIE REX 200 F Пештің астындағы газ қазандығы жалынмен күйіп тұрған газ қазандығы. Газ отынына арналған болат қазандық қуаты: 2000 кВт / 2 МВт / 1, 720, 000 ккал / сағ. Жылыту алаңы: 20 000 м 2 дейін Мынадай жанармай түрлерімен жұмыс істеуге арналған: табиғи газ, сұйытылған газ. Дизайн қысымы: 5 бар. Өнімділігі: 5%. Болаттан жасалған қазан, REX 7F-130F үлгісі, цилиндрлік нысанның алауының кері дамуы бар өрт сөндіргішпен, артқы жағындағы өрт сөндіргіші дөңгелек түбіне толығымен жабылып, жуу цызымен қолданады. Жанармайдың газбен жұмыс істеуіне арналған сверхьярлы қыздырғыштармен үйлесімді. Судың температурасы 55-тен 110 ° C-ге дейінгі жүйелерде пайдалану үшін әзірленген (қауіпсіздік термостаты 115 ° C деп белгіленген) . REX-F қазандығы REX қазанына дизайнда бірдей. Өнімділікті арттыру үшін, болаттың түрлендіргіштері радиалды финмен бірге алюминиймен салынған қосындылармен ауыстырылады, осылайша жылу беті жоғарылайды, шығарылған газдар жылуды жоғарылатады және дәстүрлі Fin-e қазандықтарына қарағанда төмен температурадағы түтін арқылы шығарылады SYSTEM 3 STARS PATENTED ICI CALDAIE Fin- e ® - қазандықтардың тиімділігін арттыруға мүмкіндік беретін, 3 жұлдызды тиімділікке қол жеткізетін жүйе. Fin-e ® - беткі қабырғасының ішкі бетіне ие және беттерді араластыру түтіктерінің артқы жағына беттерді толығымен тиіп тұруға мүмкіндік беретін алюминий қаптамасы. Газдарды қалдырып, қабырғалы бетке тиіп, жылу береді және түтін камерасында жеткілікті жоғары деңгейде қалатын температураны едәуір төмендетеді. Өз құрамында ешқандай өзгеріс жоқ қазандық пешінің жоғарылауын жоғарыламай тиімділікке жетеді (қазандықты қыздырғыш жұп қосылымы өзгермейді) . Ішкі бойлық арқалықтардың болуы арқасында техникалық қызмет көрсету жеңілдетіледі: тиісті геометриялық конструкцияның шұңқыры жану өнімдерінің қалдықтарын жоюға мүмкіндік береді. Финнің төменгі бөлігіндегі арнаның конденсатын (суық іске қосу) дренаждау ашық профильдің морфологиясына байланысты мүмкін, конденсация қазандық корпусының тұтастығына зиян келтірместен түтін камерасына қарай шығарылады. Қолданылатын еуропалық директиваларға сәйкес ЕО таңбалауы бар өнімдер: 92/42 / CE (400 кВт-қа дейін) 2009/142 / CE 2014/30 / UE 2014/35 / UE Өндіруші: ICI Caldaie S. p. A. Via G. Pascoli 38 - 37059 Frazione Campagnola di Zevio (Верона) Италия
Сипаттамалары:
Өндіруші: ICI Caldaie
Ассамблея: Италия (IT)
Орындау: қабат
Орнату орны: жабық
Түрі: Газ
Жұмыс режимі: үзіліссіз
Фаза нөмірі: 1
Қорғау класы: IP40
Кернеу, V: 220
Ағымдағы жиілік, Гц: 50
Максималды жұмыс қысымы, бар: 5
Отынның түрі: табиғи газ / LP пропан
Электр қуаты: 0, 02 кВт
Жылу алмастырғыш Материал: Болат
Тиімділік, %: 95. 5
Максималды жұмыс температурасы, C: 110
Қыздырғыштың түрі: Надувная
Жылыту алаңы, м2: 2
Жылу қуаты, кВт: 2000
Су көлемі, л: 2000
Габариттік өлшемдері (LxWxH), мм: 1600 x 3220 x 1876
Салмағы, кг: 3730
2. 3 Су қыздырғышты қосу
2. 3. 1 Жергілікті пультпен су қыздырғышты жартылай автоматты түрде жағу
Жартылай автоматты түрде қосу режимінің (HS94. 01) жағу үшін таңдау кілтін «Қолмен» күйге аудару керек. Сонымен бірге бақылауыш (контроллер) келесі дайындық операцияларын жүгізуді бастамашылық етеді.
Газ отынынің жүйесін үрлеу. Газ отынынің жүйесіндегі басты оттықтардың (YS24, 1. 02) тастау қақпақтары және тұтану оттықтары (YS24. 2. 02) ашылады. (HS24. 1. 02 - HS24. 9. 02) оттық қақпақтары жабылады. Газды жіберетін басты оттықтардың басқару клапандары (GS21. 1. 01), отын газын жіберетін басты оттықтың кесу қақпағы (GS21. 02), отын газын жіберетін тұтандырғыш оттықтың кесу қақпағы (GS22. 02) ашылады. Үрлеу аяқталғанда тастау кақпақтары жабылады.
Құрылғының жағу көлемін үрлеу. Түтінді құбырдың (PIC43. 1. 02) қақпасы, ауа шығынының қақпасы (FIC30. 1. 02) ашылады, (HS31. 02, HS32. 02) желдетқіштері қосылады. Үрлеу ақталған уақытты ауыспалы газ көрсеткішпен анықтайды.
Мұнай айналымын қамтамассыз ету. 0-3 кгс/см және мұнай шығыны >0. 5м/с дейін құрылғыда қысым түсуі талданады.
Әрбір үш дайындау операциясының апатсыз аяқталуы, GS25. 7. 02 жалпылауыш белгіні (жергілікті қосуға рұқсат) өңдіруге бағдарламалық рұқсат беріледі. Рұқсат алынғаннан кейін пультте жасыл шам 2 жанады «Жағуға рұқсат».
Одан кейін тұтандырғыш оттықты жағуға көшеді. Тұтандырғыш оттықты жағу №1 ден №9 дейін кезекпен келесі ретпен жүргізіледі.
№1 түймешік басылады ( HS23. 1. 01) «№1 тұтандырғыш оттықтың газ кақпағын (клапан) ашу». Сол кеде кақпақ ашылып, отын тұтануға ұшқынды разряд беріледі.
Егер тұтанған болса, онда жалынды басқару датчигі іске қосылып, ол туралы мәлімет (XS23. 1. 02 белгісі) пультте жасыл лампасы жану арқылы көрінеді.
Осыдан кейін барлық тұтану оттықтары қосылады (HS23. 2. 01- HS23. 9. 01 түймешіктері) . Егер барлық тұтану оттықтары қосылса, онда барлық лампалар жану керек (XS23. 1. 02 - XS23. 9. 02) .
Барлық тұтану отықтары іске қосылғаннан кейін, басты оттықтар жағу басталады. Ол үшін «Басты оттықтарды жағуды бастау» (HS27. 01 белгісі) түймешігін басу керек. Белгі пайда болңаннан кейін басты оттыққа отын газын жіберу қақпағы ашылып жәнк ауа жіберу қақпасы жартылай ашылады. Бұл оперативті қызметкерлермен көзбен бақыланатын қатар барлық басты оттықтарды жағуға әкеледі.
Тез жану процессі тоқтату үшін пультте «су қыздырғышты жағуды тоқтату» түймешігі (HS25. 4. 01) қарастырылған. Ақаулар пайда болғанда немесе шектеулер болған жағдайда пультте «Ақаулық» (YS25. 2. 02) қызыл лампа жанады және газ қақпағы жабылып, су қыздырғыштың жану аумағын үрлеу қосылады.
XS23. 1. 02 - XS23. 9. 02 лампаларының индикациялауда екі түсі болады: қызғылт сары және жасыл. Бұл лампалар оттықта жалын бары туралы белгі береді. Жасыл түс - (XS23. 1. 02 - XS23. 9. 02) белгілері берілген оттықтан жоқтығын білдіретін «0» келеді. Қызғылт сары түс - оттық жанғаны туралы белгі беретін (XS23. 1. 02 - XS23. 9. 02) белгілері «1» келеді.
2. 3. 2. Су қыздырғышты жергілікті пультпен автоматты жағу
Автоматты түрде қосу режимінің (HS94. 01) жағу үшін таңдау кілтін «Автоматты» күйге аудару керек. Сонымен бірге бақылауыш (контроллер) келесі дайындық операцияларын жүгізуді бастамашылық етеді.
Газ отынынің жүйесін үрлеу. Газ отынынің жүйесіндегі басты оттықтардың (YS24. 1. 02) тастау қақпақтары және тұтану оттықтары (YS24. 2. 02) ашылады. (HS24. 1. 02 - HS24. 9. 02) оттық қақпақтары жабылады. Газды жіберетін басты оттықтардың басқару клапандары (GS21. 1. 01), отын газын жіберетін басты оттықтың кесу қақпағы (GS21. 02), отын газын жіберетін тұтандырғыш оттықтың кесу қақпағы (GS22. 02) ашылады. Үрлеу аяқталғанда тастау кақпақтары жабылады.
Мұнай айналымын қамтамассыз ету. 0-3 кгс/см және мұнай шығыны >0. 5м/с дейін құрылғыда қысым түсуі талданады.
Құрылғының жағу көлемін үрлеу. Түтінді құбырдың (PIC43. 1. 02) қақпасы, ауа шығынының қақпасы (FIC30. 1. 02) ашылады, (HS31. 02, HS32. 02) желдетқіштері қосылады. Үрлеу ақталған уақытты ауыспалы газ көрсеткішпен анықтайды.
Әрбір үш дайындау операциясының апатсыз аяқталуы, GS25. 7. 02 жалпылауыш белгіні (жергілікті қосуға рұқсат) өңдіруге бағдарламалық рұқсат беріледі. Рұқсат алынғаннан кейін пультте жасыл шам 2 жанады «Жағуға рұқсат».
... жалғасы- Іс жүргізу
- Автоматтандыру, Техника
- Алғашқы әскери дайындық
- Астрономия
- Ауыл шаруашылығы
- Банк ісі
- Бизнесті бағалау
- Биология
- Бухгалтерлік іс
- Валеология
- Ветеринария
- География
- Геология, Геофизика, Геодезия
- Дін
- Ет, сүт, шарап өнімдері
- Жалпы тарих
- Жер кадастрі, Жылжымайтын мүлік
- Журналистика
- Информатика
- Кеден ісі
- Маркетинг
- Математика, Геометрия
- Медицина
- Мемлекеттік басқару
- Менеджмент
- Мұнай, Газ
- Мұрағат ісі
- Мәдениеттану
- ОБЖ (Основы безопасности жизнедеятельности)
- Педагогика
- Полиграфия
- Психология
- Салық
- Саясаттану
- Сақтандыру
- Сертификаттау, стандарттау
- Социология, Демография
- Спорт
- Статистика
- Тілтану, Филология
- Тарихи тұлғалар
- Тау-кен ісі
- Транспорт
- Туризм
- Физика
- Философия
- Халықаралық қатынастар
- Химия
- Экология, Қоршаған ортаны қорғау
- Экономика
- Экономикалық география
- Электротехника
- Қазақстан тарихы
- Қаржы
- Құрылыс
- Құқық, Криминалистика
- Әдебиет
- Өнер, музыка
- Өнеркәсіп, Өндіріс
Қазақ тілінде жазылған рефераттар, курстық жұмыстар, дипломдық жұмыстар бойынша біздің қор #1 болып табылады.

Ақпарат
Қосымша
Email: info@stud.kz