Ток өткізгіш бөлігі


Коммерциялық емес ашық акционерлік қоғамы
Ғ. Ж. Дәукеев атыындағы АЛМАТЫ ЭНЕРГЕТИКА ЖӘНЕ БАЙЛАНЫС УНИВЕРСИТЕТІ
«Электрмен жабдықтау және энергияның жаңғыртылатын көздері кафедрасы » кафедрасы
«Энергетикалық қондырғылардың қауіпсіздік техникасы» пәні
№2 зертханалық жұмыс
Тақырыбы: Электр желілерінің әртүрлі типтерін зерттеу
Мамандығы : Электр Энергетикасы
Орындаған: Сапарбай Нұрасыл Тобы: ЭЭдк-21-1
Тексерген: Мустагулова Б.
«»2021 ж
(бағасы) (қолы)
Алматы 2020
№2 зертханалық жұмыс. Электр желілерінің әртүрлі типтерін зерттеу
Жұмыстың мақсаты: электр желілерінің әртүрлі түрлерін зерттеу.
Жабдық: "қуат беру желісі" модулі, "TN желісі" модулі, "тт/1Т желісі" модулі, "электр қондырғысы" модулі, "Қос оқшауланған электр қондырғысы" модулі, қосқыш өткізгіштер.
Теориялық бөлім
Электр қондырғысы электр энергиясын өндіруге, түрлендіруге, тасымалдауға, таратуға және оны энергияның басқа түрлеріне түрлендіруге арналған машиналардың, құрылғылардың, желілердің және қосалқы жабдықтардың жиынтығы (құрылымдар мен бөлмелермен бірге) деп аталады.
Белсенді бөліктер : жұмыс кезінде кернеулі өткізгіштер мен өткізгіш бөліктер (сыртқы өткізгіштер, бейтарап өткізгіштер, РЕ немесе PEN емес) .
Өткізгіш бөлігі -электр тогын өткізе алатын бөлік [Pue, P. 1. 7. 7] .
Ток өткізгіш бөлігі -жұмыс кернеуінде жұмыс істеп тұрған электр қондырғысының өткізгіш бөлігі, оның ішінде нөлдік жұмыс өткізгіші (бірақ PEN-өткізгіш емес) (ЭОЕ, 1. 7. 8 т. ) .
Ашық өткізгіш бөлігі -әдетте кернеуде болмайтын, бірақ негізгі оқшаулау зақымданған кезде кернеуде болуы мүмкін электр қондырғысының өткізгіш бөліктері жанасуға қол жетімді бөлігі [ЭОЕ, 1. 7. 9 т. ] .
Сыртқы өткізгіш бөлігі -электр қондырғысының бөлігі болып табылмайтын өткізгіш бөлігі (ЭОЕ, 1. 7. 10 т. ) .
Негізгі оқшаулау -ток өткізгіш бөліктерді оқшаулау, соның ішінде тікелей жанасудан қорғауды қамтамасыз етеді [ЭОЕ, 1. 7. 39 т. ] .
Қосымша оқшаулау -жанама жанасу кезінде қорғау үшін негізгі оқшаулауға қосымша орындалатын, кернеуі 1 кВ дейінгі электр қондырғыларындағы тәуелсіз оқшаулау [ЭОЕ, 1. 7. 40-т. ] .
Қос оқшаулау -негізгі және қосымша оқшаулаулардан тұратын кернеуі 1 кВ дейінгі электр қондырғыларындағы оқшаулау [ЭОЕ, 1. 7. 41-т. ] .
Қазіргі заманғы нормативтік-техникалық құжаттамада кернеуі 1 кВ дейінгі барлық электр қондырғылары әртүрлі типтегі жүйелер ретінде қарастырылады. Жүйе дегеніміз -электр энергиясының көзі, электр желісі және электр тұтынушысы.
"Қоректендіруші электр желілері" термині электр энергиясы көзі мен қоректендіруші желілерді қамтитын жүйенің құрамдас бөлігін білдіреді.
Қоректендіру тораптары түрлері бойынша ерекшеленеді:
* тоқ өткізгіш өткізгіштер жүйесі;
* жерге қосу жүйелері.
Айнымалы ток өткізгіш өткізгіштер жүйесінің келесі түрлері бар:
* бір фазалы екі сымды;
* бір фазалы үш сымды;
* екі фазалы үш сымды;
* екі фазалы бес сымды;
* үш фазалы төрт сымды;
* үш фазалы бес сымды.
Электр желілері келесі түрде болады: TN-S, TN - C, TN-C - S, ТТ, IT.
Кернеуі 1000 В дейінгі электр жүйелерінің сыныптамасы және схемалары
TN жүйесі -қуат көзінің бейтарабы жерге тұйықталған, ал электр қондырғысының ашық өткізгіш бөліктері нөлдік қорғаныс өткізгіштері арқылы көздің жерге тұйықталған бейтарабына қосылған жүйе . . . [Pue, P. 1. 7. 3] .
Бұл анықтамада бірқатар терминдер қолданылды.
Нейтраль -торапты қоректендіретін генераторлар немесе трансформаторлар орамдарының жалпы нүктесі; электр энергиясы көзінің шығу қысқыштарындағы нейтралға қатысты өлшенген кернеулер тең.
Жерге тұйықталған бейтарап -тікелей жерге тұйықтау құрылғысына қосылған трансформатордың немесе генератордың бейтарабы. Сондай-ақ, жерге тұйықталған - бір фазалы айнымалы ток көзінің шығысы немесе екі сымды желілердегі тұрақты ток көзінің полюсі, сондай-ақ үш сымды тұрақты ток желілеріндегі орташа нүкте [Pue, P. 1. 7. 5] .
Нөлдік өткізгіш -бұл электр энергиясын тұтынушыларды қуаттандыруға немесе ашық өткізгіш бөліктерге қосылуға арналған жерге тұйықталған бейтарапқа қосылған өткізгіш.
Нөлдік жұмыс (бейтарап) өткізгіші (N) - электр қабылдағыштарды қоректендіруге арналған және үш фазалы ток желілеріндегі генератордың немесе трансформатордың жерге тұйықталған бейтарабымен, бір фазалы ток көзінің жерге тұйықталған шығуымен, тұрақты ток желілеріндегі көздің жерге тұйықталған нүктесімен қосылған 1 кВ дейінгі электр қондырғыларындағы өткізгіш (ЭОЕ, 1. 7. 35-т. ) .
Қорғаныстық (РЕ) өткізгіш - электр қауіпсіздігі мақсатына арналған өткізгіш.
Қорғаныстық жерге қосу өткізгіші -қорғаныстық жерге қосуға арналған қорғаныстық өткізгіші.
Нөлдік қорғаныстық өткізгіш -ашық өткізгіш бөліктерін қорек көзінің жерге тұйықталған бейтарабына қосуға арналған 1 кВ дейінгі электр қондырғыларындағы қорғаныстық өткізгіш [ЭОЕ, 1. 7. 34-т. ] .
TN-C жүйесі -нөлдік қорғаныс және нөлдік жұмыс өткізгіштері бүкіл ұзындығы бойынша бір өткізгіште біріктірілген TN жүйесі [Pue, P. 1. 7. 3] . TN-C жүйесінде (сурет. 2. 1) біріктірілген нөлдік және жұмыс сымы PEN деп белгіленеді.
TN-S жүйесі -нөлдік қорғаныс және нөлдік жұмыс өткізгіштері оның бүкіл ұзындығына бөлінген TN жүйесі [Pue, P. 1. 7. 3] . TN-S жүйесі (сурет. 2. 2) телекоммуникациялық желілерде қолданылады (бұл ретте TN-C жүйесінің торабында жердегі жұмыс тогының бір бөлігі ағу кезінде пайда болатын төмен кернеулі токты желілерде кедергілер болмайды) .
![]()
Сур. 2. 2. TN-C жүйесі
Сур. 2. 2. TN-S жүйесі
TN-C-S жүйесі -нөлдік қорғаныс және нөлдік жұмыс өткізгіштерінің функциялары қуат көзінен бастап оның бір бөлігінде бір өткізгіште біріктірілген TN жүйесі (TTUE, P. 1. 7. 3] . Сонымен қатар, TN-S жүйесіндегі сияқты, РЕ және N өткізгіштері бөлек салынуы керек, ал бөлу нүктесінен кейін олардың қосылуына жол берілмейді (сурет. 2. 3) .
![]()
Сур. 2. 2. TN-C-S жүйесі
ТТ жүйесі -қорек көзінің бейтарабы жерге тұйықталған, ал электр қондырғысының ашық өткізгіш бөліктері жерге тұйықталатын құрылғының көмегімен жерге тұйықталған, энергия көзінің жерге тұйықталмаған бейтарабынан электрлік тәуелсіз жүйе [ЭОЕ, 1. 7. 3-т. ] . ТТ жүйесі суретте көрсетілген. 2. 4.
IT жүйесі - бұл қуат көзінің бейтарабы жерден оқшауланған немесе үлкен кедергісі бар аспаптар немесе құрылғылар арқылы жерге тұйықталған, ал электр қондырғысының ашық өткізгіш бөліктері жерге тұйықталған жүйе [Pue, P. 1. 7. 3] . Торапта жерге қатысты белгілі бір белсенді кедергі мен сыйымдылық бар, олар ағып кету тогының немесе жерге тұйықталу тогының жолын білдіреді (сурет. 2. 5) .
Оқшауланған бейтарап -сигнал беру, өлшеу, қорғаныс аспаптарының және оларға ұқсас басқа да құрылғылардың үлкен кедергісі арқылы жерге тұйықтау құрылғысына қосылмаған немесе оған қосылған трансформатордың немесе генератордың бейтарабы [ЭОЕ, 1. 7. 6-т. ] .
Рис. 2. 4. Система ТТ
Рис. 2. 5. Система IT
Мақсат электр энергиясын тұтынушыларды қоректендіруге арналған әртүрлі электр желілерінің электр қауіпсіздігін талдау болғандықтан, материалды ұсынудың ыңғайлылығы үшін біз болашақта "TN-S торабы" және т. б. сияқты терминдерді қолданамыз, бұл белгілі бір бейтарап жерге қосу режимі бар электр энергиясының жиынтығын және белгілі бір өткізгіш өткізгіштер жүйесі бар қоректендіру торабын білдіреді, мысалы, TN-c желісі жер асты бейтарабы бар электр энергиясының жиынтығын және үш фазалы төрт сымды қоректендіру желісін білдіреді.
Зертханалық жұмысты орындау тәртібі
1. Зертханалық жұмысты орындау үшін жеткілікті теориялық материалды зерттеңіз. Оқытушыдан жұмысқа рұқсат алу.
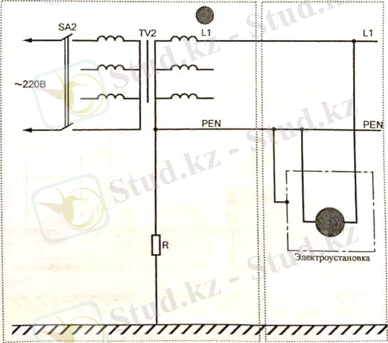
2. 1. Суретке сәйкес. 2. 6 TN-c желілік схемасын зерттеу үшін модульдердің электрлік қосылыстарын орындаңыз.
Модуль “Ото. TN” Модуль “Электроустановка"
Сур. 2. 6. TN-C желісін зерттеуге арналған зертханалық модульдердің электр тізбектері
Бақылау сұрақтары
1. Ток өткізгіш бөлігі
Ашық өткізгіш бөлігі
Сыртқы өткізгіш бөлігі
Негізгі оқшаулау
Қос оқшаулау
Қосымша оқшаулау
2. Нейтраль. Жерге тұйықталған бейтарап
3. Нөлдік жұмыс (бейтарап) өткізгішінің (N) Нөлдік қорғаныстық өткізгіштен айырмашылығы қандай?
4. TN, TT, IT электрлік жүйелерінің анықтамасы?
5. TN-C, TN-S, TN-C-S электрлік жүйелерінің анықтамасы?
- Ток өткізгіш бөлігі-жұмыс кернеуінде жұмыс істеп тұрған электр қондырғысының өткізгіш бөлігі, оның ішінде нөлдік жұмыс өткізгіші (бірақ PEN-өткізгіш емес) .
... жалғасыАшық өткізгіш бөлігі-әдетте кернеуде болмайтын, бірақ негізгі оқшаулау зақымданған кезде кернеуде болуы мүмкін электр қондырғысының өткізгіш бөліктері жанасуға қол жетімді бөлігі.
Сыртқы өткізгіш бөлігі-электр қондырғысының бөлігі болып табылмайтын өткізгіш бөлігі.
Негізгі оқшаулау-ток өткізгіш бөліктерді оқшаулау, соның ішінде тікелей жанасудан қорғауды қамтамасыз етеді.
Қосымша оқшаулау-жанама жанасу кезінде қорғау үшін негізгі оқшаулауға қосымша орындалатын, кернеуі 1 кВ дейінгі электр қондырғыларындағы тәуелсіз оқшаулау.
Қос оқшаулау-негізгі және қосымша оқшаулаулардан тұратын кернеуі 1 кВ дейінгі электр қондырғыларындағы оқшаулау.
- Іс жүргізу
- Автоматтандыру, Техника
- Алғашқы әскери дайындық
- Астрономия
- Ауыл шаруашылығы
- Банк ісі
- Бизнесті бағалау
- Биология
- Бухгалтерлік іс
- Валеология
- Ветеринария
- География
- Геология, Геофизика, Геодезия
- Дін
- Ет, сүт, шарап өнімдері
- Жалпы тарих
- Жер кадастрі, Жылжымайтын мүлік
- Журналистика
- Информатика
- Кеден ісі
- Маркетинг
- Математика, Геометрия
- Медицина
- Мемлекеттік басқару
- Менеджмент
- Мұнай, Газ
- Мұрағат ісі
- Мәдениеттану
- ОБЖ (Основы безопасности жизнедеятельности)
- Педагогика
- Полиграфия
- Психология
- Салық
- Саясаттану
- Сақтандыру
- Сертификаттау, стандарттау
- Социология, Демография
- Спорт
- Статистика
- Тілтану, Филология
- Тарихи тұлғалар
- Тау-кен ісі
- Транспорт
- Туризм
- Физика
- Философия
- Халықаралық қатынастар
- Химия
- Экология, Қоршаған ортаны қорғау
- Экономика
- Экономикалық география
- Электротехника
- Қазақстан тарихы
- Қаржы
- Құрылыс
- Құқық, Криминалистика
- Әдебиет
- Өнер, музыка
- Өнеркәсіп, Өндіріс
Қазақ тілінде жазылған рефераттар, курстық жұмыстар, дипломдық жұмыстар бойынша біздің қор #1 болып табылады.

Ақпарат
Қосымша
Email: info@stud.kz