ArchiProf ЖШС-де өткен тәжірибе есебі


«Әбілқас Сағынов атындағы
Қарағанды техникалық университеті» КЕ АҚ
«Сәулет жіне дизайн» кафедрасы
ТӘЖІРИБЕ
БОЙЫНША ЕСЕП
«ArchiProf»ЖШС
Жетекшісі
Дерябина А. Н. - бас сәулетші
(бағасы) (кәсіпорыннан қолы, аты-жөні)
Дерябина А. Н. - бас сәулетші
Комиссия мүшелері (факультеттен қолы, аты-жөні)
аға оқытушысы Ахметов Б. Б. Білім алушы Әміртай С. Н.
(қолы) (аты-жөні) (аты-жөні)
Арх 18-1
аға оқытушысы Гомарова Б. М. (группасы)
(қолы) (аты-жөні) 24. 06. 2022
(қолы) (күні)
аға оқытушысы Жанабилов С. С.
(қолы) (аты-жөні)
2022 ж.
Мазмұны
- Нормативтік сілтемелер 3
- Терминдер мен анықтамалар және қысқартулар 5
- Кіріспе 6
- Негізгі бөлім. ТәжірибеБірінші апта 7Екінші апта 7Үшінші апта 7Төртінші апта 9Есептік апта 15
- Қорытынды 16
- Пайдаланылған әдебиеттер 17
Қазақстан Республикасының ҚНжЕ
Нормативтік-техникалық құжаттама "Қазақстан Республикасының
аумағында қолданыстағы сәулет, қала құрылысы және құрылыс саласындағы нормативтік құқықтық және нормативтік-техникалық актілердің тізбесі"негізінде ұсынылған.
Нормативтік талаптар мақсаты - олардың бүкіл пайдаланылуы кезеңінде
қоғамдық ғимараттар қауіпсіздігін қамтамасыз ету, адамдардың денсаулығын, мүліктерді қорғау және қоршаған ортаны қорғау, адамдардың келуі, демалуы және еңбек етуі үшін қолайлы жағдай жасау.
ҚР ҚН Қазақстан Республикасының құрылыс саласындағы нормативтік
базаны реформалау шегінде әзірленді және оның қолданылу саласына сәйкес
техникалық регламенттер міндеттеріне қол жеткізуге бағытталған қажетті толық көлемдегі техникалық және экономикалық негізді талаптар бар.
ҚР ҚН «Қоғамдық ғимараттар мен имараттарда»:
- нормативтік талаптардың мақсаттары;
- функционалдық талаптар;
- жұмыс сипаттамаларына қойылатын талаптар бар.
Қазақстан Республикасының осы ҚР ҚН «Қоғамдық ғимараттар мен имараттар»
құрылыс нормалары Қазақстан Республикасының «Ғимараттар мен құрылыстардың,
құрылыс материалдары мен бұйымдарының қауіпсіздігіне қойылатын талаптар»
техникалық регламентінің дәлелдемелік базасына кіретін нормативтік құжаттарының
бірі болып табылады және құрылыс саласындағы халықаралық ынтымақтастықтағы
техникалық кедергілерді жоюға бағытталған.
Талаптарды әзірлеген кезде бірқатар объектілерді жобалау, салу және пайдалану бойынша отандық және шетелдік нормативтік-әдістемелік материалдар зерттеліп, сарапталды.
Норматив мазмұны:
- Нормативтік талаптар мақсаты
- Функционалдық талаптар
- Жұмыс сипаттамаларына қойылатын талаптар
- Жалпы ережелер
- Ғимараттардың сенімділігі мен орнықтылығын қамтамасыз ету бойынша талапта
- Өрт қауіпсіздігі
- Эвакуациялау жолдары
- Ғимараттарды пайдалану барысында адамдардың денсаулығын қорғауды
қамтамасыз ету бойынша талаптар
- Учаскеге қойылатын талаптар
- Қоғамдық ғимараттардың негізгі үй-жайларына қойылатын талаптар
- Биіктігі 28 м және одан артық ғимараттарға қойылатын қосымша
талаптар
12. Қоқыстарды шығару және шаңдарды тазалау
13. Үй-жайды табиғи жарықтандыру және инсоляция
14. Инженерлік қондырғылар
15. Жылыту, желдету және ауа баптау
16. Сумен қамту және канализация
17. Электр техникалық және әлсіз токты құрылғылар
18. Газбен қамтамасыз ету
19. Мүмкіндігі шектеулі келушілер үшін қолжетімділік талаптары
20. Пайдалану кезіндегі қауіпсіздік
21. Қоршаған ортаны қорғау
22. Энергия үнемдеу
23. Энергия тұтынуды азайтуға қойылатын талаптар
24. Табиғи ресурстарды тиімді пайдалану
Терминдер
- Қоғамдық ғимараттар мен құрылыстар: Халыққа әлеуметтік қызмет көрсетуге және әкімшілік мекемелер мен қоғамдық ұйымдарды орналастыруға арналған ғимараттар мен құрылыстар.
- Жертөлелік және цокольдық қабат бөлігі: Өртке қарсы кедергілермен (қабырғалармен, арақабырғалармен, аражабынмен) шектелген кеңістік.
- Рециклинг (екінші рет өңдеу) (recycling) : Өндіріс қалдықтарын, оның ішінде құрылыс қалдықтарын қайта пайдалану немесе айналысқа қайта түсіру.
- Тамбур: Ғимаратқа, баспалдақ клеткасы немесе басқа да үй-жайларға кірген кезде суық ауаның, түтін мен иістің кіруінен қорғауға арналған есіктер арасындағы өтетін кеңістік.
- Мансард: Мансард шатыры бар астыңғы қабатта пайда болатын шатыр түріндегі тұрғын үй-жай.
- Сауда орталығы: Қызметтік және кеңістіктік түрде бір-бірімен тығыз байланысқан кәсіпорындар мен мекемелердің: әртүрлі дүкендердің, бір аумақта немесе біріккен көлемде орналасқан тамақтану, тұрмыстық және басқа да қызмет көрсету кәсіпорындарының кешені
- Эскиздік жоба-бұл тапсырыс берушінің техникалық тапсырмасына сәйкес және нормативтік құжаттардың, құрылыс шарттарының талаптарын сақтап орындаған жобалау жұмыстарының кешені.
Кіріспе
Өндірістік тәжірибе сәулетші-мамандарды даярлаудың оқу процесінің
ажырамас бөлігі болып табылады және мамандық бойынша практикалық білім мен жұмыс дағдыларын алуға бағытталған. Студенттердің жобалық фирмалар мен мемлекеттік жобалық құрылымдарда нақты жобалауға қатысуы, эскиздік жобадан бастап жобалық-сметалық құжаттаманы әзірлеуге дейін, жетілген кәсіпқойлар арасында алған білімдерін бекіту болып табылады.
Жеке кәсіби қасиеттерді қалыптастыру алынған білімді объективтендіруге ғана емес, сонымен қатар шығармашылық көкжиектердің қалыптасуына және шығармашылық жетілдірудің нақты кезеңдеріне қол жеткізудің алгоритмдерін ынталандыруға ықпал етеді. Өндірістік практикадан өту барысында студенттердің кәсібилігі, болашақ сәулетшілердің жекелеген жеке қасиеттері шыңдалады.
Өндірістік тәжірибе 24 мамыр мен 25 маусым аралығында 24 мамыр мен 25 маусым аралығында Қарағанды қаласы, Жамбыл көшесі, 103а, 102 офис мекенжайындағы «Archi Prof» ЖШС өтілді. «Archi Prof» ЖШС - 2018 жылдан бастап 3-дәрежелі сәулет компаниясы. Қарағанды қаласы бойынша 1 офис, 3 жылдан астам уақыт аралығында 1000 астам жоспар, схама, сәулет жобалары жасалынды.
Сәулет қызметтері:
- қайта жоспарлау;
- жаңа құрылыс;
- жобалау;
- қайта құру;
- орналастыру схемасы;
- жер жобалары;
- СЖТ дайындау (сәулет-жоспарлау тапсырмасы) ;
- пайдалануға беру актісі;
- ЭЦҚ арқылы қосымша беру (жобаны келісуге беру, СЖТ) ;
- мердігерлік фирмамен шарт;
- техникалық қадағалаумен шарт;
- талонға қосымша беру (МСҚБ) .
Бірінші апта. 24 мамыр-27 мамыр.
24 мамыр-27 мамыр аралығында практика өтетін фирмаға Қарағанды қаласы, Жамбыла көшесі, 103а, 102 офис мекенжайындағы «ArchiProf» ЖШС орнына келу. Компания мен оның директоры Примсяжнюк А. А. және жетекші Дерябина А. Н. кездесу және танысу.
Кәсіпорынның ішкі тәртібімен танысу. Қауіпсіздік ережелерін қадағалап зерттеу. Өндірістегі практика жетекшісінен жеке тапсырма алу.
Екінші апта. 31 мамыр-3 маусым.
31 мамыр-3 маусым кәсіпорын қызметінің түрлерімен танысу (бұрынғы проектілерді қарастыру, дайындау тәртібі, бастапқы деректерді жинақтау, тапсырыс берушінің және мердігерлік ұйымдардың шарттық құжаттары) . Қала құрылысының заңнамалық, санитарлық талаптарын зерттеу. КНжЕ және басқадай нормативтерді оқу.
Үшінші апта. 6 маусым-10 маусым.
Жағдайды алдын ала тексеру, ақпарат жинау (өлшеу, суретке түсіру, сауалнамалық және ауызша сұрау, заттай зерттеулердің нәтижелерін дайындау және өңдеу, статистикалық деректерді өңдеу) .
Қарағанды қаласы, Қазыбек би, Бадин к-сі, 172/2 ауданы және Қарағанды қаласы, Қазыбек би ауданы, Нил Мазитов көшесі, 88-үй және Методическая көшесі, 9 үй мекен-жайы бойынша өлшеулерге шығу. Жобаларды, жобалық ұсыныстарды дайындауды, келісуді, іске асыруды зерделеу, жер учаскелерін бөлу, жекешелендіру.
Сурет 1. Нил Мазитов көшесі, 88 мекенжайы бойынша жасалынған эскиз сызба.
Сурет 2. Нил Мазитов көшесі, 88 мекенжайы бойынша жасалынған фотофиксация.
Бұрынғы үйдің орнындағы фундамент.
Сурет 3. Нил Мазитов көшесі, 88 мекенжайы бойынша жасалынған фотофиксация.
Хоз постройка.
Төртінші апта. 13 маусым-17 маусым.
Сәулет жобаларын орындауға қатысу. ArchiCad программасын зерттеу, сызбаларды орындау. Объектіні пайдалануға беру актісі
үшін эскиздік жобаны орындау, мемлекеттік көрсетілетін қызметтер порталымен жұмыс.
Эскиздік жоба-бұл тапсырыс берушінің техникалық тапсырмасына сәйкес және нормативтік құжаттардың, құрылыс шарттарының талаптарын сақтай отырып маман (сәулетші) орындаған жобалау жұмыстарының кешені. Нысан жоспары, кесу, бас жоспар, жағдай схемасы, қасбеттер және перспективалық көрініс сияқты сызбаларды әзірлеу.
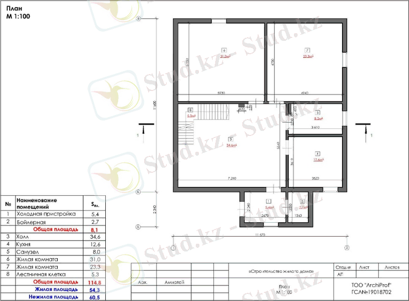
Сурет 4. Нил Мазитов көшесі, 88 мекенжайы бойынша 1 қабат жоспары.
Сурет 5. Нил Мазитов көшесі, 88 мекенжайы бойынша мансарда жоспары.
Сурет 6. Бадина 172/2 мекенжайы бойынша қасбеттер.
Сурет 7. Бадина 172/2 мекенжайы бойынша перспектива.
Сурет 8. Бадина 172/2 мекенжайы. Схема.
Сурет 9. Бадина 172/2 мекенжайы. Басжоспар.
Сурет 10. Бадина 172/2 мекенжайы. 1 қабат жоспары.
Сурет 11. Бадина 172/2 мекенжайы. 2 қабат жоспары.
Сурет 12. Бадина 172/2 мекенжайы. Қасбеттер.
- Іс жүргізу
- Автоматтандыру, Техника
- Алғашқы әскери дайындық
- Астрономия
- Ауыл шаруашылығы
- Банк ісі
- Бизнесті бағалау
- Биология
- Бухгалтерлік іс
- Валеология
- Ветеринария
- География
- Геология, Геофизика, Геодезия
- Дін
- Ет, сүт, шарап өнімдері
- Жалпы тарих
- Жер кадастрі, Жылжымайтын мүлік
- Журналистика
- Информатика
- Кеден ісі
- Маркетинг
- Математика, Геометрия
- Медицина
- Мемлекеттік басқару
- Менеджмент
- Мұнай, Газ
- Мұрағат ісі
- Мәдениеттану
- ОБЖ (Основы безопасности жизнедеятельности)
- Педагогика
- Полиграфия
- Психология
- Салық
- Саясаттану
- Сақтандыру
- Сертификаттау, стандарттау
- Социология, Демография
- Спорт
- Статистика
- Тілтану, Филология
- Тарихи тұлғалар
- Тау-кен ісі
- Транспорт
- Туризм
- Физика
- Философия
- Халықаралық қатынастар
- Химия
- Экология, Қоршаған ортаны қорғау
- Экономика
- Экономикалық география
- Электротехника
- Қазақстан тарихы
- Қаржы
- Құрылыс
- Құқық, Криминалистика
- Әдебиет
- Өнер, музыка
- Өнеркәсіп, Өндіріс
Қазақ тілінде жазылған рефераттар, курстық жұмыстар, дипломдық жұмыстар бойынша біздің қор #1 болып табылады.

Ақпарат
Қосымша
Email: info@stud.kz