ТАС ТІРЕК ҚАБЫРҒАНЫҢ БЕРІКТІГІН ЕСЕПТЕУ ӘДІСІ


- ТАС ТІРЕК ҚАБЫРҒАНЫҢ БЕРІКТІГІН ЕСЕПТЕУ ӘДІСІТас қабырғалары бар ғимараттардың құрылымдық схемалары
Тас қабырғалары бар ғимараттардың кеңістіктік қаттылығын қамтамасыз ету әдісіне сәйкес олар екі түрге бөлінеді (7. 4, 7. 5 [2] тармақ) :
- көлденең бағытта қаттылық жиі орналасқан көлденең қабырғалармен (немесе көлденең жүктемені қабылдауға арналған ұқсас көлденең қатты құрылымдармен) қамтамасыз етілетін қатаң құрылымдық схемасы бар ғимараттар, 6. 7-тармақ [1] ) ;
- көлденең қабырғалары салыстырмалы түрде сирек орналасқан серпімді құрылымдық схемасы бар ғимараттар, ал көлденең бағыттағы қаттылық бойлық қабырғалардың іргетастарға қатты тірелуімен қамтамасыз етіледі.
Ғимараттың конструкциялық схемасын айқындайтын көлденең қатты конструкциялар (қабырғалар) арасындағы шекті қашықтық көлденең жүктемелерді қабылдайтын және беретін конструкциялардың - сыртқы қабырғалар мен жабындардың қаттылығына байланысты болады. Әр түрлі төсеу түрлерінде, тастар мен ерітінділердің беріктік сипаттамаларында, сондай-ақ едендердің түрлерінде (темірбетон монолитті, болат арқалықтарда және т. б. ) бұл қашықтық 12-ден 54 м-ге дейін өзгеруі мүмкін (кесте. 27 ҚНжЕ [1] ) .
Тас ғимараттардың қабырғаларын есептеу кезінде олар қабатаралық едендерге, жабындарға және көлденең қабырғаларға көлденең бағытта тіреледі, ал қатаң құрылымдық схемасы бар ғимараттарда бұл тіректер өзгермейді, бірақ серпімді құрылымдық схемасы болады. Серпімді тіректер кезінде есептеу рамалы жүйе түрінде жүреді, тіреулері - қабырғалары (бағаналар, пилястралар), ал ригельдері - аражабындар және жабындарболып табылады.
Бұл жұмыста жобаланған көп қабатты өндірістік ғимарат қатаң құрылымдық схемаға ие, яғни көлденең қабырғалар арасындағы қашықтық кестемен реттелетін шекті мәннен аспайды деп болжанады. 27 ҚНжЕ [1] .
Естеріңізге сала кетейік, толық емес қаңқасы бар ғимарат жобалануда, яғни жабындар мен аражабындар сыртқы салмақ түсетін қабырғаларға және ғимарат ішінде орналасқан темірбетон бағаналарға тіреледі.
- Есептеу сызбасы
Тік жүктемелердің әсерінен (ҚНжЕ [1] 6. 10-тармағы) едендердің тірек жазықтықтары деңгейінде тұрақты тіректері бар тік бір аралықты (кесілген) арқалықтар түрінде қатаң құрылымдық схемасы бар көп қабатты ғимараттың тірек тас қабырғасының есептік сызбасын қабылдауға рұқсат етіледі (сурет. 1) .
Сур. 1. Терезе аралығын есептеу: а-конструктивтік схема; б - есептеу схемасы және июші сәттердің эпюрасы; в - бойлық күштердің эпюрасы; және - простенкаға берілетін төбе мен жабынның күштері.
Арқалықтың ұзындығы (қабырғаның есептік биіктігі) қабаттың биіктігіне, яғни үстіңгі қабаттың аражабынының тіректік жазықтығынан төменгі қабаттың аражабынының тіректік жазықтығына дейінгі қашықтыққа, топырақ бойынша еден болған жағдайда еденнің бетіне дейін, жертөледе бетон еден болмаған жағдайда іргетастың табаны дейін (4. 8, 7. 216 Т. [2] ) .
Сәуленің тік осі ретінде еден қабырғасының ауырлық центрінен өтетін ось қарастырылады. Жоғарғы қабаттарынан түсетін жүктемені ауырлық центріне бекітілген үстіңгі қабат қабырғасының қимасы қабылдайды; қарастырылып отырған қабаттың қабырғасына сүйенетін қабаттасудан F жүктемесі Е-нің нақты эксцентриситетімен қоса қабылданады. Осылайша, қабырға орталықтан тыс қысу жағдайында жұмыс істейді.
Еденнің биіктігі бойынша моменттер диаграммасы М-нің максималды мәнінен нөлге дейін өзгереді (сурет. 1, б) . Жоғарғы тіректен дг қашықтықта орналасқан аралық қималар үшін иілу моментінің мәні:
F қабаттасудың тірек реакциясын қолдану эксцентриситеттілігі қарастырылып отырған қабат қабырғасының ауырлық центрінен тірек қысымының ауырлық центріне дейінгі қашықтық ретінде анықталады (сурет. 2) . Жабынның тіректік реакциясын қолдану нүктесінен қабырғаның ішкі қырына дейінгі ара қашықтықты а бітеу тереңдігінің үштен біріне тең (тіректік қысым эпюрасының кескіні үшбұрыш түрінде болады деп есептегенде), бірақ 7 см артық емес қабылдауға рұқсат етіледі. (ҚНжЕ [1] 6. 10-т. ) . Бұл жағдайда қабаттасудың тірек реакциясын қолдану эксцентриситеттілігі:
Қарастырылып отырған және үстіңгі қабаттарда қалыңдығы бірдей қабырғаларының (сурет. 2, а) максимал момент мәні ; әр түрлі қалыңдықта (сурет. 2, б) :
болғанда
Сур. 2. Шектес қабаттардағы қабырғаның бірдей (а) және әртүрлі (6) қалыңдығы кезінде қабаттасудан қабырғаларға қысым беру
Қабылданған есептеу схемасында (суретті қараңыз. 1, 6) М моментінің әрекеті кезінде тік арқалықтардың тірек байланыстарында N= M/H күштері пайда болады, сондықтан тас қабырғалар кем емес қимасы бар, 6 м-ден аспайтын якорьмен еден элементтеріне бекітілуі керек. Қажет болған жағдайда якорьлердің көлденең қимасы есептеумен тексеріледі (ҚНжЕ 6. 38-Т. [1] ) .
- Қабырға өлшемдерінің орналасуы
Қабырғаның қалыңдығы жылу және беріктік есептеулеріне, сондай-ақ қолданылатын тастардың мөлшеріне байланысты тағайындалады. Сонымен қатар, қабырға биіктігінің оның қалыңдығына рұқсат етілген қатынасы реттеледі (PP. 6. 17-6. 20 ҚНжЕ [1] ) .
Кірпішпен (кірпіш 250x120x65 мм) 10 мм тік тігістердің орташа қалыңдығын ескере отырып, h қабырғасының қалыңдығы 380, 510, 640 мм және т. б. болуы мүмкін:
1 1⁄2 кірпішті қабырға 120 + 10 + 250 = 380 мм
2 кірпішті қабырға 120 + 10 + 250 +10 + 120 = 510 мм
2 1⁄2 кірпішті қабырға 250 + 10 + 120 + 10 + 250 = 640 мм
Сол сияқты, керамикалық блоктардың қабырғасының қалыңдығы тағайындалуы мүмкін.
Жүктемелер салыстырмалы түрде аз болатын жоғарғы қабаттарда қабырғаның қалыңдығын азайтуға болады.
Курстық жобада жоғарғы қабаттардың қабырғасының қалыңдығын h' = 380 мм, төменгі қабаттарда h = 510 мм деп алуға болады.
Терезе саңылауларының өлшемдері қажетті табиғи жарықтандыруды қамтамасыз ету және жылу шығынын азайту негізінде орнатылады. Курстық жобада биіктігі мен терезе саңылауларының ені қабатының биіктігі мен L2 бағаналарының қадамының үлестерінде шартты түрде белгіленеді:
содан кейін стандартты өлшемдерге дейін дөңгелектеледі. Баған қадамының ішінде бір немесе екі терезе орналастырылуы мүмкін. Терезенің ашылуының төменгі беті әдетте еденнен 0, 8 м деңгейде орналасады; терезе саңылауларының биіктігі бөлменің биіктігінен аз 1, 2 . . . 1, 3 м деп тағайындалады.
Айта кету керек, қабырғаға арналған тіректің тіреуіші міндетті түрде терезе төсенішінің үстінде емес, қабырға үстінде болуы керек. Ригельдің тіреу орнындағы қабырғаұсақтау есебімен тексеріледі. Қажет болған жағдайда көтеру қабілетін арттыру тірек учаскесінің қалау кезінде қарастырылған әр түрлі конструктивтік іс-шаралар - тірек тарататын темір-бетон плиталарын орнату, торлы арматуралау тірек учаскесінің қалау, пилястр құрылғысы, неғұрлым берік кірпіштен жоғарғы 4-5 қатардың қалау орындарында тіреуіш элементтерін және т. б. орнату (п. 6, 41-6. 43 қалау СНиП [1], п. 4. 13, 4. 14 [2] ) .
- Жүктемелерді анықтау
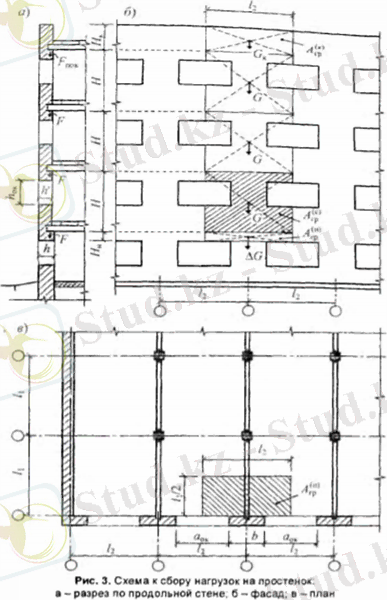
Қабырғалардан қабылданатын жүктеме жүк аудандарымен анықталады (сурет. 3) . Келесі жүктемелер сыртқы қабырғадағы қабырғаға әсер етеді
- Жабыннан жүктемеFпокF_{пок}кН, шатырдың салмағынан және жабын тақталарынанFпокF_{пок}жүктемеденFриг{\ F}_{риг}ригель салмағынан, FснF_{сн}қар жүктемесінен тұрады:
Жабынның және жабын тақталарының салмағынан қабырғаға жүктеме :
- жаппай құрылыс ғимараттары үшін (жауапкершіліктің қалыпты деңгейі) мақсаты бойынша сенімділік коэффициенті =1, 00;
- курстық жобада шатыр мен жабын плиталарының салмағынан беттік жүктеменің есептік мәні қабылданады ;
- төсемнен қабырғаға жүктемені есептеуге арналған жүк алаңы, (сурет. 3) :
Ригель салмағынан кН простенкаға түсетін жүктеме ригель есебінен алынған ригельдің қума салмағының есептік мәні бойынша анықталады:
Қабырғаға түскен қар жүктемесі , кН:
S -қар жүктемесі бетінің есептік мәні, кН/ :
-қар жамылғысы салмағының есептік мәні АҚС бойынша қар ауданына байланысты қабылданады ≪Жүктемелер мен әсерлер :
III қар ауданы үшін ;
IV қар ауданы үшін ;
- қар жамылғысының салмағынан жүктеме жабынға өту коэффициенті (3 қосымша), курстық жобада төмен көлбеу шатыр қолданылады, сондықтан .
- Қабаттасудан жүктемеF, кН, FппF, \ кН, F_{пп}қабаттасу салмағының жүктемесінен, FригF_{риг}ригель салмағының жүктемесі, FврF_{вр}уақытша (пайдалы) жүктемеден құралады:
Бір қабаттың қабаттасу салмағының жүктемесі , кН
- жабын плиталарынан беттік тұрақты жүктеменің есептік мәні жабын плитасы есебінен қабылданады, .
Уақытша жүктеме , кН
- жабынға беттік уақытша жүктеменің есептік мәні, жабынның плитасы есебінен қабылданады, .
- Бір қабаттың сыртқы қабырғасының салмағынан жүктемеG, кН,
- көлемді салмақ, тиісінше, кірпіш пен гипс; , = 20 .
- тас конструкциялардың салмағынан түсетін жүктеме, жүктеме үшін сенімділік коэффициенті = 1, 1 (7. 1 (3) кесте) ;
- кірпіш пен сылақтың қалыңдығы, = 0, 38 м, = 0, 02 м;
- бір қабат қабырғасының салмағынан жүктемені есептеуге арналған жүк алаңы, (3сурет) :
- Қабырғаның карниз бөлігінің салмағынан жүктемеGкG_{к}, кН
- қабырғасының карниз бөлігінің салмағынан жүктемені есептеуге арналған жүк алаңы, (3сурет) :
- қабырғаның карниз бөлігінің биіктігі, м.
3 сурет. Қабырғадағы жүктемелерді жинау схемасы: а - бойлық қабырға бойымен кесу; б - қасбет; в - жоспар
- Простенканың есептік қимасындағы ішкі күштер
Қабырғалардың беріктігі ең үлкен бойлық күштердің әсер ету орындарында, яғни төменгі қабаттарда тексеріледі. Еденнің биіктігі бойынша қауіпті болуы мүмкін әртүрлі бөлімдер қарастырылады: төбенің төменгі деңгейінде (саңылаулары жоқ қабырғалар үшін), терезе ашылуының жоғарғы деңгейінде, төбенің түбінен Н/3 қашықтықта және т. б. Әдетте, терезе ашылуының жоғарғы деңгейіндегі бөлім анықталады (4 суреттегі 1-1 бөлім), өйткені онда айтарлықтай иілу моменті бар, және простенканың салыстырмалы түрде кішкентай бөлімі арқылы қабылданады.
1-ші қабаттың простенкасын есептеу үшін: а - құрылымдық схема; б - есептеу схемасы және иілу моменттерінің диаграммасы; в - бойлық күштердің диаграммасы; г - бойлық иілу коэффициентінің диаграммасы.
Есептік қимадағы бойлық күш
- жабыннан, қабаттасудан және жоғары жатқан қабаттар қабырғасының меншікті салмағынан түсетін жүктеме:
қабат саны;
қабаттасудан жүктеме
қабырғаның терезе үстіндегі бөлігінің едендік тіректің төменгі деңгейінен қимаға дейінгі салмағы 1-1:
қабырғаның үстіңгі бөлігінің салмағынан қабырғаға жүктемені есептеуге арналған жүк алаңы,
қабырғаның терезе үстіндегі бөлігінің биіктігі, м.
Есептік қимадағы иілу сәті , кН м
төбенің төменгі деңгейіндегі, иілу моменті;
ригельдің төменгі жағынан бірінші қабаттың еден белгісіне дейінгі биіктігі.
- Тас қабырғаның тіреуішінің беріктігін тексеру
Қабырға орталықтан тыс сығымдау жағдайында жұмыс істейді, сондықтан оның жүк көтергіштігін тексеру үшін тастан жасалған конструкциялардың орталықтан тыс сығылған элементтерінің беріктігі қолданылады (ҚНжЕ 4. 7 тарау (1) )
кірпіштің есептелген кедергісі тастың маркасына, ерітіндінің маркасына және бірқатар кірпіштің қалыңдығына байланысты 1 қосымшаға сәйкес анықталады.
жүктеменің әсер ету ұзақтығының икемді элементтерге әсерін ескеретін коэффициент;
қиманың сығылған бөлігінің ауданы:
қиманың сығылған бөлігінің биіктігі, сығылған бөліктің ауырлық центрі есептелген бойлық күшті қолдану нүктесімен сәйкес келеді деген шартпен анықталады (5 сурет) :
b, h - қиманың ені мен биіктігі
- күш қолдану эксцентриситеттіліні N:
W - қиманың аз кернеулігі бөлігінің оң әсері есебінен қалаудың сығылған аймағының есептік кедергісінің жоғарылауын ескеретін коэффмциент (кернеу эпюрасының нақты кескіні мен тікбұрыштың айырмашылығы)
5 сурет
центрден тыс сығылу кезіндегі бойлық иілу коэффициенті; шартты түрде бүкіл қимасының бойлық иілу коэффициенті мен қимасының сығылған бөлігінің бойлық иілу коэффициенті арасындағы орташа мән ретінде анықталады.
бойлық иілу коэффициенттері кірпішінің серпімді сипаттамасына байланысты 2 қосымша бойынша, тиісті икемділік мәндерібойынша 3 қосымша арқылы анықталады.
коэффициентінің табылған мәні элемент биіктінінің орташа үштен біріне жатады; биіктіктің шеткі (жоғарғы және төменгі) үштен бірінде (ҚНжЕ 4. 4 тарау (1) ) осы коэффициентті сызықтық заң бойынша тірек қималарында мәніне дейін ұлғайтуға рұқсат етіледі (4, г сурет) .
ҚНжЕ (1) бүкіл қима ауданына қатысты сығылған бөліктің ауданын А = bh анықтау ұсынылады (5 сурет) :
- БІРІНШІ ҚАБАТТЫҢ ТАС ҚАБЫРҒАСЫНЫҢ ҚАБЫРҒАСЫН ЕСЕПТЕУ МЫСАЛЫБастапқы деректер
- Құрылыс ауданы (қаласы) - Тараз;
- Бойлық бөлу осьтерінің арасындағы қашықтық:l1l_{1}= 7, 2 м;
- Ғимарат арқылы өтетін аралықтар саны 3;
- Көлденең бөлу осьтері арасындағы қашықтық:l2=l_{2} = \6, 0 м;
- Еденнің биіктігі:H=H = \4, 8 м;
- Қабаттар саны:n=n = \3;
- Сыртқы қабырғаларды төсеу материалы: 100 маркалы қатты балшықты кірпіш;
- Ерітінді маркасы: 75;
- Еден плиталарынан есептелген жүктеме:g’=g’ =3, 584 кН /м2м^{2};
- Ригельдің сызықтық салмағы:qриг=q_{риг} = \3, 92 кН/м;
- Қабаттасуға есептелген уақытша жүктеме:ν\nu\= 6, 0 кН /м2м^{2};
- Қабырға қалыңдығы (қабырға қимасының биіктігі) : бірінші қабаттаh=h =0, 51 м, жоғарғы қабаттарда h' = 0, 38 м. Өлшемдердің орналасуы
- Терезе ені:aoк=0, 6•l2=0, 6•6=3, 6мa_{oк} = 0, 6 \bullet l_{2} = 0, 6 \bullet 6 = 3, 6\ м
- Терезенің биіктігі:hoк=0, 6•H=0, 6•4, 8≈2, 8{\ h}_{oк} = 0, 6 \bullet H = 0, 6 \bullet 4, 8 \approx 2, 8\м
- Қабырға ені:b=l2−aoк=0, 6−3, 6=2, 4мb = l_{2} - a_{oк} = 0, 6 - 3, 6 = 2, 4\ м
- Ригельдің түбінен бірінші қабаттың еденіне дейінгі биіктік:
Мұндағы тіреуіш пен еден тақтасының биіктігі.
- Бірінші қабаттағы қабырғаның терезе үстіндегі бөлігінің биіктігі:
- Карниз қабырғасының биіктігі:Hп=0, 5мH_{п} = 0, 5\ м. Жүктемелерді анықтау
- Жабынның жүктемесі
Жүк алаңы:
.
Шатыр мен жабын плиталарының салмағынан жүктеме:
Ригель салмағынан жүктеме:
.
Қар жүктемесі:
Жабынның жалпы жүктемесі:
- Қабаттасудан жүктеме
Қабаттасу салмағынан жүктеме:
... жалғасы- Іс жүргізу
- Автоматтандыру, Техника
- Алғашқы әскери дайындық
- Астрономия
- Ауыл шаруашылығы
- Банк ісі
- Бизнесті бағалау
- Биология
- Бухгалтерлік іс
- Валеология
- Ветеринария
- География
- Геология, Геофизика, Геодезия
- Дін
- Ет, сүт, шарап өнімдері
- Жалпы тарих
- Жер кадастрі, Жылжымайтын мүлік
- Журналистика
- Информатика
- Кеден ісі
- Маркетинг
- Математика, Геометрия
- Медицина
- Мемлекеттік басқару
- Менеджмент
- Мұнай, Газ
- Мұрағат ісі
- Мәдениеттану
- ОБЖ (Основы безопасности жизнедеятельности)
- Педагогика
- Полиграфия
- Психология
- Салық
- Саясаттану
- Сақтандыру
- Сертификаттау, стандарттау
- Социология, Демография
- Спорт
- Статистика
- Тілтану, Филология
- Тарихи тұлғалар
- Тау-кен ісі
- Транспорт
- Туризм
- Физика
- Философия
- Халықаралық қатынастар
- Химия
- Экология, Қоршаған ортаны қорғау
- Экономика
- Экономикалық география
- Электротехника
- Қазақстан тарихы
- Қаржы
- Құрылыс
- Құқық, Криминалистика
- Әдебиет
- Өнер, музыка
- Өнеркәсіп, Өндіріс
Қазақ тілінде жазылған рефераттар, курстық жұмыстар, дипломдық жұмыстар бойынша біздің қор #1 болып табылады.

Ақпарат
Қосымша
Email: info@stud.kz