Айналдырғыш электржетегін модерлендіру және құру


Жұмыс түрі: Дипломдық жұмыс
Тегін: Антиплагиат
Көлемі: 77 бет
Таңдаулыға:
Жоспар
КІРІСПЕ
1. СБШ-250 БҰРҒЫЛАУ ҚОНДЫРҒЫСЫНЫҢ РОТОРЫНЫҢ ЭЛЕКТР ЖЕТЕГІН ЖОБАЛАУ
- Бұрғылау станоктары. Міндеті. Типтері
- Бұрғылау станоктарының конструктивтік ерекшеліктері
- СБШ-250 станогының жұмыс органдары
- СБШ-250 станогының шынжыр табанды жүрісінің электржетегі
1. 5 Станоктың шаңбасу жүйесі
1. 6 Станоктың жүктемелік диаграммасы
1. 7 Станок электржетегіне қойылатын талаптар
2 АЙНАЛДЫРҒЫШ ЭЛЕКТРЖЕТЕГІН МОДЕРЛЕНДІРУ ЖӘНЕ ҚҰРУ
- СБШ-250 бұрғы станогының айналдырғышының бар электржетегі
- СБШ-250 станогының көмекші электржетектері
- СБШ-250 бұрғылау станогын энергиямен қоректендіру
2. 4 Тиристорлы кернеу түрлендіргіші бар СБШ-250 бұрғы станогының айналдырғышының электржетегін құру
2. 5 Тиристорлық басқару станциялары
3 ЭКОНОМИКАЛЫҚ БӨЛІМ
3. 1 Кәсіпорынның жұмыс істеу тәртібі
3. 2 Тиристорлық кернеу түрлендіргіші арқылы басқарылатын электр жетектеріне кететін шығындар
4. ЕҢБЕК ҚОРҒАУ
4. 1 Кеніш шаңдары, оларға қарсы күрес
4. 2 Қалқып жүрген шаңды басу үшін, сұйықтың үлестік шығынын аналитикалық негіздеу.
4. 3 Жұмыс зонасының ауасына қойылатын жалпы санитарлық-гигиеналық талаптар
4. 4 Жұмыс орындарындағы микроклиматтың оптималды және шекті көрсеткіштері
4. 5 Өрт қауіпсіздігі
4. 6 Радиожиіліктердің электромагниттік аймағы
4. 7 Радиожиіліктің электромагниттік аймағы әсерінің шекті деңгейі
4. 8 Электр қауіпсіздігі. Қорғаныс жерлену
4. 9 Жұмыс орнында шудың шекті деңгейі
4. 10 Дірілдеулер
4. 11 Жарықтандыру
4. 12 Жұмыс орынның жасанды жарықталуы
4. 13 Жарықтың көзін таңдау
4. 14 Шамдардың орналасуы
4. 15 Жобаланып отырған кәсіпорында потенциалды қауіпті факторлардың анализі
4. 16 Техникалық ұйымдастыру шаралары
ҚОРЫТЫНДЫ
ӘДЕБИЕТТЕР ТІЗІМІ
КІРІСПЕ
Қазақстанда тау-кен өнеркәсібінің дамуы пайдалы қазбаларды өндірудің ашық тәсілін аса ірі қолдануымен байланысты. Бұл өндіру тәсілінде ең қиын өндірістік процесс жарылғыш ұңғымаларды бұрғылау болып табылады. Бұрғылауға кететін шығын 1 т пайдалы қазбаны алуда барлық келер шығынның 30 % құрайды. Ұңғымаларды бұрғылау техника мен технологияларды, электржабдықтарды жетілдіруге тікелей байланысты.
Әртүрлі тау-кен - геологиялық шарттарда ең көп жұмыс істейтін станоктар болып СБШ типті станоктар болып табылады.
Бірнеше жылдар аралығында ЖШС ПФ «Казэнергоцветмет» карьеріндегі жұмысында CБШ-250 станогын пайдалану кезінде олардың жұмысы көп қарсылықпен шығарылады, механикалық, және электрлік жабдықтарда қондырылған станокта жұмыс салыстырмалы ұзақты уақыт аралығында электрарикация және автоматтандырылған электржетек құралдары аумағында үлкен прогресс болды. Осы құралдар базасында электр жабдықтарды жоңдырту оның жұмыс істеу сенімділігін арттырады, механикалық бөлігі және бұрғылау қондырғы сенімділігін бүтіндейді.
Дипломдық жобада роторды бұратын тұрақты токты электржетегін, бағасы жағынан арзан, жұмыс істеу мүмкіндігі қарапайым, әрі сенімді асинхронды электржетегімен алмастыру қарастырылып, ал күштік түрлендіргіш ретінде кернеу түрлендіргіші таңдалып, оның статикалық, динамикалық режимдері талданды.
1. СБШ-250 БҰРҒЫЛАУ ҚОНДЫРҒЫСЫНЫҢ РОТОРЫНЫҢ ЭЛЕКТР ЖЕТЕГІН ЖОБАЛАУ
- Бұрғылау станоктары. Міндеті. Типтері
Бұрғылау станоктары карьерлердің аршу және өндіру керпештерінде жарылу жұмыстарында, құрғақ және сулы, тұтас және жарықшақтық жыныстарда ұңғымаларды бұрғылау үшін арналған. Қолданылу аймағы - көмір, кен, қара және түсті металлургиядағы ашық тау-кен қазулары, тау-кен - химиялық өнеркәсібі, сонымен қатар гидротехникалық және теміржол құрылысын салу.
Бұрғылау станоктары - өздігінен жүретін бұрғылау агрегаттары, негізгі жабдықтары болып - қозғалғыш арба жұмыс органы, гидрожетек, пневможүйе, шаңжұту және шаңбасу жүйелері, электржабдықтары, машиналық бөлме және басқару кабинасы.
Қозғалғыш арба. Ауыр және орташа типті станоктарды шыңжыр табанды арбаларда жөндейді, ал жеңіл типті станоктарды шыңжыр табанды жүріспен қатар пневматикалық (дөңгелекті) жүрісте жөндейді.
Жұмыс органы тігінен орналасқан және мачтадан, айналып-беру механизмнен және кассетадан тұрады. Мачта біржағынан ашық немесе жабық тікбұрышты қималы кеңістікті ферманы білдіреді. Ашық мачта, мачта ішінде орналасқан жұмыс органының механизмі мен қоректендіретін коммуникацияларын қадағалауын және қызмет көрсетуін жеңілдетеді. Мачталардың бекітілуі топсалы. Гидроцилиндрлердің көмегімен оларды тігінен немесе көлбеу жұмыс жағдайында және көлденеңінен транспорттық жағдайда орналастырады.
Іс-әрекеті бойынша шарқашаулы бұрғылау станоктары айналып-беру механизмінің төменгі (патронды сұлба) және жоғарғы (айналдырықты сұлба) орналасуы бар станоктарына бөлінеді.
Ауыр және орташа типті станоктарда бұрғылау құрал-сайманының айналу жетегі генератор-қозғалтқыш (Г-Қ), күштік магнитті күшейткіш- қозғалтқыш (КМК-Қ) және тиристорлы түрлендіргіш-қозғалтқыш(ТТ-Қ) жүйесі бойынша басқарылатын тұрақты ток электрқозғалтқышы арқылы іске асырылады. Жеңіл типті станоктарда айналу жетегі негізінен гидроқозғалтқыштардан жасалады.
Көп жағдайларда забойға құрал-сайманның гидравликалық жеткізу әдісін қолданады. Қүрылымдық жағынан берілістердің гидравликалық механизмдері әртүрлі.
Станоктарды арқанды-рейкалы арынды механизммен немесе гидроқозғалтқышты жетекпен рейкалы-шынжырлы механизммен жабдықтайды. Көптеген станоктарда забой ұңғымасына қүрал-сайман гидравликалық жетегі бар роликті тізбектермен немесе гидроцилиндрлермен беріледі.
Кейбір станоктар, жетегі электрқозғалтқыштан шығыр арқылы арқанды беріліспен құралады. Осы механизмдермен бұрғылау сабының көтерілуі жүзеге асырылады.
Көптеген станоктар құрылымында гидроцилиндрлер мен гидропантрондар көмегімен осьтік жүктеме жасау қарастырылған. Осы кезде көтеріп-түсіру операциялары бұрғылау сабының жинамасы және бұзылған кезінде станоктарда орналасқан арнайы шығырлармен жүзеге асырылады.
Бұрғылау сабын, бұрғы қарнақтары орналасатын кассета және бұрғылау сабының көтеру шығырын бұрғылау қарнақтарымен қосатын, топсақ көмегімен ұзартады және айырады.
Гидрожетек. Станоктарда гидрожетектің көмегімен негізгі және көмекші операциялар іске асырылады. Атқарушы органдар реттелетін немесе тұрақты берілісті сорғылардан қорек алады. Гидрожетек жүйесіне гидробактан және сорғы қондырғыларынан тұратын майсорғы станциясы, гидроаппаратура блоктары, гидромоторлар, түрлі механизмдердің күштік гидроцилиндрлері, бақылау аспаптары және гидрокоммуникациялар кіреді.
Пневможүйе. Шарқашаулы қашаудың өнімдерін ұңғымадан алып тастау үшін бұрғы сабы арқылы ұңғымаға компрессор станциясымен берілетін сығылған ауа қолданылады.
Шаңжұту және шаңбасу жүйелері . Ұңғымадан шығарылатын бұрғылау үйінділері мен шаңды жұту құрғақ шаңжұтқыш немесе сумен шаңбасу қондырғыларымен іске асырылады. Ауа ағыншасына су себіледі және ұнғыма ауа-су қоспасымен үрленеді.
Электржабдық. Станок кернеуі 380В айнымалы токты төменгівольтті тораптан немесе иілгіш кабельдің көмегімен кернеуі 6000В электрэнергиясымен қоректенеді.
Атмосфералық жауын-шашындардың әсерін болдырмау үшін ауыр және орташа типті станоктардағы жабдық машина бөлмесінде орналасқан.
Бұрғылау процессін және барлық көмекші операцияларды басқару машинист (оператор) кабинасынан жүргізіледі.
- Бұрғылау станоктарының конструктивтік ерекшеліктері
СБШ-250 станогында (1. 1 кесте) жұмысшы органының кертешті орналасуы және айналып-беру механизмінің жоғары орналасуы бар.
Кесте 1. 1 - СБШ-250 станогының параметрі
Кесте 1. 1 -жалғасы
Станок габариттері, мм:
ені
жұмысы кезінде:
ұзындығы
биіктігі
Станок массасы, т
5450
9200
15350
66
СБШ-250 станогы (1. 1, а сурет) шынжыр табан жүрісіне құрастырылған. Ал олардың осьтеріне машина бөлімшесі 4 бар платформа станогы орналастырылған, ол станоктың күштік конструкциясы болып есептеледі.
Станоктың алдыңғы бөлігінде тұла бойы осімен машина бөлімшесінің күштік элементтеріне бекітілген, арнайы тіреулерде жұмысшы органы 1 орналасқан. Ол мачта тіреулерімен шарнирлі қосылған екі гидроцилиндрдің 2 көмегімен жұмысшы және транспорттық күйге қойылады. Станокты көлденең күйге қою - екі алдыңғы 7 және артқы 6 үш гидродомкраттың көмегімен жүзеге асырылады. Станокпен басқару жүйесі кабинадан 3 жүргізіледі.
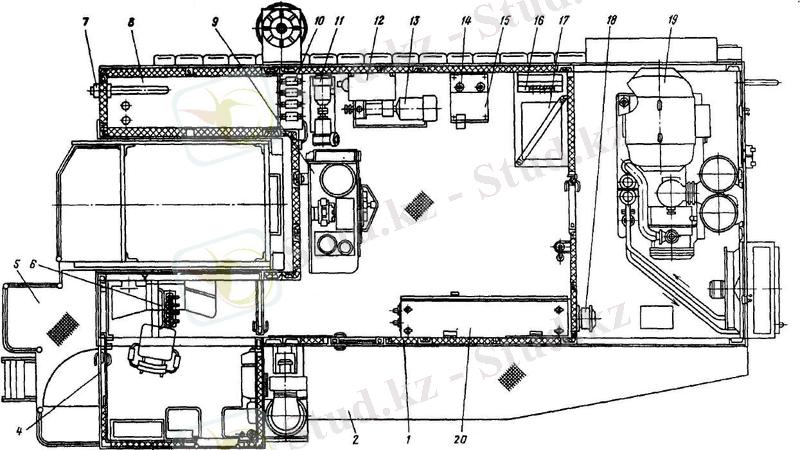
СБШ-250 бұрғы қондырғысының жалпы көрінісі
Станоктағы қондырғылар келесі жүйеде орналастырылған. Жылуы жоқ машина бөлімшесінде 1 компрессорлық қондырғысы 19 бар таратылу жәшігі 18 , ал жылуы барда - блокты гидроаппаратурасы 10 бар майлы сорғышты станция 9 , суды бакқа құятын сорғыш 11 , кен орынды суару сорғышы 13 , түзету қондырғысы 12 , жарықтандыру және басқару тізбекті трансформатор 14 , тиристорлық түрлендіргіш 17 және батырмалық станция 16 , электрлі басқару шкафы 20 , құрал-саймандарға арналған жәшік 15 .
1. 1 сурет - СБШ-250 бұрғы қондырғысында жабдықтардың орналасуы
Станоктың оң жағында - суға арналған бак 8 қыздырғыштармен 7 , ал сол жағында - басқару пульті 6 бар кабина 3 және оператор орындығы 4 . Кабина конструкциясы дыбыс оқшауламасы бар қабырғалардан және төбеден толықметалдан дәнекерленген. Едені резеңкелі төсенішпен төселген ағаштан жасалған. Машина бөлімшесіне және кабинаға алаңқай 2 арқылы кіріп, ал кабинадан жұмыс органына алаңқай 5 арқылы шығады.
Гидрожетек майсорғы станциясынан және орындаушы цилиндрлерден, сонымен қатар таратылу және бақылап реттегіш аппаратураларынан тұрады.
Бұрғылау ұңғымасынан қалған қалдықтарды жою, шарқашауды суыту және шаң басу су-ауа қоспалары арқылы жүзеге асырылады.
Станокқа электрэнергия, кернеуі 380 В айнымалы токты төменвольтті тораптан иілгіш кабель арқылы беріледі.
- СБШ-250 станогының жұмыс органдары
СБШ-250 станогының жұмыс органдары айналып-беру механизмінің жоғарғы орналасуымен жасалған.
Мачтада 3 СБШ-250 (1. 2 сурет) станогының жұмысшы органының келесі түйіндері жасалған: айналдырғыш 2 , бұрғы қарнақтары 9 , комплектісінің кассеталары 1, тарту арбасы 5 , тірке 4 беріс механизмінің блоктары 6 және басқа түйіндер. Мачтада саты 8 және түйіндерді қауіпсіз жерден басқаруға арналған арнайы қоршауға алынған алаңқай 7 орналастырылған.
1. 2 сурет. СБШ-250 бұрғы станогының жұмыс органы
Мачтаның өзі сортталған металлдан дәнекерленген формалы кеңістік болып көрінеді.
Беріс механизмінің және жайма механизмінің 10 екі гидроцилиндрлері 11 мачтаның негізінде орналастырылған. Мачтаның бойымен бағыттаушылар өтсе, ал оның шетімен айналдыру арбасы мен гирляндалар өтеді. Мачтаның көтерілуі мен түсірілуі мачта тіреулерінде орналасқан екі гидроцилиндрлермен іске асырылады.
Пісіру сабының айналуының бүйіржақты жетегі - МТН612-10 типті, қуаты 70 кВт, айналу жиілігі 560 об/мин, ТТ-Қ жүйесі бойынша басқарылатын тұрақты ток электрқозғалтқышымен іске асырылады. Айналу жиілігі электрқозғалтқыштың якорінде кернеудің өзгеруімен реттеледі.
1. 3 сурет - СБШ-250 бұрғы станогының айналдырып-беру механизмінің кинематикалық схемасы
Бұрғылау сабының айналуы берілісінің саны 11 болатын екісатылы редуктор 2 арқылы электрқозғалтқышпен 1 (1. 3 сурет) жүргізіледі. Бұл бұрғылау сайманында 4200 Н⋅м-ге тең номинал бұрау моментін береді. Редуктордың шығыс білігінен шиналы-тісті муфта 3 арқылы айналады және тіректік түйін бұрғылау сабына беріледі. Шиналы-тісті муфта редуктормен электрқозғалтқышты соқкылардан және дірілден сақтандырады.
Қашауға тіректік түйін 4 арқылы осьтік күш үш тарамды-төзімді шарикті мойынтіректен қабылданады. Кареткалар 5 көмегімен айналдырушы, бағыттаушы мачталар бойымен жоғары және төмен қозғалады. Тіректік түйін каретка 5 бойымен қозғалуы мүмкін. Оның корпусында айналдырушының айналдырығын айналудан тоқтататын екі гидроцилиндрлер орналастырылған. Электрқозғалтқыштарды суыту үшін оның жоғарғы ернемегінде желдету құрылғысы қондырылған. Тіректік түйіннен төмен қашауды суыту үшін және ұңғымадан бұрғы үйінділерін шығару үшін бұрғы сабына ауа-су қоспасын беру құрылғысы орналастырылған.
Бұрғылау сабының забойға берісін іске асыратын беріс механизмі, саптың көтерілуі және тіркенің керілуі, екі гидроцилиндрлерден 8 және екі төртеселі арқанды-полиспасты жүйелерден тұрады, бұл цилиндр штогының 2м жүрісі кезінде бұрғы штангасының жүрісін 8 м ұзындыққа қамтамасыз етеді. Арқанды-полиспасты жүйе соңдары айналдырғыш кареткасымен 5 қосылған жоғарғы 9 және төменгі 6 арқандардан тұрады. Цилиндр штоктарының жоғары қарай жүрісі кезінде төменгі арқандардың керілуі болады және айналдырғыш төмен қарай жүреді, ал гидроцилиндрлер 300 кН күш тудырады.
Тіркенің керілуі қозғалмалы кареткамен 11 іске асырылады. Ол цилиндрлердің біреуінің штогымен қосылған арқанның 10 көмегімен айналдырғыш артынан көтеріледі немесе түсіріледі, бірақ жолды екі есе аз өтеді. Арқанның керілуі бұрамаларымен 12 немесе жалғастырғыштарымен 7 реттеледі.
Кассета үш қарнақты сақтау және оларды бұрғы сабын ұзарту процессінде оларды бұрғылау осіне беріс үшін қолданады. Кассета вертикаль біліктен тұрады. Ол шарикті мойынтіректік тіреулерде орналасқан.
Бұрғы сабын жинау кезінде бұрғылау осіне қарнақтарды беру үшін кассета бұрылысы гидроцилиндрлермен іске асырылады. Кассетаның үш тостағанының біреуінің осінің бұрғылау осімен үйлесуі орнықтырғыш көмегімен автоматты түрде жасалады.
Қарнақтан өткізгішті бұрау кезінде кассетада орналасқан қарнақты айналудан ұстап тұру үшін кассета тостағандарында бұрау кезінде тежеу моментін тудыратын қарнақтардың орнықтырғыштары орнатылған. Кассетада қарнақтарды орнықтыру және құлыптау қарнақтардың салмағының әсерімен бекіткішпен жасалады.
Бұрғы қарнағын орнатуға дейін бекіткіш серіппелермен жоғары көтерілген және қарнақты қабылдау үшін қарпығыш бос. Бос тостағанға орнату кезінде қарнақ басқышқа басады және арқан арқылы өзін кассетада құлыптай отырып жоғарғы бекіткішті төмен қарай тартады. Артқа шегерілген кассета автоматты бекіткішпен шеткі күйде орнығады және ұсталады. Брғылау сабын жинау және бөлшектеу кезінде қарнақтар мен шарқашаулы қашауларды бұрау және бұрап алу қырылдақ механизмі құрастырылған тұрқыдан тұратын механизммен жүзеге асырылады. Қырылдақ дөңгелегінің бұрылысы екі жақты әсерлі ілмекшаппа немесе бәсеңдеткіш арқылы гидроқозғалтқыш арқылы гидроцилиндрмен іске асырылады.
Бұрау механизмінен жоғары, жоғарғы қарнақты ұстап тұру және қарнақтарды бұрау мен бұрап алу кезінде оны айналудан сақтандыруға арналған жоғарғы кілт орналасқан.
Көлбеу ұңғымаларды бұрғылау кезінде, бұрғы сабын ұзарту кезінде және бұрғы сабын бұрап алу кезінде жоғарғы қарнақты бұрғылау осінде ұстап тұру сүйеуішпен іске асырылады.
- СБШ-250 станогының шынжыр табанды жүрісінің электржетегі
СБШ-250 станогының шынжыр табанды жүрісінің электржетегі қуаты 22 кВт, айналу жиілігі 11, 7 с -1 , бұрау моменті беріліс саны 162, 8-тең РХ-9 бәсеңдеткіші арқылы шынжыр табанның жетекші доңғалаққа берілетін МТКН 412-8 типті электрқозғалтқыштан жүзеге асырылады.
СБШ-250 станогының шынжыр табанды жүрісінің электржетегі (1. 4 сурет) электрқоғалтқыштан 1 тұрады. Электрқозғалтқыштан жалғастырғыш 2 арқылы қозғалыс I-I білігіне беріледі, білік-тіс тегершіктен 3 тісті доңғалақ 4 көмегімен - II-II білігіне беріледі, тістегерішпен 5 - III-III білігінің тісті доңғалағына беріледі. Білік-тістегершіктен 7 қозғалыс IV-IV білігінің тісті доңғалағына ауысады, білік-тстегершіктен 9 тісті доңғалақ 10 арқылы - V-V білігіне ауысады. V-V білігінде жетекші доңғалақ (жұлдызша) шынжыр табанды таспаны қозғалысқа келтіреді. Станок жүрісін тежеу үшін, сондай-ақ
бір тежелген шынжыр табан кезіндегі бүрылу үшін ТКП-300 типті тұрақты ток қалыпты электрмагнитті тежегіштері
12
орнатылған.
- сурет - СБШ-250 бұрғы станогының шынжыр табанды жүрісінің электржетегінің кинематикалық схемасы
- Станоктың шаңбасу жүйесі
СБШ-250 станогының шаңбасу жүйесі келесі қондырғылардан құралған: компрессорлық, шаңбасу және ауа-су қоспасының көмегімен бұрғылау үйінділердің үрленуін, забой ұңғымаларын бұрғылау шламдарынан тасымалдау арқылы ұңғымаларды тазарту, шаршақашаулы қашаулар тіректерін суыту және қоршаған ортаның шаңдылығын төмендету.
Шаңбасу қондырғысы ауалық құбырға суды әперу нәтижесінде бұрғылау сайманын суыту және жұмыс зонасындағы шаңдылықты санитарлық нормаға дейін төмендетуге арналған. Шаңбасу қондырғысына кіреді: сыйымдылығы 2, 3 м 3 , қуаты 12 кВт болатын ТЭН типтегі элекроқыздырғышы бар суға арналған бак және суықтық деңгейін көрсететін датчик, электрқозғалтқыштан қоректенетін жетегі бар электрсорғышты
қоректендіргіш агрегат, суды қатты түйіндерден тазартуға арналған фильтр, арматура және құбыр.
1. 5 сурет - СБШ-250 бұрғы станогының ауа-су жүйесінің схемасы
Бұрғылау үйінділерімен (1. 5 сурет) үрлеп тазарту қондырғысы ұңғыманың сағасынан бұрғы шламдарын шығарады. Ол электрқозғалтқышқа кірістірілген жетегі бар СВМ-5М типтегі Н2 желдеткіштен, ұңғыманың сағасына ауалық ағыншаны жеткізетін ауа арнадан және телескопты бөлімнің жұмыстық және тасымалдау күйі кезінде өзгеруіне арналған гидроцилиндрден тұрады.
СБШ-250 бұрғы станогының ауа-су қоспасы жүйесінің схемасы келесі түрде жұмыс істейді. Электрсорғышты қоректендіргіш агрегаты ПН1 компрессордың КМ1 орнықты жұмысы бойынша қосады, нәтижесінде ауа-су қоспасы пайда болады. Бұл жағдайда ВН1 6 және ВН1 4 вентильдері ашылады, ВН1 5 және ВН - жабылады. Су Ф1 фильтрі және кері клапан КО2 арқылы араластырғышқа СМ1 құйылады. Судың және қоспаның берісін азайту үшін реттегіш вентильді ВН2 ашады және судың бөлігі бакқа Б1 құйылады.
Судың шығынын ВН2 вентилімен реттей отырып, қоршаған ортаның шаңдылығын эффективті түрде төмендету үшін тау жыныстарын бұрғылау және олардың ұстасушылығы кезінде өзіне керекті ауа-су қоспасын жасайды. Компрессорға судың кері ағыс толықтыруын болдырмау үшін магистральдарға КО1 және КО2 кері клапандарын қояды.
ВН1 1 және ВН1 2 жабылатын вентильдері суды сорғыштан ағызу үшін, ал ВН1 3 - жұмыс соңында бұрғы станогының құбырында конденсатты ағызу үшін арналған.
Судың бос ағызылуы құбыр магистральдарының ажырауын қамтамасыз етеді. ВЗ1 электрмагниттік клапандармен бұргылау станогының көмекші операциялар жасау кезінде бұрғылау қарнақтарын (бұрау және бұрап алу, басқа бұрғылау нүктесіне көшу және т. б. ) ауа беруі тоқтатылады. ВЗ1 клапанын жабу кезінде магистральді құбырда 0, 7 Мпа артық қысым пайда болады. Осы артық қысым компрессор берісінің реттеуішіне әсер ете отырып, кіргізу клапанының басқаруына ауаның жеткізілуін қамтамасыз етеді, осымен атмосферадан ауа алыну кіргізу клапанының алыну терезелерін жабу арқылы тоқтатылады.
КД1 дренажды тоңазытылмайтын клапан бұрғылау жұмыстары аяқталғаннан кейін сыйымдылықтан су қалдықтарын түсіру үшін арналған.
Магистральді ауамен үрлеу үшін ПН1 агрегатын ажыратады, осы кезде КО2 клапаны су магистральдарына ауа өтуін жабады. Сорғыны үрлеу агрегаттан суды ағызу үшін ВН1 1 және ВН1 2 вентильдерінің жалғастықтарына шлангты қосумен ВН3 вентильдері арқылы жүзеге асырылады.
ВН2 вентилімен су жөндеу жұмыстары кезінде жүйеден ажыратылады, ВН1 5 вентилімен жабдықты жуу және т. б. мұқтаждар үшін беріледі. Бакты сумен толтыру РВ3 суалғы жеңінің көмегімен іске асырылады.
- Станоктың жүктемелік диаграммасы
Айналдырғыштың, беріс (көтеру), жүріс механизмдерінің және компрессордың электржетектерінің жұмыс режимдері мәнді түрде ажыратылыды.
Айналдырғыш жетегі бұрғылау процесінде, сондай-ақ бұрғы сабын ұзарту және шашу кезінде жұмыс істейді. Айналдырғыш жетегінің жүктемесі көптеген факторлармен анықталатын кездейсоқ сипаттамаға ие. Негізгісі жатыс тереңдігі бойынша кен жыныстарының таралуы болып табылады. Бірқатар көмір кенорындарының (Екібастұз, Черногор, Минусин, Черемхов) литологиялық қималарын талдау нәтижесінде қабаттар қалыңдығы және бұрғыланатын жыныс бекемдігінің коэффициенті кездейсоқ түрде өзгеретіні және сәйкесінше 0, 1-ден 6 м-ге дейін және 2-ден 14-ке дейін (профессор М. М. Протодьяконов шкаласы бойынша) аралықта болатыны анықталған.
Бұрғылау жұмыстары процесінде алынған СБШ-250 бұрғы станогының айналдырғышының электрқозғалтқыш якорінің тоғының өзгеру осцилограммасынан (1. 6, а сурет) бұрғылаудың бір периодының бірнеше қайтаұстау циклдарының арасында қозғалтқыш 4 есе өзгереді (максимал мәннің минимал мәнге қатынасы) .
Бұл кездейсоқ түрде бір ауысу циклының арасында және қарнақты бұрғылау кезінде көп немесе аз орташа мәндерге қатысты болады. Айналдырғыш жүктемесінің сипатына, сондай-ақ айналдырғыш механизмінің жоғарғы немесе төменгі орналасуымен анықталатын, айналдырғыш механизмінің конструктивтік орындалуы әсер етеді.
1. 6 сурет - а) СБШ-250 бұрғы станогының айналдырғыш қозғалтқышының жүктеме осцилограммасы, б) және в) айналдырғыш механизмі төмен орналасқан станоктың жұмыс циклінің және бұрғылау операцияларының диаграммалары
Бұрғы станогының жұмыс циклының поцесінде, айналдырғыш жетегінің қозғалтқыш жүктемесінің диаграммасы t 1 периодында (1. 6, б сурет) бірінші және келесі қарнақтармен бұрғылауды, t 2 - қарнақтарды ауыстыруды, t 3 - қарнақтарды бұрауды, ал t 4 - оларды бұрап алуды көрсетеді. t 5 уақыты кезінде жаңа ұңғыманы бұрғылауға дайындық үшін қажетті операциялар кешені жүзеге асырылады. Айналдырғыш механизмі төмен орналасқан станоктар үшін t 1 бұрғылау периоды (1. 6в, сурет) t 1. 1 , …, t 1. . n , бұрғылау бөлікшелерінен және t 1. 1 , t 1. 2 , …, t 1. n аралығында қарнақтарды қайтаұстау бөлікшелерінен тұрады. Қарнақтарды бұрандау және бұрап шығару периодында ток максимумы тоқтатқыш мәніне жетеді.
... жалғасы- Іс жүргізу
- Автоматтандыру, Техника
- Алғашқы әскери дайындық
- Астрономия
- Ауыл шаруашылығы
- Банк ісі
- Бизнесті бағалау
- Биология
- Бухгалтерлік іс
- Валеология
- Ветеринария
- География
- Геология, Геофизика, Геодезия
- Дін
- Ет, сүт, шарап өнімдері
- Жалпы тарих
- Жер кадастрі, Жылжымайтын мүлік
- Журналистика
- Информатика
- Кеден ісі
- Маркетинг
- Математика, Геометрия
- Медицина
- Мемлекеттік басқару
- Менеджмент
- Мұнай, Газ
- Мұрағат ісі
- Мәдениеттану
- ОБЖ (Основы безопасности жизнедеятельности)
- Педагогика
- Полиграфия
- Психология
- Салық
- Саясаттану
- Сақтандыру
- Сертификаттау, стандарттау
- Социология, Демография
- Спорт
- Статистика
- Тілтану, Филология
- Тарихи тұлғалар
- Тау-кен ісі
- Транспорт
- Туризм
- Физика
- Философия
- Халықаралық қатынастар
- Химия
- Экология, Қоршаған ортаны қорғау
- Экономика
- Экономикалық география
- Электротехника
- Қазақстан тарихы
- Қаржы
- Құрылыс
- Құқық, Криминалистика
- Әдебиет
- Өнер, музыка
- Өнеркәсіп, Өндіріс
Қазақ тілінде жазылған рефераттар, курстық жұмыстар, дипломдық жұмыстар бойынша біздің қор #1 болып табылады.

Ақпарат
Қосымша
Email: info@stud.kz