Коксты кептіру


Қазақстан Республикасы Білім және Ғылым Министрлігі
Қ. Жұбанов атындағы Ақтөбе мемлекеттік өңірлік университеті
Техникалық факультет
«Химия және химиялық технология» кафедрасы
КУРСТЫҚ ЖҰМЫС
Тақырыбы: Коксты кептіру
Орындаған: ОЗХТқ-3 топ студентіАбилхаирова А. А.
Қабылдаған: х. ғ. к., доцент Тастанова Л. К.
Ақтөбе 2015
Жоспар:
Аннотация . . . 3
Кіріспе . . . 4
1. Кептіру туралы жалпы анықтама . . . 5
2. Кептіргіш қондырғыларының классификациясы . . . 7
3. Негізгі аппараттың сипаттамасы . . . 11
4. Кептірілетін өнімнің сипаттамасы . . . 12
5. Конструкторлы материалды таңдау . . . 15
6. Технологиялық есептеулер үшін бастапқы мәліметтер . . . 17
7. Кептіргіш қондырғының материалдық және жылулық балансы . . . 18
8. Гидродинамикалық есептеулер . . . 20
9. Кептіргіштің гидравликалық кедергісін есептеу . . . 26
10. Қосымша аппарат калориферді есептеу . . . 27
Қорытынды . . . 30
Пайдаланылған әдебиеттер . . . 31
Аннотация
Берілген есепті-анықтамалық хаттама 31 беттен тұрады. Бұл курстық жұмыста псевдосұйылтылған қабаты бар кептіргіштің материалдық, жылулық, гидравликалық және конструктивті есептеулері орындалған. Қосымша аппарат калорифердің есептеуі жүргізілген.
Хаттамада кептіргіш аппараттардың теориясы, конструктивті элементтердің эскиздері қарастырылған.
Кіріспе
Қатты және пасталы заттардан ылғалды жою олардың тасымалдауын арзандатады, оларға қажетті қасиеттер береді (мысалы, тыңайтқыштардың басылып қалуын (нығыздалуын) азайту немесе бояғыштардың ерігіштігін жақсарту), сонымен қатар осы заттарды сақтау кезінде немесе кезекті өңдеу кезінде аппаратура мен құбыр желісінің коррозиясын азайтады.
Заттардан ылғалды механикалық тәсілмен (сығумен, тұндырумен, фильтрлеумен, центрифугтеумен) жоюға болады. Дегенмен де толық сусыздану ылғады буландыру мен пайда болатын буларды бұру жолдарымен жүзеге асады, яғни жылулық кептіру арқылы.
Бұл процесс химиялық технологияда кеңінен қолданылады. Ол өндірісте, жиі дайын өнімнің шығуының алдында жүретін, соңғы операция болып келеді. Осымен ылғалды бастапқы жою, негізінен арзан механикалық тәсілмен іске асырылады (мысалы, фильтрлеумен), ал ақырғы - кептірумен. Ылғалды осындай комбинирленген тәсілмен жою процесстің тиімділігін арттырады.
Химиялық өндірісте заттарды арнайы кептіргіш қондырғыларда жасанды жолмен кептіру қолданылады, себебі ашық ауада табиғи кептіру - өте ұзақ процесс.
Ылғалдылық өзінің физикалық мазмұнына сәйкес күрделі диффузиялық процесс болып табылады. Диффузиялық процесстің жылдамдығы ылғалдың диффузиясының, кептірілетін материалдың түбінен қоршаған ортаға қарай, жылдамдығымен анықталады. Төменде көрсетілетіндей, кептіру кезіндегі ылғалды жою жылу мен зат (ылғал) материалдың ішіне ауысуына және олардың материалдың бетінен қоршаған ортаға ауысуына алып келеді. Осылайша, кептіру процессі бір-бірімен байланысты жылу- және масса-ауысу (ылғалауысу) процесстерінің үйлесімі болып табылады.
1. Кептіру туралы жалпы анықтама
Кептіру дегеніміз қатты немесе пастатектес материалға жылу беру арқылы материалдың құрамындағы сұйықтықты буландырып жою. Бұл көп жылу жұмсауды қажет ететін термиялық процесс болып табылады.
Кептіру химиялық, химико-фармацевтикалық, тағамдық және т. б. өндіріс салаларында кеңінен қолданылады. Кептіру әсіресе қаланың ағын суларын өңдеу аумағында кең қолданысқа ие (барабанды кептіргіш, қарсы ағынды кептіру) . Кептіру механикалық жолмен жоюға келмитін сұйықтың бөлігін термиялық жою үшін, тасымалдауға және ары қарай өңдеуге қажет ПО өңдеу үшін (мысалы, гальваникалық шайырлар), сонымен қатар химиялық, тағамдық және т. б. өндіріс салаларының қалдықтарын өңдеу кезінде қолданылатын процесстер.
Кептіру әдісі кептірілетін өнімге қойылатын технологиялық талаптар мен технико-экономикалық көрсеткіштерді есепке алып таңдалынады.
Кептіру процессі жылу генераторында өндірілетін жылулық энергиясының есебінен іске асады. Жылу генераторы болып булы және газды калориферлер, қатты, сұйық немесе газтәріздес отындарда жұмыс істейтін оттықтар, инфрақызыл сәуле таратқыш және электр тоғының генераторлары.
Жылу генераторын таңдау әдетте кептірудің схемасы және әдісімен, кептірілетін материалдың физикалық қасиеттерімен және кептіруге қажет режимдермен анықталады. Мүмкіндігінше шыққан газдардың жылуын немесе өңделген буды қолданған жөн, сонымен қатар бірге жылулық қалдықтар пайдаланылады.
Кептіру - жылу- массаалмасу процессі. Беткі қабаттан ылғалды жою оны ішінен сыртқа қарай жылжытумен тығыз байланысты. Кептірудің буландырудан айырмашылығы, бірінші жағдайда ылғалды жою әртүрлі температурада өтеді, екінші жағдайда - егер пайда болған булардың қысымы қоршаған ортаның қысымына тең болса (мысалы, судың қайнауы) барометрлікке тең қысымда өтеді.
Газдықтағыдай, ауалық кептіруде де жылу жылутасымалдағыштан кептірілетін материалға тікелей беріледі. Қажетті сапалы материалды алу үшін кептірудің технологиялық режимі, жылутасымалдағыштың парамметрлерін және процесстің режимін дұрыс таңдау (материалдың ылғалдылығына қарай қыздырудың оптималды температурасын таңдау, т. б. ) ерекше ескерілу қажет. Материалдың технологиялық қасиеттеріне әсер ететін, кептірудің оптималды режимі материал мен ылғалдың арасындағы байланысқа байланысты. Материалдың ішіндегі және сыртындағы концентрацияның әртүрлілігіне қарай материал бетінен ылғалды жою, ылғалдың беткі қабатқа жылжуы арқылы, диффузия жолымен іске асады. Кейбір жағдайларда, материалдың ішіндегі ылғалдың жылжуы материалдың ішіндегі және сыртындағы температуралардың әртүрлілігінің азаюы арқылы жүретін, термодиффузия орын алады.
Кейбір материалдарды төмен шекті ылғалдылыққа дейін кептіру кезінде жылу тек қана материалды қыздыру және одан жылуды буландыру үшін ғана емес, материал мен ылғалдың арасындағы байланысты еңсеру үшін де шығындалынады. Көп жағдайларда кептіру кезінде су буы жойылады, бірақ кейде химиялық өндірісте органикалық еріткіштердің буларын жоюға тура келеді. Қандай сұйықтық булануына қарамастан, процесс заңдылығы өзгермейді.
2. Кептіргіш қондырғыларының классификациясы
Жылу беру әдісіне қарай
- Конвективті (кептірілетін материал алдын ала қыздырылған кептіргіш агент ағынымен жуылады) ;
- Контактты (материалдың кептіргіш қабатпен тікелей жанасуы) ;
- Сублимациялық (ылғалды қатқан күйінде вакуумада жою) ;
- Жоғарыжиілікті (ылғалды жоғары жиілікті электр өрісі қатысында жою) ;
- Радиациялық (инфрақызыл сәуле арқылы кептіру) .
Кептіргіш камераның жұмыс жасаушы кеңістігіндегі кептіргіш агенттің қысым дәрежесіне қарай
- Атмосфералық (кептіру атмосфералық немесе соған жақын қысым жағдайында іске асады) ;
- Вакуумдық (кептіргіш камерадағы қысым атмосфералықтан төмен) .
Жұмыс сипатына қарай
- Үздікті жұмыс жасайтын кептіргіш (кептірілетін өнімнің тиелуі және түсірілуі үздікті іске асырылады) ;
- Үздіксіз жұмыс жасайтын кептіргіш (кептірілетін өнімнің тиелуі және түсірілуі үздіксіз іске асырылады) .
Қолданылатын кептіргіш агентке байланысты
- Ауа кептіргіш;
- Жағылатын газбен жұмыс жасайтын кептіргіш;
- Аса қыздырылған бу немесе инертті газбен жұмыс жасайтын кептіргіштер (ауаның оттегімен қышқылданатын өнімдерді кептіру үшін қолданылады) .
Кептірілетін өнімдерге қатынасты кептіргіш агенттің қозғалу бағытына қарай
- Тураағынды кептіргіштер (кептірілетін өнімнің жылжу бағыты кептіргіш агенттің жылжу бағытымен бағыттас) ;
- Қарсыағынды кептіргіштер (кептірілетін өнімнің жылжу бағыты кептіргіш агенттің жылжу бағытына қарама-қарсы) ;
- Айқас ағынды кептіргіштер (кептірілетін өнімнің жылжу бағыты кептіргіш агенттің жылжу бағытына перпендикулярлы) ;
- Реверсивтік бағыттағы кептіргіштер (кептіргіш агенттің жылжу бағыты кептірілетін өнімнің жылжу бағытына қатынасты өзгереді) ;
Кептіргіш агенттің циркуляциялық принципіне қарай
- Табиғи циркуляциялы кептіргіш агентпен кептіру қондырғысы (кептіргіш камерадағы оның қозғалысы камераның әр бөлігіндегі газдардың тығыздықтарының әртүрлілігіне қарай іске асады) ;
- Жасанды циркуляциялы кептіргіш агентпен кептіру қондырғысы (кептіргіш камерадағы оның қозғалысы ортадан тепкіш немесе осьтік вентиляторлармен, немесе ағымды насос-эжекторлармен іске асады) .
Кептіргіш агенттердің қыздыру тәсіліне қарай
- Булы қыздырғышы бар кептіргіштер (кептіргіш агент буы 3-10 атм қысымдағы беткі қыздырғыштарда қызады) ;
- Кептіргіш агенті газды рекуперативті қыздырғышта қызатын кептіргіштер (кептіргіш камераның жұмыс жасау аймағына 200-350°С температурадағы таза ауа жіберілуі үшін қолданылады) ;
- Кептіргіш агент ретінде жағылатын газдардың қоспасы қолданылатын кептіргіштер;
- Кептіргіш агенті электрлік қыздырылған кептіргіштер (бұндай тәсіл қымбат болғандықтан, негізінен лабораториялық жағдайда ғана қолданылады) .
Кептіргіш агентті қыздыруына қарай
- Кептіргіш камерада қыздыру;
- Шығарушы қыздырғыштарда қыздыру (кептіргішке енгізілер алдында іске асады) ;
- Кептіру аймақтарының арасында аралық қыздыру (жоғары бастапқы температураны көтере алмайтын өнімдер үшін) .
Кептіргіш агентті кептіргіш қондырғыда қолдану ұзақтығына қарай
- Бір мәрте;
- Рециркуляциялы (кептіргіш агент кептіргіш камераға жартылай қайтып оралады) . Ылғал ауаның жарты бөлігі жойылады және жаңасы қосылады.
Ылғал ауаны құрғақпен ауыстыру дәрежесіне қарай
- Ауаауыстырғышы бар кептіргіштер (ылғал ауа толықтай немесе жартылай ауыстырылады) ;
- Ауаауыстырғышы жоқ кептіргіштер (кептіргіш агенттің циркуляциясы жабық) . Ауаның ылғалдылығы жоғарыламас үшін, жоғарысында сұйықтық тұнатын арнайы конденсаторлар қолданылады.
Конструктивті белгісіне қарай
- Камералы кептіргіштер;
![]()
Сурет - 1. Камералы кептіргіштің схемасы.
- Коридорлы (туннельді) кептіргіштер;
![]()
Сурет - 2. Коридорлы кептіргіштің схемасы.
- Шахматты кептіргіштер;
- Ленталы кептіргіштер;
![]()
Сурет - 3. Ленталы кептіргіштің схемасы.
- Конвейерлі кептіргіштер;
![]()
Сурет - 4. Конвейерлі кептіргіштің схемасы.
- Барабанды кептіргіштер;
![]()
Сурет - 5. Барабанды кептіргіштің схемас.
- Құбырлы кептіргіштер;
![]()
Сурет - 6. Құбырлы кептіргіштің схемасы.
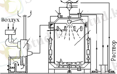
- Бүркегіш (себуші) кептіргіштер;
![]()
Сурет - 7. Бүркегіш кептіргіштің схемасы.
3. Негізгі аппараттың сипаттамасы
Псевдосұйылтылған (қайнап тұрған) қабаты бар кептіргіштер
Бұл кептіргіштер кептіру аппараттарының прогрессивті түрлерінің бірі болып саналады. Қайнап тұрған қабаттағы процесс материал бөлшектері мен кептіргіш агенттің бір-бірімен жанасу бетін арттырады, материалдан ылғалдың булануын интенсивтендіреді және де кептіру ұзақтығын қысқартады. Қазіргі таңда псевдосұйылтылған қабаты бар кептіргіштер тек қана өте себілгіш дақылды материалдарды (мысалы, минералды және органикалық тұздар) кептіру үшін ғана емес, сонымен қатар кокстеуге ұшыратылған материалдарды (мысалы, аммоний сульфаты, поливинилхлорид, полиэтилен, т. б. полимерлер) және т. б. материалдарды (мыс., пигменттерді, анилинді бояғыштарды, еріткіштерді, балқымаларды және суспензияларды) кептіру үшін де қолданылады.
Бұл кептіргіштер біркамералы және көпкамералы болып бөлінеді. Біркамералыға қарағанды көпкамералы кептіргіштер конструкциясы жағынан (сәйкесінше, эксплуатация жағынан да) күрделірек; олар кептіргіш агенттің және электр энергиясының көп меншікті шығынын қажет етеді. Сонымен қатар, олардағы процесстер автоматизацияға қиын беріледі. Көпкамералы кептіргіштерді тек ылғалдың ішкі диффузиясының кедергісі жоғары, ұзақ кептіру уақытын талап ететін материалдарға, сонымен қатар кептірудің температуралық режимін басқару қажет болған жағдайда ғана қолданған дұрыс. Оларда кептіру мен салқындату процесстерін қатар қолдану тиімді болып келеді.
4. Кептірілетін өнімнің сипаттамасы
Кокс. Кокс (нем. Koks) - көмірді немесе мұнайлы шикізаттарды кокстеу арқылы алынатын жасанды қатты отын. Кокстың әртүрлі түрлері бар:
- Тас көмірлі кокс - түсі сұры, тас көмірді кокстеу әдісімен алынатын, борпылдақ қатты өнім;
- Мұнай коксы - мұнай өнімдерінің немесе мұнайды екіншілік өңдеу кезіндегі қатты қалдықтары;
- Күлді кокс (электродты) - таскөмірлі күлдің бөлінуі кезінде алынатын, көміртегімен бай қатты қалдық;
- Торфты кокс - торфтың термиялық бөлінуі кезінде алынатын қатты өнім;
- Жартылай кокс - кокстеу температурасынан екі есе төмен температурада оттегі қатысынсз қыздырылып өңделген қатты отын ( тас, қоңыс көмір және антрацит, тақтатас, торф) .
Тас көмір тасын пайдалану 18 ғ-дан белгілі. Алғаш рет кокспен шойын балқыту 1735 жылы Ұлыбританияда іске асырылды, ал алғашқы жабық камералы кокс пештері 19 ғасырдың 30 жылдарында өндіріске енгізілді. Тас көмірді кокстеудің кең тараған әдісі - 3 мм-ге дейін ұсақталған тас көмір түйірлерін 900 - 1050°С-та ауасыз қыздыру арқылы алу. Ал мұнай қалдықтарынан коксты ауа қатыстырмай жабық ыдыста 4 - 5 атмосфералық қысымда және 450 - 500°С температурада қыздырып өңдеу арқылы алады. Өндірісте процесс екі тәсілмен жүргізіледі: қыздырылмайтын реакторларда баяу кокстеу және көлденең орнатылған қыздырылған кубты қондырғыларда кокстеу. Кокс алуға жарамды мұнайлы қалдықтарға: айдау қалдықтарынан шыққан мазут пен гудрон, термиялық крекинг қалдықтары, пиролиз шайыры, катализдік крекингтің ауыр газойльдері және мұнай-битумды жыныстар жатарды. Кокстың тығыздығы 1, 4 - 1, 5 г/см 3 , оның құрамындағы көміртегінің мөлшері 96%-ға жетеді. Кокске сондай-ақ, күкірт және металдар жинақталады. Құрамындағы күкірттің мөлшері бойынша кокс аз күкіртті (1, 5%-ға дейін), күкіртті (1, 5 - 4, 0%) және көп күкіртті (4%-дан жоғары) болып бөлінеді. Кокс металлургияда тотықсыздандырғыш және отын ретінде, электродтар, алюминий, фосфор, кремний, ферроқұймалар, т. б. материалдар өндірісінде, авиация және ракета техникасында, электр және радиотехникад, ядролық энергетикада кең қолданылады. Қазақстанда кокс Испат-Кармет бірлескен кәсіпорынында (бұрынғы Қарағанды металлургиялық комбинаты) өндіріледі.
... жалғасы- Іс жүргізу
- Автоматтандыру, Техника
- Алғашқы әскери дайындық
- Астрономия
- Ауыл шаруашылығы
- Банк ісі
- Бизнесті бағалау
- Биология
- Бухгалтерлік іс
- Валеология
- Ветеринария
- География
- Геология, Геофизика, Геодезия
- Дін
- Ет, сүт, шарап өнімдері
- Жалпы тарих
- Жер кадастрі, Жылжымайтын мүлік
- Журналистика
- Информатика
- Кеден ісі
- Маркетинг
- Математика, Геометрия
- Медицина
- Мемлекеттік басқару
- Менеджмент
- Мұнай, Газ
- Мұрағат ісі
- Мәдениеттану
- ОБЖ (Основы безопасности жизнедеятельности)
- Педагогика
- Полиграфия
- Психология
- Салық
- Саясаттану
- Сақтандыру
- Сертификаттау, стандарттау
- Социология, Демография
- Спорт
- Статистика
- Тілтану, Филология
- Тарихи тұлғалар
- Тау-кен ісі
- Транспорт
- Туризм
- Физика
- Философия
- Халықаралық қатынастар
- Химия
- Экология, Қоршаған ортаны қорғау
- Экономика
- Экономикалық география
- Электротехника
- Қазақстан тарихы
- Қаржы
- Құрылыс
- Құқық, Криминалистика
- Әдебиет
- Өнер, музыка
- Өнеркәсіп, Өндіріс
Қазақ тілінде жазылған рефераттар, курстық жұмыстар, дипломдық жұмыстар бойынша біздің қор #1 болып табылады.

Ақпарат
Қосымша
Email: info@stud.kz