Астықты қабылдау технологиясы


ҚАЗАҚ ҰЛТТЫҚ АГРАРЛЫҚ УНИВЕРСИТЕТІ
Мал шаруашылығы технологиясы және тағам қауіпсіздігі факультеті
Азық-түлік өнімдері технологиясы және тағам қауіпсіздігі кафедрасы
Астықты қабылдау технологиясы
тақырыбында жазылған
Реферат
Орындаған:
Қабылдаған:
АЛМАТЫ 2015
Жоспар
Кіріспе 3
Негізгі бөлім 4
1. Астықты қабылдау технологиясы 4
2. Элеватордың астықты қабылдау қондырғылары 7
3. Темір жол көлігінің қабылдау қондырғылары 10
Қорытынды 14
Пайдаланылған әдебиеттер тізімі 15
Кіріспе
Егіс даласында өсіп піскен дақылдардың дәндері тірі организм демалады. Осы үрдістің арқасында физика-химиялық, биохимиялық реакциялардың жүруі оның құрылымы мен құрамындағы заттардың толық қалыптасуын аяқтайды.
Табиғи-климаттық, агротехникалық т. б. факторлардың әсерінен дәндердің біркелкі бір уақытта пісіп жетілуі болмайды. Сондықтан әрбір егіс даласында, әр дақыл үшін, әр бір сабақтардағы дәндері де, тұқымдары да технологяилық көрсеткіштерінде ерекшеліктері болады, яғни олардың шама жағынан ауытқуы айнымалы заңдылық түрінде сипатталады. Сонымен дақыл дәндерінің өзгешіліктері, олардың зақымдалынуы, ауырып қалуы, белгілі бір шараларды дер кезінде қабылдауды талап етеді. Қолданылатын шаралардың жалпы жиынтығын орудан кейінгі өңдеу технологиясы деп атаймыз.
Дән, бұршақ, майлы дақылдардын және басқа өсімдік өнімдерін орудан кейін қолданылатын технологиялардың қатарына мыналар жатады: астықты траснпорт жүйелерінен қабылдау, белгілі мақсатта пайдалынатын партияларды қалыптастыру, қоймаларға жайғастыру жоспарын құру, қоспалардан тазарту, кептіру, салқындату, зиянкестерден қорғау, емдік сауықтыру шараларын ұйымдастыру және сақтауға, тиеуге дайындау. Осы аталған технологиялардың бастысы ретінде астық кәсіпорындары мен элеваторларда қабылдау жұмысын реттеп жүргізуге өте көп көңіл бөлінеді[1] .
Астықты қабылдау технологиясы
Қабылдау технологиясы мына үрдістердің жиынтығынан құралады:
- астықтың сандық және сапалық көрсеткішін оруы алдында алдын ала анықтау;
- егіс даласынан комбайндермен майдаланған астықты жеткізу схемаларын бекіту;
- автомобилдермен тасмалданатын астықты жеткізу үшін сағаттық және тәуліктік сызықтама кестесін жасау;
- астықты дер кезінде қабылдап және өңдеу жұмыстарын жоғары дәрежеде ұйымдастырып жүргізу үшін технологиялық картаны құрастыру;
- қабылдау лабораториясының, таразылардың, аудару қондырғыларының қабылдау мүмкіншіліктерін анықтап оған сәйкес келетін өнімділікпен технологиялық жабдықтау;
- қабылдау схемасы әр партияның дақыл дәндерінің сандық және сапалық өзгешіліктеріне байланысты аралыстырмай жекелеп жүргізу үрдісін қамтамасыз етуді талап ретінде орындау;
- әр түрлі мақсатта пайдаланылатын партияларды құрастырылуын міндетті және осыған байланысты жинақтау қораптарын қолдануы қажет[7] .
Осы аталған технологиялық үрдістер бекітілген ұйымдастыру ережелерімен жүргізіледі. Сондықтан астық кәсіпорындарына қабылданатын әр партиядан үлгі алып, қабылдау лабораториясында стандарттық әдістемеге сәйкес үлгілерді алып тәуліктік орта үлгісін жасап, негізгі дәндердің талдау көрсеткіштерін анықтайды. Олардың қатарына біріншіден ылғалдылық, қоспа мөлшері және құрамындағы түрлері, 1 литрлік салмағы граммен (натура), бидай үшін шынылығы, сағыздығы, басқа дән, бұршақ, май дақылдары өздеріне тиісті көрсеткіштері үлкен дәлдікпен бағаланады. Астықтың өңдеудің жайғастырудың және сақтаудың талаптарын орындау үшін оның күй жағдайын және сапалығын сипаттайтын көрсеткіштердің атқаратын рөлі өте үлкен.
Бұл алға қойылған мақсаттарды орындау үшін астықтардың дақылдар түрлеріне байланысты жасалынған дайындау товарлы классификациясын дән, бұршақ және май дақылдарын өзінің технологиялық құндылығына сәйкес топтап белгілі мақсаттарға байланысты ұндық, макарондық, жармалық, крахмалдық, спирттік, майлық, сыралық партияларын құрастырады.
Астық кәсіпорындарында қабылдау кезінде қолданылатын мақсатты партияларды қалыптастыру, тамақтық бұйымдардың ассортиментін кеңейтіп, өңдеу өндірістерінің тиімді жұмыс істеуін жоғарлатады. Өңдеуге дейін, шахтылы кептіргіштерді тиімді дұрыс қолдану үшін, астық дақылдарын (күріш пен жүгері сабағынан басқасы) ылғалдылығы мен қоспасының мөлшеріне байланысты топтарға бөледі:
А) ылғалдылығы бойынша:
-құрғақ және орта құрғақты бірге;
-ылғалды (2 метрге дейінгі үйменің биіктігі) ;
-өте ылғал (ылғалдылық шамасы 22% дейін, жайғандағы үйме биіктігі 1, 5 м дейін) ;
-өте ылғал (ылғалдылық шамасы 22%-тен жоғары, 6%интервалмен үйме биіктігін 1м биіктікке дейін, ал жүгері дән үшін 5%-интервалмен жайғастырады) .
Б) қоспалары бойынша:
-таза және орташа таза;
-қоспалары шектеулі кондицияға дейін;
-қоспалары шектеулі қоспалардан жоғары.
Әр түрлі дақылдарға байланысты астықтың ылғалдылығы мен ластану қоспаларының интервалдық шектелу деңгейлері 1-кестеде берілген.
Технологиялық тізбекте рециркуляциялы кептіргіш қолданған кезде астық партиясын ылғалдығы мен қоспасына байланысты құрастырып топтауды қажет етпейді. Жаңа орылған астықты әр уақытта шаңнан және құрамындағы қоспаларынан тазартып тұру негізгі талап ретінде қойылады. Өте ылғал астықты кептіруге дейін желдету қондырғыларына орнатылған астық қоймаларына немесе алаңға жайғастырылуы дұрыс болып саналады[4] .
Дәндік, бұршақты және майлылық дақылдардың ылғалдылығы мен ластығының арамдық және дәндік шөп қоспаларына байланысты жағдайы.
1-кесте
Астық дақылдарын ылғалдылығы бойынша жайғастыру
Ылғал және өте ылғал астықты силостарға салуға болады, егерде оның температурасын үздіксіз қадағалауға термодатчиктерді пайдалануы тиіс және сақтау уақыты ылғал үшін бес тәулік, ал өте ылғал астық үшін үш тәулік, әсіресе күріштің ылғалдылығы 19% дейін бір тәулікке дейін сақтауға болады. Сақтайтын астықтың көлемі кептіргіштің осы уақыт ішінде жұмыс істеу өнімділігімен анықталады. Ылғал астықтарды тек сыртқы силостарға ғана жайғастырған дұрыс. Ішкі силостарға құрғатылған астықтар сақталынады.
Элеваторда силостарды реттеп пайдалану жоспары құрылады. Астықтың майда партияларын бекітілген ережелер бойынша әр дақылдың түрін, сортын, типін, сапалық көрсеткіштерін, зақымдалғанын, фузариоздың дәндердің мөлшерін, т. б. қажетті талаптарды ескеріп үлкен партияларды белгілі мақсаттарға пайдалануына байланысты топтайды[2] .
Элеватордың астықты қабылдау қондырғылары
Автомобиль көлігінен астықты қабылдау
Автомобиль көлігінен астықты қабылдау-дайындау элеваторының негізгі жұмыстарының қатарына жатады. Қазақстанда дайындау элеваторларындағы 95% астам астықты қабылдау мен тиеу жұмыстары жүк және темір жол көліктерінің үлесіне тиеді.
Ақтау қаласының порттық элеваторы су көлігіндегі қабылдау және тиеу жұмыстарын біртіндеп . үлкейтіп келеді. Республиканың астық қоймаларында көліктен астықты түсіру барлық өлкелердің астық кәсіпорындарында кеңінен қолданылады. Олардың қазіргі кезде қолданылып жүрген типтері өте көп. Қабылдау қондырғыларының оперативті жұмысына мына факторлар әсер береді:
- астықтың екпінді келіп түсуі және көлік типтерінің көп болуы;
- әр түрлі қабылданатын партиялардың саны;
- астық дәндерінің сапалық көрсеткіштері;
- көлік аударғыштарының типтері;
- орналастырылған жабдықтардың техникалық пайдалану дәрежесі.
Осы келтірілген факторлардың тигізетін әсерлерін ескеріп қабылдау қондырғысына қойылатын көлік аударғыштар әмбебап негізінде жұмыс атқаруы тиіс.
Жүк көлігінен астықты қабылдау қондырғыларының мына түрлері бар:
-норияның түбіне орналасқан қораптарға астықты түсіру;
-силос корпусының шеткі транспортерлеріне жақындатып орналасқан қораптарға астықты түсіру;
-жұмысшы ғимаратынан қашық орналасқан көліктен жер астында көлденең орналасқан транспортерлер арқылы түсіру қондырғысы;
- жұмысшы ғимаратынан қашық орналасқан көліктен жер астында көлбеу орналасқан транспортерлер арқылы түсіру қондырғысы;
- қабылдау қондырғысының қораптары жер астына 0, 5-0, 7 м тереңдікте орналасқан, мамандандырылған нориялар арқылы ауа галереясындағы транспортерлермен тасымалданады[1] .
Әр түрлі көлік аударғыштары бар қондырғылар (1 және 2-суреттерде көрсетілген) .
1-сурет . Қабылдау қондырғысы автомобиль аударғыштармен. 1 - НПБ-2с; 2 - ГУАР-30.
2-сурет . Қабылдау қондырғысы автомобиль аударғыштармен.
1-УТБ-УРВС; 2-АВС-50[3] .
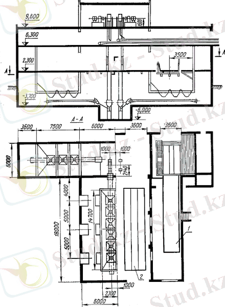
Темір жол көлігінің қабылдау қондырғылары
Темір жол көлігінен астықты қабылдау қондырғысын элеватордан белгілі бір қашықтықта орналасқан жеке құрылыс обьектісі ретінде салады.
Вагондардан астықты түсіргенде тұрақты немесе жылжымалы ТЛМ типті механикаландырылған күректерді қолдану арқылы және ВРГ, ВГК, ЦНИИ МПС, «Нагема» пневматикалық сору арқылы түсіретін, «Вихрь» сияқты жүйелі вагон аударғыштарды пайдаланады.
Пневматикалық қондырғылар электроэнергиясын көп шығындайды, бірақ еңбекті жеңілдетіп санитарлық жұмыс атқаруға қолайлы жұмыс жасайды.
Ең көп тараған вагоннан астықты түсіруде қолданылатын тұрақты жұмыс істейтін механикаландырылған күрек, оның өнімділігі 60 . . . 110 т/сағ. дейін болады. Қабылдау қондырғысын салуға көп қаржы жұмсалады, себебі қабылдау қораптарының салу тереңдігі 6, 0 м дейін барады. Мұндай тереңдік көп жерлерде жер асты суларының жиналуын тудырады, гидролизациялық қабатты жасау үшін көп шығынға әкеліп соғады.
Қабылдау қораптарын кіші тереңдікке 3, 0 м дейін салуды қолданады. Бұл жағдайда вагоннан астық қабылдау қораптарына түскен сәттен, транспортерлер де жұмысын бастауы тиіс. Қабылдау қондырғысы мен жұмысшы ғимаратының арақашықтығы жақындау болады. Мұндай қабылдау қондырғысына кететін шығын қораптары үлкен тереңдікте орналасқан қондырғыларға қарағанда неғұрлым аз болады.
Вагондардан астықты қабылдау қондырғылары мына түрге бөлінеді:
-вагондардағы астықты нория табандарына және силос корпусының шет жақтарында жанамалап силостардың астындағы транспортерлердің бойымен орналасқан қораптарға түсіру;
- жұмысшы ғимаратына белгілі бір қашықтықта және қораптары жер бетіне 4, 0-4, 5 м дейін терең орналасқан қабылдау транспортерлері жол бойымен тасымалдап, көлденең траспортерлер арқылы жеткізу;
- жұмысшы ғимаратында тікелей және қабылдау қораптары жер бетіне 5, 5-6, 0 м дейін терең орналасқан қабылдау транспортерлері арқылы астықты нория табанына құяды. Мұндай қондырғы көлденең типті қондырғы деп аталады[5] .
- қабылдау қораптары жер бетіне 3, 0 м-ге дейін терең орналасқан және қораптарының деңгейі рельстің деңгейіне дейін көтеріліп тұратын қабылдау қондырғыларында астық мамандандырылған нориялар арқылы ауа галерея сындағы транспортерге келіп түсіп, жұмысшы ғимаратына тасымалданады.
- қабылдау қондырғыларында үлкен өнімділігі бар ВРТ, ВГК қондырғыларын және инерциялық вагон аударғыштарды пайдалану. Бұл аударғыштардың өнімділігі 240-300 т/сағ шамасы аралығында болады.
Негізгі вагоннан астықты түсіру қондырғылары 3-суретте көрсетілген.
Кейінгі кездерде астықты түсіру вагоннан қабылдау мен түсіру бір қондырғыда орындалып келеді.
3-сурет . Теміржол көлігіне келіп түскен астық қабылдау қондырғылары.
Мұндағы: а-көлденең типі; б-көлбеу типі; в-қабылдау және тиеу қондырғысы; г-вагондарды инерциялық әдіспен түсіру қондырғысы;
Су көлігінен астықты қабылдау қондырғыларының түрлері 49-суретте көрсетілген. Су кемелерінен белгілі жергілікті жағдайдың өзіндік ерекшелігіне байланысты өздеріне тән нұсқасы бар қабылдау қондырғыларын салады. Мұндай жағдайларға жататындар:
- су кемелерінің суда алатын орны және конструкциялық өзгешеліктері;
- су деңгейінің кеме тұратын жағасында тұрақты биіктікте болмауы;
- элеватордың орналасуы су кемелерінің жағада жайғасуымен салыстыр-малы жағдайда болуы;
4-сурет . Су транспортын қабылдау қондырғылары.
Мұндағы: а-жағадағы тұрақты конвейерге жүзетін нория аударғышы арқылы; б-элеватор нориясына жүзетін пневматикалық аударғыш арқылы; в-жағаға орналасқан қораптарға жүзетін пневматикалық аударғыш арқылы; г-элеватор силостарына жағада орналасқан мұнара арқылы; д-жағадағы қозғалатын аударғыш пен конвейер арқылы; е-элеватор жұмысшы ғимаратының ішінде орналасқан астықтықабылдау үшін тұрақты пневматикалық қондырғы арқылы; ж-жұмысшы ғимаратына орналасқан тұрақты пневматикалық қондырғы, жағада немесе фарватерге қойылған бойынша (пунктирмен көрсетілген) ; з-жүзетін пневматикалық аударғыш арқылы өзен баржасынан теңіз кемесіне астықты аудару.
... жалғасы- Іс жүргізу
- Автоматтандыру, Техника
- Алғашқы әскери дайындық
- Астрономия
- Ауыл шаруашылығы
- Банк ісі
- Бизнесті бағалау
- Биология
- Бухгалтерлік іс
- Валеология
- Ветеринария
- География
- Геология, Геофизика, Геодезия
- Дін
- Ет, сүт, шарап өнімдері
- Жалпы тарих
- Жер кадастрі, Жылжымайтын мүлік
- Журналистика
- Информатика
- Кеден ісі
- Маркетинг
- Математика, Геометрия
- Медицина
- Мемлекеттік басқару
- Менеджмент
- Мұнай, Газ
- Мұрағат ісі
- Мәдениеттану
- ОБЖ (Основы безопасности жизнедеятельности)
- Педагогика
- Полиграфия
- Психология
- Салық
- Саясаттану
- Сақтандыру
- Сертификаттау, стандарттау
- Социология, Демография
- Спорт
- Статистика
- Тілтану, Филология
- Тарихи тұлғалар
- Тау-кен ісі
- Транспорт
- Туризм
- Физика
- Философия
- Халықаралық қатынастар
- Химия
- Экология, Қоршаған ортаны қорғау
- Экономика
- Экономикалық география
- Электротехника
- Қазақстан тарихы
- Қаржы
- Құрылыс
- Құқық, Криминалистика
- Әдебиет
- Өнер, музыка
- Өнеркәсіп, Өндіріс
Қазақ тілінде жазылған рефераттар, курстық жұмыстар, дипломдық жұмыстар бойынша біздің қор #1 болып табылады.

Ақпарат
Қосымша
Email: info@stud.kz