Сәулет - құрылыс факультеті


Л. Н. Гумилев атындағы Еуразия Ұлттық Университеті
Сәулет-құрылыс факультеті
Өнеркәсіптік және азаматтық құрылыс технологиясы кафедрасы
Диплом алды тәжірибе нәтижесі бойынша есеп беру
Орындаған: ТПГС-43 тобының
студенті Тайжанова Б.
Практика жетекшісі: Базарбаев Д. О.
АСТАНА 2015
Жоспар
Кіріспе . . . 3
- Мекеме жайлы қысқаша мәлімет . . . 4
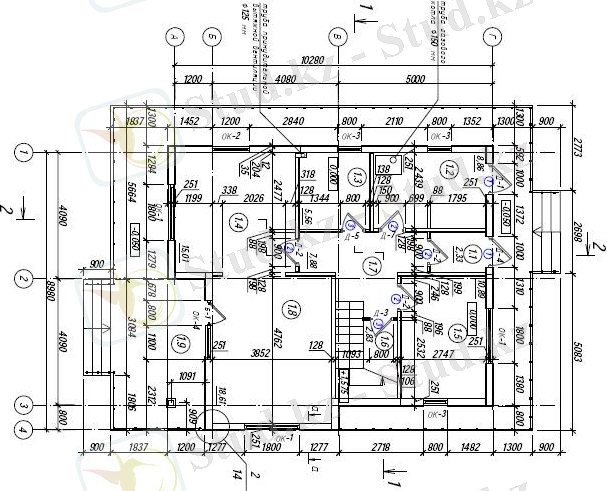
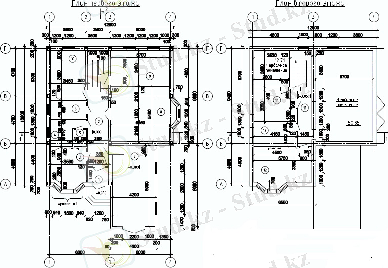
- Тәжірибе кезінде жиналған сызбалар мен материалдар . . . 5
- Жұмыс өндірісін ұйымдастыруды және жүргізуді жобалау . . . 7
- Жұмыс барысы . . . 8
ҚОРЫТЫНДЫ
Қосымшалар
Кіріспе
Диплом алды тәжірибе студенттің теориялық білім алу барысындағы біліктілігін тәжірибе жүзінде бекітуде маңызды рөл атқарады. Тәжірибе өту мерзімі 19 қаңтардан 28 ақпан аралығындағы бес аптаны құрайды. Тәжірибе өту орны үш жақты келісімге сәйкес Астана қаласы ЖШС «BI-Village Deluxe» (BI Group) мекемесінде өтті. Қазіргі мемлекеттің және мекеменің экономикалық жағдайына байланысты менің құрылыс болып жатқан алаңға аса көп шығуға мүмкіншілігім болған жоқ. Бірақ маған негізгі істеліну керек шаралар жөнінде айтылды. Соның ішінде мен құрылыстағы басты қағаздармен таныстым. Яғни құрылысқа кететін шығын, оның үнемді болуы, жұмыстың өзіндік құны, жұмыс өндірісінің жобасына керекті материалдар, жұмыстың еңбек сыйымдылығы т. б.
Компанияда, сонымен қатар, барлық бөлімшелеріндегі жұмыс өндірісін ұйымдастырумен айналысады. Мен осы құрылыс бөлімінің құжаттарымен таныстым. Құжаттар озат тәжірибе мен құрылыс және техниканың жаңа жетістіктеріне негізделуі, оларда еңбек өнімділігімен механикаландыру деңгейін арттыру және еңбекті көп қажет ететін жұмыстар мен құрылыс құнын азайту жоспарларын орындаудың жолдарын қарастыруы керек екендігін білдім. Жаңа объектілер тұрғызу, жұмыс істеп тұрған объектілерді кеңейту және жаңғырту құрылыстарын ұйымдастыру жобалары құрылысты салудың мерзімдерін анықтауға, күрделі қаржыны және құрылыс жинақтау жұмыстарының көлемін жылдарға кезеңдерге бөлуге, құрылыстарды материалдық техникалық жағынан қамтамассыз ету мәселелерін шешуге қызмет етеді.
Құрлысты ұйымдастыру жұмысына: құрылыстың даярлық және негізгі кезеңдеріне арналған құрылыстың бас жоспары, құрылыстың мерзімдік жоспары және даярлық кезеңінің бөлек жоспары кіреді. Құрылыстың мерзімдік жоспары негізінде құрылыстағы құрылыс- жинақтау жұмыстары өндірісінің графигі, жұмыстарды орындаудың реттілігі көрсетілген объектілерді салудың, ұйымдық-технологиялық нобайы, негізгі объектілер мен кешендерде және құрылыс кезеңдеріндегі жұмыстар көрсетілген құрылыс-жинақтау жұмыстар көлемінің ведомості, жалпы құрылыс бойынша негізгі құрылыс машиналары мен көлік қажеттілігінің графигі, құрылыс жағдайының қысқы сипаттамасы бар түсініктеме және негізгі жұмыстар өндірісі әдістерінің сипаттамасы, қажетті есептер, негіздеме және техникалық көрсеткіштер кіреді.
Диплом алды тәжірибе барысында кафедраның бекіткен арнайы тапсырмалары жүзеге асырылды. Алға қойылған келесі мақсаттар мен міндеттер іс жүзесіне асырылды:
-Дипломдық жоба үшін алғашқы мәліметтерді жинау ;
- Жобаланатын ғимараттар мен үймереттер үшін көлемдік жобалау шешімін анықтау;
- Дипломдық жобадағы технологиялық және ұйымдастыру бөлімдері үшін машиналар мен механизмдерді таңдау;
- Таңдалған машиналар мен механизмдердің тиімділігін анықтау;
- Мекеме жайлы қысқаша мәлімет
Біздің бизнесіміз құзыреттілікке, адалдыққа және клиенттер мен серіктестердің алдындағы жауапкершілікке - шүбә келтірілмейтін сөзсіз қасиеттерге негізделген. ТОО «Жас -2006» қызметкерлері - жобалауда, құрылыста және бизнесті жүргізу әдістерінде ең жоғары сапаға ұмтылатын интернационалды команда. Біздің ұстанымымыз қарапайым әрі айқын - барынша жоғары сыныпты ғимараттар тұрғызу. Біз баршасында кемелдікке жетуге ұмтыламыз! Компания тұрғын және әкімшілік ғимараттардың, ірі сауда орталықтарының сапасының арқасында атаққа ие болды. Біз табысқа жетуде межелер қоймаймыз және әрдайым жобалау мен дизайн саласындағы жаңа ұсыныстарға дайынбыз. Біздің тәжірибеміз ұзақ жылдар бойы тірнектеп жиналды.
Біздің табыстарымыз - құрылыстың ең жоғары сапасына және әрбір клиент үшін сервистік қызметтердің максималды пайдалы пакетіне қол жеткізуге біртұтас ұмтылыста жылдар бойы қалыптасқан және жұмылған 10 адамдық кәсіпқойлар командасының еңбегі. Табандылық және тұрақтылық ТОО «Жас -2006» компаниясына құрылыс индустриясының шеберінің, кез келген күрделілікті жобаны тұрғызылатын нысандардың сапасын нұсқан келтірмей, барынша қысқа мерзімдерде орындауға қабілетті шебердің айрықша атағына ие болуға мүмкіндік берді. "Негiз" қызметкерлер - жобалау, құрылыста және кәсiпкерлiктiң жүргiзуi әдiстерi биiк сапаға өзiне ұмтылатын интернационалдық команда. Бiздiң позиция оңай және айқын - ең жоғары сыныптың ғимаратын салу.
Бiз жетiстiктiң табысында шекараларға шарт қоймаймыз және жобалаудың төңiрегiдегi және дизайнның жаңа ұсыныстарына әрдайым дайын. Бiздiң тәжiрибе ұзақ жылдар бойы мұқият тiрнектеп жинаған. Бiздiң жетiстiктерлер - әрбiр клиент үшiн құрылыстың ең жоғары сапасы және сервис қызметтерiнiң барынша тиiмдi пакетiнiң табысына бiртұтас талпынысында қалыптасып жылдар бойы ұжымдасқан мамандардың 13 мыңыншы командасының зор еңбегi. "негiз" ның компаниясының табандылық және тұрақтылығы құрылыс индустриясының ұстасының ерекше абыройларын тауып алуға мүмкiндiк бердi. Кез келген күрделiлiктiң жобасы қысқа мерзiмде тұрғызылған объекттердiң сапасын тәуекелге ұшырамай орындауға қабiлеттi ұсталар.
- Тәжірибе кезінде жиналған сызбалар мен материалдар
3. Жұмыс өндірісін ұйымдастыруды және жүргізуді жобалау
Құрылысты ұйымдастыру жобасы осы жобаны бекітетін және толық жүзеге асыратын ұйыммен немесе бас жобалаушымен шартқа отырған мамандандырылған ұйыммен бірлесе отырып екі сатылы етіп жасалады.
Құрылысты ұйымдастыру жобасы тапсырма берушіні, мердігерлермен не қаржыланыруды, материалдық-техникалық жағынан қамтамасыз ететін ұйымдар үшін міндетті құжат болып табылады.
ҚҰЖ-ның алғашқы негізгі материалдарына мыналар жатады: техникалық-экономикалық негіздеулер (ТЭН) немесе техникалық-экономикалық есептеулер (ТЭЕ) ; инженерлік ізденістер: мердігерлермен келісілген материалдарды, құралымдарды және механикаландыру құралдарын пайдалану жөніндегі шешімдер; материалдар және жабдықтармен қамтамасыз ету шарттары және оларды тасымалдау; объектілер құрылысының іске қосылатын жиынтықтарын белгілеу; құрылысты электр қуатымен және сумен қамтамасыз ететін көздер туралы деректер және тапсырма беруші мен мердігерлердің басқа да талаптары (өндірістік үймереттер немесе ғимараттар) ; құрылыстың нұсқаулы мерзімдері.
Жұмыс көлемдері мен материалдық және энергетика ресурстарына деген қажеттілік, үймереттер мен ғимараттардың ұқсас жобаларының мәліметтері қазір пайдаланылып жүрген анықтамалардағы ресурстардың ірілендірілген сметалық құны мен қаржыларды пайдалану көрсеткіштері, үймереттер мен ғимарттар ұлғайтылған сметалық мөлшерлері, ресурстар және басқа да материалдардың сметалық құны мен шығындарының көрсеткіштерін назарға ала отырып оңайлатылған әдістермен есептеп шығарылады.
ҚҰЖ-на: құрылыстың даярлық және негізгі кезеңдеріне арналған құрылыстың бас жоспары, құрылыстың мерзімдік жоспары және даярлық кезеңінің бөлек жоспары кіреді. Құрылыстың мерзімдік жоспары негізінде құрылыстағы құрылыс- жинақтау жұмыстары өндірісінің графигі, жұмыстарды орындаудың реттілігі көрсетілген объектілерді салудың, ұйымдық-технологиялық нобайы, негізгі объектілер мен кешендерде және құрылыс кезеңдеріндегі жұмыстар көрсетілген құрылыс-жинақтау жұмыстар көлемінің ведомості, жалпы құрылыс бойынша негізгі құрылыс машиналары мен көлік қажеттілігінің графигі, құрылыс жағдайының қысқы сипаттамасы бар түсініктеме және негізгі жұмыстар өндірісі әдістерінің сипаттамасы, қажетті есептер, негіздеме және техникалық көрсеткіштер кіреді.
4. Жұмыс барысы
Бірінші күндері техника қауіпсіздік ережелерімен және жұмыс орынымен, салынып жатқан нысандардың сызбаларымен танысып, құрылыста қолданылатын құрылыс машиналары мен құрал - жабдықтарымен танысу болды. Жұмыс міндеттеріме практика жүргізушінің берген тапсырмаларын орындау болды.
Бізге диплом алды практиканы өтуге берілген уақыт - 5 апта. Сол уақыт ішінде мекемеде атқарған қызметтерім туралы қысқаша тоқталсам. Жіберілген мекемеге практика басталған күні 19-шы қаңтар. Ол күні жалпы қауіпсіздік ережелерімен танысып, жұмысқа кірістік.
19. 01. 15 -құрылыс мекемесінің жоба жұмыстары мен нысандарын зерттеу бөлімінде болып, ол жақта құрылыс ережелері мен нормалары деп аталатын құрылыс құжаттарымен таныстым.
20. 01. 15 - құрылыс нысанындағы жобаларымен таныстым.
21. 01. 15 - Зертханада сынақ өткізетін құралдармен танысып, құрылыстың аумағында жұмыс істеу принциптерімен таныстым.
22. 01. 15 - Жылжымайтын мүлік орталығына (БТИ) құжаттарды тапсыруға (орындалған жұмыстардың актілері, орындалған жұмыстардың анықтамасы және ведомость списания материалов) регистр құрастырдым.
23. 01. 15 - құрылыс салу үшін берілген рұқсат қағаздарының жинақ папкасы және құрылыс салудың кезекші жоспарының жинақ папкасымен таныстым.
... жалғасы- Іс жүргізу
- Автоматтандыру, Техника
- Алғашқы әскери дайындық
- Астрономия
- Ауыл шаруашылығы
- Банк ісі
- Бизнесті бағалау
- Биология
- Бухгалтерлік іс
- Валеология
- Ветеринария
- География
- Геология, Геофизика, Геодезия
- Дін
- Ет, сүт, шарап өнімдері
- Жалпы тарих
- Жер кадастрі, Жылжымайтын мүлік
- Журналистика
- Информатика
- Кеден ісі
- Маркетинг
- Математика, Геометрия
- Медицина
- Мемлекеттік басқару
- Менеджмент
- Мұнай, Газ
- Мұрағат ісі
- Мәдениеттану
- ОБЖ (Основы безопасности жизнедеятельности)
- Педагогика
- Полиграфия
- Психология
- Салық
- Саясаттану
- Сақтандыру
- Сертификаттау, стандарттау
- Социология, Демография
- Спорт
- Статистика
- Тілтану, Филология
- Тарихи тұлғалар
- Тау-кен ісі
- Транспорт
- Туризм
- Физика
- Философия
- Халықаралық қатынастар
- Химия
- Экология, Қоршаған ортаны қорғау
- Экономика
- Экономикалық география
- Электротехника
- Қазақстан тарихы
- Қаржы
- Құрылыс
- Құқық, Криминалистика
- Әдебиет
- Өнер, музыка
- Өнеркәсіп, Өндіріс
Қазақ тілінде жазылған рефераттар, курстық жұмыстар, дипломдық жұмыстар бойынша біздің қор #1 болып табылады.

Ақпарат
Қосымша
Email: info@stud.kz