Түтін мұржасының суреті


Мазмұны
1. 2
1. 3
1. 4
1. 5
1. 6
1. 7
2
2. 1
2. 2
2. 3
2. 4
3
3. 1
3. 2
3. 3
3. 4
3. 5
3. 6
Батыс жылу кешеннің пайдаланылатын газды-мазут қазандықтарының үлесі . . .
Отын шаруашылығы . . .
КВГМ-100-150 су қазанының құрылысы мен көрсеткіштері
КВГМ-100-150 су қазанының қосымша қондырғылары . . .
Түтін мұржасы . . .
Арнайы сұрақ . . .
Өмір тіршілік қауіпсіздігі
Қоршаған ортаға шығарылатын зиянды заттар . . .
Концентрациялардың өзгерісін есептеу және өзгеріс графигі . . .
Санитарлық-қорғаныс аумағы . . .
Экономикалық бөлім
Қазандықтан жылу энергиясын өндірудің өзіндік құнын есептеу . . .
Өндірістік шығындар . . .
Таза келтірілген құнды NPV анықтау . . .
Пайданың ішкі нормаларын IRR есептеу . . .
Инвестицияның өтелу мерзімін РР есептеу . . .
Қорытынды . . .
Пайдаланылған әдебиеттер тізімі . . .
Қосымшалар . . .
3
4
7
9
14
21
34
43
45
47
49
52
52
53
54
54
55
Кіріспе
Қазіргі әлем біздің көз алдымызда өзгеріп келеді, ғылыми және технологиялық дамуға, қоғам үшін пайда болған артықшылықтарды жақсартуға, көптеген елдердің экономикаларының қарқынды дамуына мүмкіндік береді. Қазақстанда өмір сүру жағдайларын жақсарту, халықты белсенді урбанизациялау, шағын және орта бизнесті дамыту үдерісі қазіргі заман өркениетінің игілігіне қажеттіліктің пайда болуына алып келеді.
Ең маңызды қажеттіліктердің бірі тұрғын үй-коммуналдық шаруашылықты, соның ішінде электр және жылу энергиясымен үзіліссіз қол жеткізуді қамтамасыз ету болып табылады. Заманауи мегаполис тұрғындары күнделікті тұтыну өнімдері мен өнімдерін шығаратын кәсіпорындар туралы айтпастан, күнделікті электр қуатынан немесе жылудан айырылса, не болатынын елестету қиын.
Энергетика саласындағы жас маман ретінде маған: «Жылу өндіретін кәсіпорындар экономикалық даму қарқынын сақтау үшін жеткілікті түрде дамыды ма?» Деген сұраққа қызығушылық танытты. Атап айтқанда, зерттеу тақырыбым Алматы қаласының батыс бөлігін жылытуды қамтамасыз ететін «Батыс жылу кешені» болды.
Менің дипломдық жұмысымда осы кәсіпорынның қызмет көрсету аумағын кеңейту мүмкіндігін зерттедім, өйткені біздің қаламыз, әсіресе оның батыс бөлігіндегі, тұрғын үй ғимараттарымен, сондай-ақ жаңа шағын және орта бизнеспен белсенді түрде құрылуда.
1 Жылулық бөлім
1. 1 Батыс жылу кешеннің қазіргі құаттылығы және қазандықтың түрлері
1963 жылы 26 қарашада Батыс жылу кешенінің іргетасы қаланды. Содан кейін екі су жылыту қазандықтары іске қосылды, 1965-1967 жылдар аралығында бес бу қазандығы және тағы бір су жылыту қазандығы қолданысқа берілді. Батыс жылу кешені AХБK тарапынан бақыланды және қаланың батыс бөлігіне жылумен қамтамасыз етумен айналысты.
1972 жылы кешен БЖК деп аталды. Қаланың тұрақты өсіп келе жатқандықтан, энергияға деген қажеттілік де өсті. 1973 жылдан бастап 1978 жылға дейін 5 су қазандары орнатылды. 1978-80 жж. ЖЭО-2-ЗРК Дю = 800мм және 1000мм жылу магистралі салынды және қазіргі уақытта жеті жылу магистралі бар орталықтандырылған жылу тарату орталығы пайдалануға берілді.
Өткен ғасырдың 80-ші жылдарының басында, батыс бөлігінде қаланы кеңейту басталды, бұл атқару комитетінің шешіміне әкелді. 1986 жылы олар бірінші, ал 1988 жылы АХТС-ның екінші сатысы. Қазіргі уақытта «Западный жылу кешені» ААҚ «Алматы электр стансалары» АҚ құрамына кіреді.
Қазіргі уақытта батыс жылу кешені келесі жабдықтармен жабдықталған: үш бу қазандары BO-25/15; екі бу қазандары ГМ-50/14; ПТВМ-50 екі ыстық су қазандары; ПТВМ-100 алты ыстық су қазандары; 6 КВГМ-100 су қазандары.
БЖК құаттылығы 2018 жылға 0, 9 млн. Гкал жылу түріндегі энергиясы болды.
1. 2 Батыс жылу кешеннің пайдаланылатын газды-мазут қазандықтарының үлесі
Жыл сайын Батыс жылу кешенінің шамамен 0, 9 миллион Гкал-қа дейін шығатындығын біле отырып, қазандықтар бізге беретін жылу пайызын есептеуге болады, олар газды және мазутты жағуға негізделген - бұл зауыттың барлық қазандықтарының 32% -ын құрайтын КВГМ-100 сериясындағы 6 қазандық.
Орнатылған жылу қуатының пайдалану нормасы 8% құрайды. Бұдан кейін қарапайым есептеулер жасаймыз, мұндай коэффициенттермен біз компания толық қуатта жұмыс істеген уақыттың үлесі тек 8% -ын, яғни 29, 2 күнді немесе 700 сағатты жұмыс істейтінін түсінеміз. Біз 0. 9 миллион ГКал-ны сағат саны бойынша бөлеміз. шықты, оның 32% КВГМ-100дікі, дәлірек айтқанда
1. 3 Отын шаруашылығы
Отын-энергетикалық кешен (бұдан әрі - ОЭК) елдің экономикалық және әлеуметтік дамуында маңызды рөл атқарады. Ел мұнай, газ, көмір, уран және жаңартылатын энергия көздерінің аса бай қорларына ие. Өнімдерін сатудан түсетін кірістер Қазақстанның ОЭК салаларының белсенді инфрақұрылымын дамытуға мүмкіндік береді, алдыңғы қатарлы технологиялар трансферін жүзеге асыруға ықпал етеді, экономиканың инновациялық дамуына кепілдік береді, еңбекке қабілетті халықтың елеулі бөлігінің жұмыспен қамтылуын, әлеуметтік саланы дамытуға ықпал етеді. Алайда, өткен ғасырдың парадигмасында "ОЭК" дамыту Қазақстан Республикасының стратегиялық мақсаттарға қол жеткізуіне қауіп төндіреді, энергоқауіпсіздігінің төмендеуіне әкелуі мүмкін, экология жағдайын нашарлатады және экономикалық өсу үшін қосымша тәуекелдер жасайды.
Қазақстан Республикасының ОЭК-нің түйінді мәселелері:
1) Өсіп келе жатқан энергияға мен экономика және халық тарапынан отын деген сұранысты жабу үшін өндірістік қуаттардың жетіспеушілігі;
2) Экономиканың энергия ресурстарының экспортына тәуелділігі ресурстық салалардың экспорттық бағдарлануы;
3) Экономиканың жоғары энергия сыйымдылығы, төмен энергия тиімділігі деңгейі;
4) Мұнай-газ, көмір және атом салаларындағы топтасудың мен ресурстық базасы сапасының төмендеуі пайдалы қазбаларды өндіру деңгейінің айтарлықтай төмендеуіне және мемлекет үшін экспорттық кірістердің құлдырауына әкелуі мүмкін;
5) ОЭК технологияларын пайдаланудың төмен экологиялылығы.
Көмір өнеркәсібі
Отын генерациясының ағымдағы құрылымында көмір негізгі үлесі жиынтық тұтынуынан - 74%-ды құрайды. 2013 жылғы жағдайға сәйкес Қазақстан Республикасы дәлелденген көмір қорларының көлемі бойынша әлемде жетінші орынды алады. Энергетикалық көмір өндірудің едәуір көлемінің (112, 8 млн. тонна) арқасында Қазақстан оныншы орында. 90% - дан астам барланған көмір қорлары солтүстік және орталық бөліктерде шоғырланған.
Энергетикалық көмірдің ресурстық базасы қорлардың едәуір көлемімен (шамамен 29, 2 млрд. тонна) сипатталады, алайда жоғары мөлшерлі күлділігімен және салыстырмалы түрде төмен жылу шығару мүмкіндігімен ерекшеленеді. Энергетикалық көмір қорының едәуір үлесін қоңыр көмір құрайды - шамамен 56%, ұзақ жарқырап жанатын тас көмір қорлардың 14%-ын қалыптастырады, қалған 30% тас көмірды битумды сапасын қалыптастырады. Битумды маркалы тас көмірдің қорлары Екібастұз бассейнінде шоғырланған және өте жоғары күлділігімен (42%) ерекшеленеді. Қазақстанда сондай-ақ кокстендірілетін көмірдің едәуір қоры бар (шамамен 5, 2 млрд тонна), көбінесе К және КЖ сапалы маркаларын атап өтуге болады.
Еліміздің экономикасындағы мұнай саласының рөлін мынадай фактілер айтады:
1) Қазақстанның құнды экспортының құрылымында шикі мұнай үлесі 2012 жылы 92, 3 млрд. АҚШ доллары жалпы көлемінен 61, 1%-ды құрады;
2) Жер қойнауын пайдаланушылардан түскен салықтық түсімдер көлемі 2012 жылы 13, 3 млрд. АҚШ доллары;
3) Мұнай кешені кәсіпорындарындағы қызметкерлердің тізімдік саны- 2012 жылға саны 85 мың адам;
4) Мұнай саласы, сондай-ақ жоғары тура әлеуметтік жүктемемен ерекшеленеді: инфрақұрылым нысандарын салу, спорттық іс-шараларды қолдау, білім беру саласына инвестициялар мен басқа да әлеуметтік жобалар.
Қазақстан Республикасындағы мұнай өнеркәсібі өзіндік құнын құру тізбегінің барлық шегінде ұсынылған: шикі мұнайды барлау, өндіру және тасымалдау, мұнай өңдеу және мұнай өнімдерін сату. Қазақстан 2012 жылы 79, 2 млн. тонна өндіру көлемі бойынша он жетінші орында. Өндірілген мұнайдың негізгі үлесі (шамамен 85%) экспортқа шығарылады. 3 ірі мұнай өңдеу кәсіпорындарында мұнай өңдіру көлемі 2013 жылы 14, 3 млн. тоннаны құрады.
Қазақстан дәлелденген газ қорлары бойынша әлемде 18-ші және ТМД елдері арасында 3-ші орында. Қазақстан Республикасының геологиялық газ ресурстары (Каспий қайраңында ашылған жаңа кен орындарының есебінен) 6-7 трлн. м 3 көтерілді. Газ қорларынан алынатын өнім шамамен 3, 8 трлн м 3 . Өйткені газ ілеспе болып табылады, оны өндіру көлемі тікелей мұнай өндіру көлеміне байланысты.
Алматы қаласында орналасқан батыс жылу кешенінің негізігі қондырғысы су жылытқыш қазандары. Осывберілген тақырыбым бойынша су жылытқышпқазанының ұлғаюын қарастырамын. Бұлвбатыс жылу кешенінде КВГМ-100-150С типті буақазаны жұмыс істейді, қысымып25 кгс/см 2 дейінгі және температурасы 150 0 С жылыту, желдету жүйесінде қолданылатын, өнеркәсіптік және тұрмыстықаыстық сумен жабдықтауға негізделген, сонымен қатар қолданылатын ыстық су алу үшін арналған.
1. 1 кесте - Техникалық мәліметтер
1. 1 кестенің - жалғасы
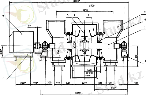
1. 4 КВГМ-100-150 су қазанының құрылысы мен көрсеткіштері
Қазан оттықтың артқы жағымен жалғасатын конвективті газ жолдарымен П-бейнелі үйлесімділікті иемденеді. Оттықтың жоғарғы бөлігіндегі артқы экран тік үшфазалық фестонға ажырайды.
Қазандықтың ошақтың артқы қабырғасымен байланысқан П типті конвективті газ жолдары бар түйіскен ұйымдастырылуда істелінген. Ошақтың жоғарғы жағының артқы экраны тік үшфазалы фестонмен араластырылады.
1. 2 сурет - КВГМ-100-150 су қазанының суреті
1. 3 сурет - КВГМ-100-150 су қазанының құрылысы
Қазандық камералары мен қабырға қалыңдығы және диаметрі







Қазандық ошақтың шет қабырғасында екеуден орналасқан төрт РГМГ20 типті газмазутты оттықпен жабдықталған. Әр оттық бірінші ретті өздігінен жұмыс істейтін 19 ЦС 63 типті ауа желдеткішімен камтамассыз етілген.
Форсунка алдындағы мазут қысымы 2 кг/см 3 аспауы керек. Мазут қаттылығы 6-8 ВУ. Жүктемені өзгерту диапазоны 10-100%. Оттық алдындығы газ қысымы номинал режимде 3400 кгс/м 2 .
Конвективті газжолының экран құбырларының ось бойынша өлшемдері 3000x6050 мм. Артқы экран мен конвективті газжолы газтығызды мембраналы панельдерден құралған диаметрі 57x5 мм қадамы 75мм құбыр. Қазандық конвективті қызу қабаты төрт пакеттен құралған мембраналы қызу қабаты, олар коллекторға кіріп d 108x4, 5мм қадамы 110 мм болатын газжолының шеткі қабырғасы болады. Панель мембраналары d38x4 мм диаметрлі 16 құбырдан 37 мм жолақтан тұрады. Конвективті пакет құбырлары шахматты қадамдағы S 1 =110 мм 2 S 2 =75 мм 2 .
Қазандықтың барлық блоктары каркасқа ілумен бекітіледі. Қызу беттерінің жөндеу жұмыстары және бақылау үшін лаздар қарастырылған.
Қазандық оқшауламасы құбыр үстінде. Ол конвекциялық блоктың үстіне және мембраналы панельге қосылады. Оқшауламаның жалпы қалыңдығы 120 мм. Қазандықтың дұрыс жұмыс істеуіне құбыржолдар мен керекті арматура қамтамассыз етеді. Қазандықтың жоғарғы нүктелері үшін қазандықтан ауаны шығаратын вентильдері бар құбыр жолы орналылған. Суды шығару үшін арнайы арматураланған дренажды құбыр өткелі бар.
Батыс жылу кешенінің қазандары негізгі режім бойынша жұмыс істейді. Су төменгі коллектордың фронтальді экранына келеді, содан кейін осы экранның жоғарғы коллекторынан, U-тәріздес жүріс жасап, аралық экранның жоғарғы жағына түсетін, бүйір экрандардың жоғарғы коллекторына беріледі. Аралық экранның төменгі коллекторы, су конвективті газжол құбырынан, жоғарыдан төмен қарай өтеді де, конвективті газжолының артқы экраны арқылы төмен қарай түседі.
1. 5 КВГМ-100-150 су қазанының қосымша қондырғылары
Түтін сорғыш құрылысының сипаттамасы ДНх2=0, 62 ГМ.
Түтінсорғыш Барнауыл қазан зауытында 0, 62-40 Ползунов атындағы МО ЦКТИ-да аэродинамикалық сұлбасы бойынша жасалған. Түтінсорғыш негізгі түйіндері: жұмыстық дөңгелек, қозғалыс бөлігі, иірім, сорғы құйғы, екі сорғы қалташа (оң және сол) және екі осьтік бағыттаушы құрылғыдан (оң және сол) тұрады. Жұмыстық дөңгелек қанатшадан және күпшектен тұрады. Қанатша 32 бүгілген қалақшадан пісірілген, негізгі және екі конустық дисктердің арасында орналасқан құрылғы (16х2) болып табылады. Күпшек болатты балқымадан жасалады және негізгі дискке бұрандамамен бекітіледі. Валдың қозғалмалы бөлігіне күпшек оның екі шетінде орналасқан түйреуішпен қыстырылған, екі конустық қима тығынмен бекітіледі. Қозғалмалы бөлік соғылған валдан, мойынтіректің екі ажырайтын шойын қаптамасынан, екі радиалды сфералық доңғалақша мойынтіректерден, тығыздалған түйіндерде (оң және сол) және серпінді тығындық машина валын электрдвигатель валымен қосатын жалғастырғыштан тұрады. Мойынтірек электрдвигатель жағынан тіректі-табанды болып, ал басқа жағынан - табанды болып келеді. Мойынтірек корпусы негізгі іргетасыға бұрандамамен бекітілетін тіреуіште құрастырылады. Мойынтірек корпусында маймен толтырылатын қуыс болады. Валдың қозғалмалы бөлігінің тығыздалуы біріккен ортаға тепкіш-тығыздама болып табылады. Мойынтірек корпусындағы майды суыту үшін иректүтіктер жасалады. Суытуға кететін су шығыны түтінтартқыға 0, 5 м 3 /сағ. Ирек түтікке кірердегі суытатын судың температурасы 25 0 С ден аспауы керек. Мойынтіректің рұқсат етілген, қалыптасқан температурасы 70 0 С-ден аспауы керек. Май ваннасындағы май деңгейі деңгей көрсеткішімен, мойынтірек корпусының температурасы - екі кедергі ТСП-085 (ГОСТ 6651-59 термометрмен немесе қол тигізіп тексеруге болады. Мойынтіректің қозғалмалы бөлігін майлау үшін турбинді май немесе индустриялық И-40 қолданылады. Түтінсорғыш роторын жинау кезінде өндіруші зауытта теңгермеге тап болады. Иірім мен сорғы қалташалар жапырақты және профильді болаттан пісіріліп жасалады. Иірім және сорғы қалташаларда өтетін тесік және қарау есігі болады. Иірімдегі және сорғы қалташаларда ротор қуысы үшін алынбалы бөліктер қарастырылады. Сорғы воронка жапырақты конфузордан және бұрандамен бекітілген нүктелік сақинадан тұрады. Сорғы воронка құрылысы, жұмыстық дөңгелек жағасының ішкі беті мен тетік және сақинаның сыртқы беті арасындағы талап етілген радиалды және осьтік эксплуатациялық процестің тұрақтылығын қамтамасыз етеді. Осьтік тетік 14 + 2мм, ал радиалды - 4 + 1 мм болуы тиіс. Берілген машинаның тетіктері тұрақты болуы керек, себебі мұнымен қалыпты номиналды аэродинамикалық параметрлерді алу қамтамасыздандырылады. Түтінсорғыш жұмыс режімі екі осьтік бағыттаушы құрылғымен (оң және сол), ол 12 профильді қалақшалардан тұрады. Қалақшалар 0 0 -тан 90 0 -қа дейін айналады. Аралық бұрышта газ ағыны жұмыстық дөңгелектің бағытына сәйкес ауытқиды.
1 -қозғалатын бөлігі; 2 -сорғы қалташа; 3 -жұмыстық дөңгелек; 4 -корпус; 5 -коллектор; 6 -осьтік бағыттаушы аппарат; 7 - двигатель рамасы; 8 - тірек; 9 -двигатель
1. 4 сурет - ДН-22х2-0, 62 түтінсорғысының құрылымы
1. 5 сурет - ДН-22х2-0, 62 түтінсорғысының суреті
Желдеткіш ВДН-20
Желдеткіш Барнауыл қазан зауытында 0, 62-40 0 Ползунов атындағы МО ЦКТИ-да аэродинамикалық сұлба бойынша жасалған. Желдеткіштің негізгі түйіндер: жұмыстық дөңгелек, жұмыстық бөлік, иірім, сорғыш воронка, осьтік бағыттаушы құрылғы және қозғалмалы бөліктің рамасынан тұрады. Жұмыстық бөлік қанатшадан және күпшектен тұрады, қанатша 10 бос бүгілген профилденген, негізгі және конустық дисктің арасында орналасқан қалақшалардан тұрады. Беріктік пен қатаңдықты қамтамасыз ету үшін қалақшалардың ішкі жағына қабырғалары пісіріледі. Қалақшалардың дайындалуы мен конустық диск таңбаланған. Желдеткіш күпшегі болат құймадан жасалған және ол негізгі дискке бекітілген. Қанатша күпшекпен жиналғанда валдың қозғалмалы бөлігінде кілтек және сомынмен валдың соңына бұралады.
Желдеткіштің қозғалыс бөлігі соғылған валдан, негізгі құйылған корпуста орналасқан мойынтіректен, тұрады.
Желдеткіштің қозғалмалы бөлігі, негізгі құйылған корпусында орналасқан, горизонтальді ажыртқыш тығыздалған және қатты тығынды электрдвигатель машинасын валмен қосатын, жалғастырғыштан түйіні бар соғылған валдан тұрады. Мойынтірек электрдвигатель жағынан - тіректі-табанды, ал басқа жағынан - тіректі болып келеді. Мойынтіректерді майлау түтінтартқыны майлауға ұқсас болады. Желдеткіш иірімі жапырақты және профильді болаттан пісірілген болып келеді. Фронтальді бет жағындағы иірімі (осьтік бағыттаушы құрылғы жағынан) аз уақытылы тоқамалар кезінде, машинаны тексеруге мүмкіндік жасайтын тесік болады. Иірімдегі ротор шұңқыры үшін алынбалы сектор қарастырылады. Сорғыш воронка белгіленген жапырақты, конус тәріздес цилиндрлі іріктелген және бұранда арқылы бекітілген тығыз лентадан тұрады. Тығыздалған лента жұмыстық дөңгелектің жағасына жеңіл кіреді. Сорғы воронканың құрылысы осьтік және радиалдық тетіктердің тұрақтылығын эксплуатация процессі кезінде қамтамасыз етеді. Осьтік тетіктер 10 + 3 мм, радиалды - 4 мм болуы қажет.
1. 6 кесте - Түтін тартқыштардың техникалық сипаттамалары
1. 7- сурет ВДН-20 желдеткішінің сұлбасы
1. 6 Түтін мұржасы
Түтін мұржалары қиын жағдайларда жұмыс істейді: температураның, қысымның, ылғалдылықтың ауысуында, түтін газдарының аггрессивті әсерінде, желдің жүктемесі мен мұржанын өз массасы жүктемесі түскен жағдайда жұмыс істейді. Түтін мұржалары кірпіштен, темір бетоннан және металлдан жасалады. Мұржа корпусын құрайтын бетон маркасы 300. Суретте кірпіштен қаланған түтін мұржасы көрсетілген. Оның негізгі элементтері: 1- іргетасы және 2 діңі. Мұржаның темір бетонды корпусы дің беті 0, 06 дан 0, 03ді құрайтын, айнымалы еңісі бар конустық құрылысты құрайды. Діңгектің темір бетон қабырғасы және футеровка арасында желдетілетін тетіктің айнымалы өлшемі 50 ден 300 мм-ге дейін қарастырылады. Діңгек футеровкасы қышқылға төзімді кірпіштен жасалады. Іргетасы табиғи тіректегі дөңгелек құрылысты. Проект ретінде қозғалмалы саты, найзағадан қорғағыш, маркировтық бояу, бағдаршамды алаң және қылтималар ескерілген. Құбыр биіктігі 96, 25 м.
а) Кірпіштен жасалған түтін мұржасы б) болаттан жасалған түтін мұржасы
1- цоколь; 2-мұржа өзегі; 3-жайтартқыш; 1- мұржа өзегі; 2-кергі; 3- шойын тақта;
4-футеровка 4- іргетас
1. 8 сурет - Түтін мұржасының суреті
Газ шаруашылығы
Бұл қазандықта Бухардан шыққан табиғи газ қолданылады, оның қасиеттері: түссіз, иіссіз, уландырғыш заттары жоқ, ауадан жеңіл, ауадағы концентрациясы 80% дан асса тұншықтырады.
Ауада газдың барын анықтау үшін Бухар газының құрамына этил меркаптанын қосады, оның спецификалық иісі бар және онымен әрбір жұмысшы таныс болуы керек.
Бұхар газы 5% дан 15% ауада болса, ауамен қосылып жарылғыш зат түзеді. Бұл қоспа кез келген тұтанған затты жандыра алады, өте қауіпті келеді.
Газ таратушы пункт магистральдан берілетін газдың қысымын төмендету үшін және оның ары қарай қазандыққа берілуін қамтамасыз етеді.
Бұл сұлба құрамына:
1. Газ құрамындағы механикалық қоспаларды тазалайтын фильтр
2. Құрамында екі кезектесіп орналасқан қысым реттеуіштері бар, қысымды төмендетуге арналған екі жіпше
3. Шығар жолдағы сақтаушы клапан.
4. Газжолынан атмосфераға айдаушы шамдар.
5. Газ қысымын реттегіш сулы жол.
6. Ілмекті арматура.
... жалғасы- Іс жүргізу
- Автоматтандыру, Техника
- Алғашқы әскери дайындық
- Астрономия
- Ауыл шаруашылығы
- Банк ісі
- Бизнесті бағалау
- Биология
- Бухгалтерлік іс
- Валеология
- Ветеринария
- География
- Геология, Геофизика, Геодезия
- Дін
- Ет, сүт, шарап өнімдері
- Жалпы тарих
- Жер кадастрі, Жылжымайтын мүлік
- Журналистика
- Информатика
- Кеден ісі
- Маркетинг
- Математика, Геометрия
- Медицина
- Мемлекеттік басқару
- Менеджмент
- Мұнай, Газ
- Мұрағат ісі
- Мәдениеттану
- ОБЖ (Основы безопасности жизнедеятельности)
- Педагогика
- Полиграфия
- Психология
- Салық
- Саясаттану
- Сақтандыру
- Сертификаттау, стандарттау
- Социология, Демография
- Спорт
- Статистика
- Тілтану, Филология
- Тарихи тұлғалар
- Тау-кен ісі
- Транспорт
- Туризм
- Физика
- Философия
- Халықаралық қатынастар
- Химия
- Экология, Қоршаған ортаны қорғау
- Экономика
- Экономикалық география
- Электротехника
- Қазақстан тарихы
- Қаржы
- Құрылыс
- Құқық, Криминалистика
- Әдебиет
- Өнер, музыка
- Өнеркәсіп, Өндіріс
Қазақ тілінде жазылған рефераттар, курстық жұмыстар, дипломдық жұмыстар бойынша біздің қор #1 болып табылады.

Ақпарат
Қосымша
Email: info@stud.kz