Ірі қара мал қораларының жобалаудың нормативтік базасы


Қазақ Ұлттық Аграрлық Университеті
«Ветеринариялық-санитариялық сараптау және гигиена» кафедрасы
Курстық жұмыс
Тақырыбы: Буаз сиырларға арналған қора-жайларға қойылатын ветеринарлық -санитариялық және гигиеналық талаптар, малдарды күтіп бағу жағдайлары және оларды жақсарту шаралары
Орындаған: .
Тексерген: .
Алматы 2018
Жоспар:
- I. Кіріспе . . . 5
- II. Негізгі бөлім . . . 7
- 2. 1. Ірі қара мал қораларының жобалаудың нормативтік базасы . . . 7
- 2. 2. Буаз сиыр қора-жайларының нысандарына қойылатын ветеринариялық-санитариялық зоогигиеналық талаптар . . . 10
- 2. 3. Буаз сиырды азықтандыру және мал азығына қойылатын санитарлық-гигиеналық талаптар . . . 14
- 2. 4. Буаз сиыр ішетін суға және су көзіне қойылатын санитарлық - гигиеналық талаптар . . . 16
- 2. 5. Буаз малды күтіп-бағу технологиясы, күтудің, пайдаланудың санитарлық-гигиеналық бағалауы . . . 20
- 2. 6. Ірі қара шаруашылық нысандарың инфекциялық және инвазиялық аурулардан сақтау, профилактикалық, санитариялық-гигиеналық шараларын белгілеу . . . 24
- 2. 7. Еңбекшілердің жағдайын жақсартуға арналған ветеринариялық-санитариялық шаралар және антрозоопоноздардың алдын алу . . . 28
- III. Қорытынды . . . 30
- IV. Пайдалынған әдебиеттер . . . 32
РЕФЕРАТ
Ірі қара малының денсаулығын сақтау және өнімділігін арттырудың басты кепілі оны дұрыс бағып- күтуді ұйымдастыру. Ғылым және шаруашылық тәжірибелерінде ірі қараны ұстаудың озық әдістері жинақталған. Ірі қара мал шараушылығы мол өнім бертін бірден - бір алдыңғы қатарлы шаруашылық. Бұл шаруашылықтың негізінің қалануынан бастап мал санының көбеюіне дейін өте қатаң тәртіпті талап етеді. Мысалға алсақ, мал қорасының ірге тасының қалануы өзіндік белгіленген ветеринариялық-санитариялық гигиеналық талаптарға негізделген. Ірге тасы берік қаланған мал қорасы кейінгі ірі қара малының санының көбеюі мен оның өнімінің мол болуына кепіл болады. Мал шараушылығы ішінде ірі қара шаруашылығы-мал шаруашылығында ең маңызды сала, біріншіден - халқымызды ең жоғары сапалы тағамдармен қамтамасыз етеді, әрі бұл сала маңызды органикалық тыңайтқыштарды да өндіреді. Сол себепті ірі қараның санын көбейтіп, өнімділігін молайту үшін сиыр малына жағдай жасау керек. Ірі қара малының күтіміне назар аударатын жайт малды дұрыс азықтандыру мен суару. Осы екі көрсеткіштің дұрыс болуы мал санының көбейіп, мал өнімінің сапасының жоғарлауына ықпалын тигізеді. Мал қорасының санитарлық талаптары қатаң сақталып дұрыс қадағалануы керек. Малды күтіп бағу әр түрлі тәсілдермен жүргізілуі керек. Мал қорасының түрлі химиялық заттар қалдықтарынан дер кезінде тазарту ол малдың дұрыс өсіп-жетілуне ықпалын тигізеді. Қарастылылып отырған тақырып толықтай мәліметпен қамтылып жазылған. Бұл курстық жұмысты жазу барысында көптеген ақпарат көздері қолданылған; кітаптар жиынтығы Ж. Мырзабеков, П. Ибрагимов «ВЕТЕРИНАРИЯЛЫҚ ГИГИЕНА», Алматы, «Білім» 2005жыл; Каримов Ж. К., Төреханов А. Ә., Даленов Ш. Д., Жазылбеков Н. Ә. « ІРІ ҚАРА ШАРУАШЫЛЫҒЫ, СҮТ ПЕН ЕТ ӨНДІРУ ТЕХНОЛОГИЯСЫ» (оқу құралы) Алматы, 2005жыл; Б. Ысқақбаев «Ірі қара шаруашылығы» Алматы, «Қайнар», 1996ж; А. Ә. Төреханов, Ж. К. Каримов, Д. Қ. Найманов, Н. Ә. Жазылбеков «Ірі қара шаруашылығы», Триумф «Т», Алматы, 2006ж, интернет желілері «Google. ru» сайтынан алынған. Курстық жұмыс жалпы 32 беттен тұрады, кұрамында 5кесте; 9 фотосурет бар.
Түйін сөздер: гигиена, стандарт, норматив, дезинфекция, дератизация, дезинсекция, дезинвация, гигиеналық-санитариялық, технология, микроклимат, инфекция т. б.
I. Кіріспе
Ауыл шаруашылығында сүтті, сүтті-етті және етті ірі қара мал шаруашылығының маңызы өте зор. Ірі қара малынан алынатын өнімнің түрі көп: сүт, ет және тері жатады. Сонымен қатар ірі қара мал терісі де жеңіл өнеркәсіп шаруашылығында көп қолданады, әрі ірі қараның қиы егін шаруашылығында, әсіресе кейінгі уақыттарда, кеңінен органикалық тыңайтқыш ретінде топырақтың құнарлығын арттыру үшін пайдалануда. Отанымыздың азық - түлікпен (ет, сүт, сүт тағамдарымен) қамтамасыз ету үшін ірі қара мал шаруашылығының маңызы өте зор. Себебі сүт өнімі оның 99 пайызын, ал ірі қара еті 40-45 пайызға дейінгі деңгейін құрайды. Сүт өнімі жағынан ірі қара мал басқа ауыл шаруашылық малдарына қарағанда көп алда. Көптеген алдыңғы қатарлы шаруашылықтарда әр жылына 7000 кг-нан артық сүт сауса, ал аса сүтті сиырлардан бір маусымда (305 тәулік ішінде) 27600 кг дейін сүт сауған, ол Кубаның Убре-Бланки атты сиыры тәулігіне 110, 9 кг сүт берген. бордақыланған төлдердің тәулікте қосатын салмағы 1500 г-нан да асуда. Қазақстан Республикасы Ауыл шаруашылығы министрлігінің деректері бойынша 2010 жылы ірі қара саны 7млн 803, 7 мың бас болса, оның ішінде сиырдың саны 3млн 379, 4 мың басқа жеткен. Әрбір жыл сайын ірі қара басының саны көбеюде. Ал кейінгі жылдарда ірі қара мал тұқымдарының асылдануын ерекше көрсеткен жөн, сонымен қатар жаңадан асыл тұқымды ірі қара малы шығуда, ал осы асыл тұқымды ірі қара малдары экономикалық табиғи аймақтарға жақсы бейімделген. Қазақстан Республикасының шаруашылықтарында 20-дай сүтті, сүтті- етті және 8-сүтті ірі қарасының асыл тұқымды малдары өсірілуде. 1930 жылдары басталып, 1950 жылдары жаңа тұқым болып бекітілген Қазақстанда шығарылған жаңа тұқымның бірі-қазақтың ақбас сиыры. Қазіргі уақытта Қазақстан Республикасының шаруашылықтарында сүтті және сүтті-етті бағытқа жататын: қырдың қызыл, әулиеата, қара ала, алатау, симментал, латыштың қызыл қоңыр, айршир ірі қара тұқымдары болса, ал етті бағытқа жататын: Қазақтың ақбас, әулиекөл, санта-гертруда, абердин-ангусс, галловей, шароле, қалмақ, герефорд ірі қаралары жатады. Голландия ірі қарасының тұқымы - бұл тұқым жергілікті жерде іріктеу, жұптау тәсілдерін қолданып, жақсы бағып-күтуге байланысты шыққан. Қазіргі Галландия ірі қара малының тұқымы ХХ ғасырдың басында қалыптасқан. Галландия қара сиырының тұқымы өте ірі, дене бітімі мен сүйегі өте мықты, еті жақсы жетілгендене бітімі әдемі, сиырлардың тірілей орташа салмағы 550-600кг, бұқаларынікі 800-1000кг, орташа сүті 5200 кг, майлылығы 4, 1 пайыз, белогі 3, 32-3, 55 пайыз, бұзауларының туғандағы тірілей салмағы 36-42 кг. Бұл тұқым тез өсіп дамиды және еттілік қасиеті жақсы. Бордақыланғаннан кейән ұша шығымы 55-60 пайызды құрайды. Осындай тұқымның асылдығына байланысты голланд ірі қара малының тұқымын көптеген мемлекеттерге жерсіндіруге әкеле бастаған. Қара - ала сиыр тұқымы - ТМД-да аса сүтті сиырға жатады, әр аймақта жергілікті сиырларды голландының қара-ала сиырымен шағылыстыру арқылы шыққан. Жеке ірі қара мал тұқымы болып 1959жылы бекітілген. Осы тұқымның малы Орталық Ресейде, Жайықта және Сібір аймақтарында шоғырланған. Қара - ала ірі қарасы сүтті тұқымға жататындықтан сүттілігі өте жоғары, дене бітімі өте мықты, сырттан қарағанда әдемі, түсі қара - ала. Сиырларының тірілей алмағы 550-650кг, бұқаларінікі 850-950кг, кейбіреулері 1100 кг-ға жетеді. Төлдердің өсіп дамуы жақсы, орташа салмақ үлесі 800-950кг. Асыл тұқымды сүт зауыттарының сиырларының орташа сүттілігі 5500-6700кг.
2. 1. Ірі қара мал қораларының жобалаудың нормативтік базасы.
Мал шаруашылығы құрылыстарын белгіленген зоогигиеналық норма мен ветеринариялық-санитариялық талаптарға сай жобалауға, салуға және пайдалануға бақылау жасап отыру қажет.
2. 1. 1. Мал қорларының схемалары
Мал шаруашылығы объектілерін салуды ұйымдастыру. Қазіргі уақытта әр жеке шаруашылықтар малға арналған құрылыстарын өз қаржыларымен жүргізеді. Мал қораны салу ең алдымен тапсырыс (заказ) берушінің ұсынысымен жоба жасауға арналған тапсырмасын жасаудан басталады. Жобалауға тапсырма жасау-ол жұмыстың алғашқы кезеңі. Онда негізгі технологиялық міндеттер мен санитариялық-гигиеналық талап атап көрсетіледі. Олардың бәрі болашақ кәсіпорынның техникалық дәрежесін айқындайтын жобалық- сметалық құжаттар жасау үшін негіз болады. Мал қораларының құрылыстары оларды жобалаудан басталады. Құрылыс салу және қалпына келтіру (реконструкция) үшін жобалау және зерттеу жұмыстарын қол қойылған келісім негізінде жобалау мен зерттеу ұйымдары жүргізеді. Келісім шартта жобалау және зерттеу жұмыстарын орындау мен құны, оған қоса келісімді көрсетілген жұмыстар сметасы, заказ берушінің осы жұмыстарды қаржыландыруы туралы анықтамасы және оларды жобалау үшін бастапқы деректерді беретін графиг көрсетілуі тиіс. Құрылыс бастамас бұрын нысанды жобалау үшін бөлінген қаржы есесінен құрылыс салу үшін жобалау-зерттеу жұмыстарының алғашқы тізімі жасалады. Жобалау - құрылыс салудың алғашқы да маңызды кезеңі. Сондықтан да жобалуды ғылыммен техниканың соңғы жетістіктерін, сондай-ақ құрылыс басталар кезде және ол іске қосылар кезде технологиялық және өндірісті ұйымдастыру жағынан, механикаландыру, жарықтандыру, сол сияқты архитиктуралық-жоспарлау шешімінің дәрежесі, құрылыс конструкциясы жағынан артта қалып қоймастай етіп олардың даму келешегін ескере отырып жасаған жөн. Жобалық тапсырма -жобаға талап пен негізгі міндеттер көрсметілген жобалаудың алғашқы сатысы. Жобалауға тапсырманы заказ беруші белгілейді және мынандай маңызды деректерді көрсетеді: кәсіпорынның атауы, жобаға негіз болған себептерғ құрылыс салатын аудан және алаң, объектінің өндіріс қуаты, жануарларды күтіп-бағу технологиясы, санитарлық-гигиеналық режимі, азықтандыру рационы, ветеринариялық-санитариялық талаптар мен зоогигиеналық парамертлер.
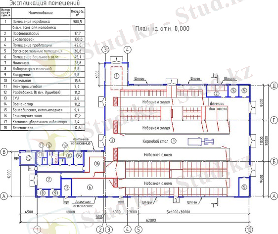
2. 1. 2 200 бас сиырды байлап ұстауға арналған қораның жоспары мен кесіндісі
2. 2.
Буаз сиыр қора-жайларының нысандарына қойылатын
ветеринариялық-санитариялық зоогигиеналық талаптар.
Сиыр қораларын дұрыс жобаланып, құрылысының дұрыс салынуы мал өсімінің жоғарлауы мен өнімділігінің мол болуы тікелей байланысты болады. Сол себептен қора-жай тұрғызуға арналған құрылыс материалдары ветеринариялық-санитариялық талаптарға сай болуы керек. Құрылыс материалдарының сапасының жоғары болғаны дұрыс бұл келешек сиыр қорасының ұзақ тұруына кепіл болады. Қора-жай құрылысында көптеген материалдар қолданады. Ең алдымен қора-жай тұрғызу үшін жер тандап аламыз, болашақ сиыр қорасы тұрғызылатын жер құрғақ, сәл биікте, тасқын не жаңбырдан кейін су баспайтын болуы тиіс. Ол аймаққа күн сәулесі молынан түсетін жер болғаны ыңғайлы, желдетіліп тұратын және жел бораннан ық жерде орналасқаны дұрыс. Қора-жай маңына ағаш көптеп отырғызылу тиіс. Топырағы құрылыс салуға ыңғайлы болғаны жөн. Жер қыртысының құрамы су және ауа өткізгіш, түйіршік топырақты, сүзгіштік қасиеті төмендеу, көк желек отырғызуға жарамды болса тіпті жақсы. Таңдалған жердің топырағындағы дымқыл кемінде 5м тереңдікте болғаны жөн. Сонымен бірге ол жер санитариялық талаптарға сай кемінде 5м, ал су қысымымен шығатын қабаты 12 метрден артық тереңдікте орналасқан және ауыз суы жеткілікті болуы керек. Сиыр қорасының салынуна арналған жерге қойылатын басты талап ол жердің жұқпалы аурулардан сау болғандығы ескерілуі тиіс. Бір қабатты қора-жай ірі қара малын ұстауға өте тиімді. Қора-жай мал шаруашылығы құрылысы негізі. Ол берік болуы тиіс, себебі болашақ қора-жай үстінен қаланады. Көбіне табиғи тастар қолданады, олар тау кені құрамынан алынады ауа өзгерістеріне төзімді, берік аса әсем. Қыш бұйымдары табиғи балшықтан органикалық және минералдық заттардан дайындалады. Ірге тас бұл барлық тіректі элементтерін ұстап тұратын жерасты бөлігі. Ол берік, мықты, үнемді болуы тиіс.
2. 2. 1. Жобаланған қора - жай макеттері
Қора-жай қабырғалары. Ірі қара қорасы жылу және дымқыл өткізбеуі керек, қалыңдығы ескерілуі тиіс. Гигиеналық жағынан келгенде қабырғылар жылу жібермейтін материалдан соғылуы тиіс. Жылуға берік және орташа деңгейде өткізіп тұруы жөн.
Төбе жапқыштар . Континенталдық климат жағдайында олар қора-жайды сыртқы әуе кеңістігінің құбылыстарынан сақтайды, қыста және жазда жылуды сақтайды. Төбе жапқыштар берік әрі барынша жеңіл, теп-тегіс, су өткізбейтін болуы керек.
Едендер. Сиыр қора-жайының басты талап ететін, нормалық көрсеткіштерінің жоғары болуын қамтаамасыз ететін бірден - бір элемент. Мал тұяғының дұрыс болуы еденнің дұрыс салынуы мен оның қандай материалдан жасалғанына байланысты. Еденнің конструкциясы мен материалдары оның ішіндегі микроклиматқа, санитариялық - гигиеналық жағдайларға, жануарлардың денсаулығы мен тазалығына, өнім сапасына және өнімділік көрсеткіштеріне септігін тигізеді. Бұл үшін қалқанды (қарағай, шырша, май қарғай, бал қарағай, самырсын) тұқымды ағаштар пайдаланады. Ірі қара қорасы мынандай талаптарға сай болуы тиіс: жылуды аз өткізетін, берік, қажалмайтын, жанбайтын, тұтас, тегіс, су өткізбейтін, сиыр денсаулығына зиянсыз, тазартып-жинауға қолайлы. Көп жағдайда сиыр қорасының еденін саз балшықтан не бетон үстіне ағаш төсеп тұрғызады. Ағаш едендер төсеуге тез, жылу өткізгіштігі төмен.
Қораның төбесі . Сыртқы табиғи әсерлерден қорғайтын конструкция. Ол-тіректі бөлімдерден және сыртқы жабыныштардан тұрады. Төбе шатырлы және шатырлы болады. Мал қорасының басты қорғаныш элементі.
Қақпа, есік және тамбурлар. Қақпа арқылы жылу алмасады. Сондықтан оны тығыз, суық күндері қатпайтындай етіп жасайды. Қақпаларды шойын не болат арматуралардан тұрғызғыаны дұрыс.
Терезелер мен жарықтандыру . Терезерлер мөлшері ғимаратқа қажетті және сәулелік шешімге сай болуы керек. Терезелер ғимараттары сырттан бөліп тұратын және табиғи жарық беретін, ішін желдендіріп отыратын қажетті элемент. Терезелер саны қора-жай көлемі мен орналасуына байланысты салынады.
Ірі қара қора - жайын жарықтандырылуы- микроклимат туғыудың басты да маңызды факторы. Сол себептен мал қорасының малға ыңғайлы етіп жарықтандырады, ол үшін әр түрлі көлемдегі лампалар қолданған жөн.
2. 2. 2. Ірі қара қораларының қолайлы микроклимат көрсеткіштері
Аммиак құрамы
Мг/м3
2. 3. Буаз сиырды азықтандыру және мал азығына қойылатын
санитарлық-гигиеналық талаптар.
Ең бастысы малдың денсаулығы мен оның өнімділігінің азықтың мөлшері мен санитариялық тұрғыдан қауіпсіздігіне байланысты екені белгілі. Кейінгі кезде азықтың құндылығының төмендеуіне байланысты және де рацион құрамының тапшылығы мал денсаулығына зиян келтіруде және олардың өнімділігін азайтты. Малды азықтандыру-олардың денсаулығына, өнімділігі мен сапасына тікелей әсер ететін сыртқы ортаның маңызды факторларының бірі. Жануарладың азыққа деген қажеттілігі олардың тіршілігін қамтамасыз етуде, өсуі мен семіруі кезінде денеге жаңа ұлпалардың қалыптасуы мен жаңаруына, өнім өндіруге, репродуктивті қызмет пен денсаулықты сақтауға керектң энергия мен қоректік және биологиялық белсенді заттардың барлығымен анықталады. Малды азықтандыру бәрінен де бұрын тиімді, әрі құнарлы болуы керек. Энергияға ғана қажеттін емес, сонымен бірге керегінше және дұрыс қатынасты түрлі қоректік заттарға организмге толық құнды белоктар, көмірсутегі, майларға, минералдық заттарға, микроэлементтер мен витаминдерге деген деген қажеттін қанағаттандыруға тиіс. Қабылдаған шикізатты тамақтық өнімге өңдейтін организм ретінде, азықтық қоректік заттар өнім ретінде. Буаз сиырларды жаздыкүні мүмкіндігінше оты жақсы өрісте ұзақ ұстауға тырысып, әр қайсысына тәулігіне 60-70 кг шөп есебінен қосымша азықтандыру керек. Буаз сиырларды үсіген немесе сапасыз азықпен азықтандырып, тым суық сумен суғаруға болмайды. Буаз малды азықтандыру ережесі: егер мал азық пен суды өз еркімен қабылдамаса малды тәуліктік азықтандыру ережесін қатал ұстап, жүргізуі керек. Мал бір уақытта азықтандыру ережесіне тез үйренеді. Егер бұл ереже бұзылған жағдайда мал тынышсызданып, сауын сиырдың сүті кемиді. Азықты пайдалану тиімділігі төмендейді, жас мал салмағы азайып арықтайды. Мал азықтандыру режимін бірқалыпты ұстамаған жағдайда мал асқазанына күш түсуі мүмкін. Малды азықтандыру мен суару кезектесіп тұруы керек. Себебі, малдың суға деген шөлін қандырмаса онда азықты нашар жеумен қатар, оны нашар сіңірілуі нашар болады, ас қорыту сөлі нашар болады. Азықтандыру алдында суару азыққа деген тәбетті ашады. Мұндай жағдайда мал ірі азықты жеп су ішеді. Сөйтіп өз еркімен кезектесіп тұрады. Малды өз еркімен суару қажет, тәбетінің жақсылығы артып мал азықтануы жақсарады. Ірі қара малын азықтандыру мал өсімі мен оның өнімділігінің артуына ықпал ететін бірден-бір фактор.
2. 3. 1. Азық түрлерін жіктеу
Ірі азықты
Аз жемді
Жартылай жемді
Жемді
0-9
10-24
25-39
40-тан астам
10-ден төмен
105-220
230-360
400-ден жоғары
2. 4 Буаз сиыр ішетін суға және су көзіне қойылатын санитарлық - гигиеналық талаптар.
Су дегеніміз негізгі биологиялық сұйықтық. Жануарлар тіршілігі үшінсу аса қажетті. Организмдегі су құрамы мал түріне, жасына, жынысына жіне ұлпаның типіне байланысты болады. Мысалы: сиырда 60 пайыз, жаңа туған төл денесінің 72 пайызын су құрайды. Суға қойылатын санитариялық -ветеринариялық гигиеналық талаптар. Санитариялық жағынан мал ішетін су көздері таза, қалдықсыз, ластанбаған яғни, пестицидтермен тыңайтқыштармен ластанбаған болуы тиіс. Лас су көзінен суарылған мал көптеген аурумен ауыруы мүмкін. Ветеринариялық- гигиеналық талаптар су сапасының жоғары болуына негізделген. Мал ішетін су химиялық және бактериялардан таза болуы тиіс. Мал ішетін су жылы болуы тиіс, оның температурасы 10-12ºС болуы тиіс, буаз мал үшін ең қолайлы температура 10-15º. Судың иісі өзіне тән, бөгде иіссіз болуы тиіс. Судың дәмі сондағы еріген минералды қосылыстарға байланысты: 2 балдан аспауы тиіс. Судың түсі- градуспен өлшенеді. Судың мөлдірлігі 1, 5мг/л аспауы керек. Судың химиялық құрамы аммиакпен нитриттер мен ниттраттар, хлорацид, сульфаттар мөлшері нормадан аспауы тиіс. Ірі қара малын суару белгіленген тәртіппен жүргізілгені дұрыс. Ірі қара, яғни сиыр малының ас қорыту прцесінде автосуаттардан суару анғұрлым қолайлы, яғни олардың суаруға деген қажеттілігі аз-аздан тәулігіне 12-21 ретке дейін барады. Автосуат жоқ болса оларды 3 мәрте суару тәртібін ұйымдастырған жөн. Сиырлар суды азықтанған соң және сауыннан кейін жақсы ішеді. Сиыр бұзаулаған соң 30-40 минуттан кейін оған жылы (25ºС) су беріледі.
Сүт өндіретін сиырлар
Ет бағытындағы сиырлар
Жас бұқалар мен қашарлар
Бұзау(6айға дейін)
Бұзау(6айға асқан)
100
70
60
30
30
65
65
40
10
25
15
-
5
-
2
2. 4. 1. Ірі қара малына жұмсалынатын су мөлшері
2. 4. 2. Ірі қара малын суаруға арналған су ішетін астау
2. 5. Буаз малды күтіп-бағу технологиясы, күтудің, пайдаланудың санитарлық-гигиеналық бағалау.
... жалғасы- Іс жүргізу
- Автоматтандыру, Техника
- Алғашқы әскери дайындық
- Астрономия
- Ауыл шаруашылығы
- Банк ісі
- Бизнесті бағалау
- Биология
- Бухгалтерлік іс
- Валеология
- Ветеринария
- География
- Геология, Геофизика, Геодезия
- Дін
- Ет, сүт, шарап өнімдері
- Жалпы тарих
- Жер кадастрі, Жылжымайтын мүлік
- Журналистика
- Информатика
- Кеден ісі
- Маркетинг
- Математика, Геометрия
- Медицина
- Мемлекеттік басқару
- Менеджмент
- Мұнай, Газ
- Мұрағат ісі
- Мәдениеттану
- ОБЖ (Основы безопасности жизнедеятельности)
- Педагогика
- Полиграфия
- Психология
- Салық
- Саясаттану
- Сақтандыру
- Сертификаттау, стандарттау
- Социология, Демография
- Спорт
- Статистика
- Тілтану, Филология
- Тарихи тұлғалар
- Тау-кен ісі
- Транспорт
- Туризм
- Физика
- Философия
- Халықаралық қатынастар
- Химия
- Экология, Қоршаған ортаны қорғау
- Экономика
- Экономикалық география
- Электротехника
- Қазақстан тарихы
- Қаржы
- Құрылыс
- Құқық, Криминалистика
- Әдебиет
- Өнер, музыка
- Өнеркәсіп, Өндіріс
Қазақ тілінде жазылған рефераттар, курстық жұмыстар, дипломдық жұмыстар бойынша біздің қор #1 болып табылады.

Ақпарат
Қосымша
Email: info@stud.kz