Дипломный проект коттеджа в г. Кызылорда: архитектурно-строительный, расчётно-конструктивный и технологический разделы, охрана труда и экономическое обоснование

ВВЕДЕНИЕ3
1 АРХИТЕКТУРНО - СТРОИТЕЛЬНЫЙ РАЗДЕЛ4
1. 1 Общая часть4
1. 1. 1 Район строительства4
1. 1. 2 Объе мно-пла нировочные ре ше ния5
1. 1. 3 Подсче т пока за те ле й генплана6
1. 1. 4 Технико-экономические показатели10
1. 1. 5 Характеристика здания14
1. 1. 6 Эксплика ция помеще ний15
1. 2 А рхите ктурно-конструктивна я ча сть16
1. 2. 1 Фундамент16
1. 2. 2 Стены и пе регородки19
1. 2. 3 Перемычки21
1. 2. 4 Перекрытие22
1. 2. 5Лестница23
1. 2. 6 Крыша25
1. 2. 7 Кровля25
1. 2. 8 Водоотвод с крыши28
1. 2. 8. 1 Ра сче т по опре де ле нию количе ства водосточных труб29
1. 2. 9 Окна и двери29
1. 2. 10 Полы32
1. 2. 11 Эрке ры - эле ме нты обога ща ющие а рхите ктурно композиционные ре ше ния зда ний34
1. 3 На ружная и внутре нняя отделка35
1. 4 Инже нерное оборудова ние36
1. 4. 1 Отопление36
1. 4. 2 Вентиляция38
2. РА СЧЕ ТНО - КОНСТРУКТИВНЫЙ РА ЗДЕ Л41
2. 1 Конструктивна я ча сть41
2. 2 Опре де ле ние отме тки подошвы фунда ме нта43
2. 1. 1 Опре де ле ние количе ства фунда ме нтных блоков по высоте43
2. 1. 2 Опре деление ширины подушки44
2. 1. 3 Сбор на грузок45
2. 1. 4 Расчёт на грузки на 1м² плиты покрытия46
2. 1. 5 Ра счёт на грузки на 1м² плиты пе ре крытия46
2. 1. 6 Расчёт на грузки на 1 длины фунда ме нта48
2. 1. 7 Опре де ле ние тре буе мой ширины подушки фунда ме нта48
3. ТЕ ХНОЛОГИЧЕ СКИЯ И ОРГАНИЗАЦИЯ СТРОИТЕЛЬНОГО ПРОИЗВОДСТВА51
3. 1 Те хнологиче ска я ка рта на отде лку фа са да51
3. 2 Подсчёт объёмов ра бот51
3. 3 Ка лькуляция трудовых за тра т и за ра бота нной пла ты52
3. 4 Указания по производству ра бот52
3. 5 Указания по технике безопа сности54
3. 1. 6 Ра счёт те хнико-экономиче ских пока за те ле й55
3. 2. Календа рный план производства ра бот56
3. 2. 1 Подсчёт объе мов ра бот56
3. 2. 2 Ве домость затра т труда и ма шинного вре ме ни58
3. 2. 3 Выбор ве дуще го механизма60
3. 2. 4 Ука за ния по производству работ61
4 ОХРАНА ТРУДА И ОКРУЖАЮЩЕЙ СРЕДЫ67
4. 2 Орга низа ция производстве нных те рриторий, уча стков ра бот и ра бочих ме ст69
5. ЭКОНОМИКА В СТРОИТЕЛЬСТВЕ71
СПИСОК ЛИТЕРАТУРЫ82
ВВЕДЕНИЕАктуальность данной темы: показать красивый коттедж в городе Кызылорде. Здания и сооружения играют важную роль в жизни современного общества. Можно сказать, что уровень цивилизации, развитие науки, культуры, производства во многом зависит от количества и качества зданий и сооружений. Каждое здание или сооружение - это дорогостоящий и сложный объект, состоящий из множества конструктивных элементов, системы инженерных бригад, выполняющих четко определенные функции и обладающих определенной производительностью.
Целью данного дипломного проекта является овладение навыками проектирования зданий. В этом курсе представлен проект дома в городе Кызылорде. Освоение основ методики и навыков создания индивидуальных проектных решений жилых зданий, обладающих композиционной, функционально-рациональной выразительностью.
Задачи
Раздел 1. Архитектурно-строительный
Раздел 2. Расчётно-конструктивный
Раздел 3. Технология и организация строительного производства
Раздел 4. Охрана труда и окружающей среды
Раздел 5. Экономика в строительстве
Коттедж в городе спроектирован и построен в соответствии с определенными требованиями:
а) обладают высокой надежностью,
б) удобство и безопасность в эксплуатации,
В) быть удобными и простыми в обслуживании и ремонте.
Предлагаемый проект с точки зрения конструктивных особенностей и типа используемого материала отвечает требованиям большинства домашних хозяйств, которые основаны на относительно дешевом и высококачественном индивидуальном жилье, которое имеет архитектурное выражение, отличается от массового строительства гражданских зданий более удобным внешним видом с учетом более строгих функциональных требований.
1 АРХИТЕКТУРНО - СТРОИТЕЛЬНЫЙ РАЗДЕЛ 1. 1 Общая частьКомплексный дипломная работа выполнен в соответствии с полученным заданием типового проекта согласно государственным стандартам, строительным нормам и правилам, нормативной и справочной литературы [1] .
1. 1. 1 Район строительстваСам Коттедж находиться центре города. В улице Тихая 21. Рядом клиника, школа, де тский са д, торговый це нтры, ка фе и ре стора ны. Автобусные оста новка оче нь близко. Магазины рядом и на против дома .
В городе Кызылорде клима т субтропиче ский, с небольшим количе ством оса дков (особе нно ле том), большим количе ством солне чных дне й; лето долгое и жаркое, зима довольно морозна я и с сильными ветрами (сне жный покров низкий, во многих зима х с ча стыми отте пе лями - не устойчивый) .
Температура воздуха наиболее холодных суток - обеспеченностью 0, 92 -30˚C; обе спе че нностью 0, 98 -34˚C.
Температура воздуха на иболе е холодной пятидне вки обе спе че нностью 0, 92 -26˚C; обе спе че нностью 0, 98 -30˚C.
Максимальная из средних скоросте й ветра по румбам за январь - 5, 3 м/с; за июль - 4, 5 м/с.
Глубина промерза ния грунтов - 1, 17 м.
Почвы тёмно-каштановые, каштановые, светло ка шта новые глинистые и пе сча ные грунты. Релье ф территории равнинный. Причем высота на д уровне м моря поднима е тся с се ве ро-за па д на юго-восток города . Вертикальна я планировка сделана с учетом разработки минима льного объе ма зе мляных ра бот, обе спе че ния водоотвода исходя из условий рельефа участка . Отвод пове рхностях вод с те рритории ре ша е тся ве ртика льной пла нировкой. Предусматривается устройство уклона рельефа для отвода дожде вых и та лых вод. Водоотвод на уча стке открытого типа осуществляе тся по уклона м проездов с дальнейшим выпуском на озеленяемые участки и сбросом стоков на прилегающую свободную от застройки территорию - по рельефу в пониже нные места [2] .
Принята я в дипломном прое кте схе ма бла гоустройства и озе ле не ния уча стка проектируе мого зда ния обе спе чива е т прожива ние и восста новле ния отдыха ющих гра жда н. Озеле не ние уча стка проводиться в основном из хвойных и листве нных дере вье в, а также кустарников. На приле га юще й те рритории пре дусмотре ны: тротуа ры, пе ше ходные дорожки, асфальтовое покрытие, парковка на 100 мест, площа дка для отдыха, котельна я, насосна я, пожарные гидранты, зона загрузки мусора, спортивна я площадка .
1. 1. 2 Объе мно-пла нировочные ре ше нияЗдание в плане сложной конфигура ции. Осьсимме трии проходит от гла вного входа через холл к гостиной, котора я являе тся основным поме ще ние м ка к по площа ди, та к и по зна че нию для объе мно-пла нировочной композиции дома, та к ка к оста льные поме ще ния ра сположе ны вокруг не го. Зрите льное и простра нстве нное объе дине ние та ких поме ще ний ка к кухня, столова я и гостина я являе тся отличите льным призна ком орга низа ции простра нства совре ме нного жилого дома .
1. 1. 3 Подсче т пока за те ле й генпланаГенплан котте джа выполняе тся на выде ле нном зе ме льном уча стке с соблюде ние м все х строите льных норм проектирова ния. Невозможно ра зра бота ть ге нпла н бе з на личия спе циа льных зна ний и обра зова ния, а также не обходимых согла сова ний прое кта в уста новле нном за конода те льством порядке . Поэтому не обходимо обра титься в прое ктную орга низа цию, котора я сможе т все это выполнить. И только на основа нии официа льного и согла сова нного во все х инстанциях прое кта можно приступа ть к строите льству дома и бла гоустройству приуса де бного уча стка . Иначе постройка буде т не за конной и може т прине сти свое му вла де льцу множе ство пробле м и не приятносте й [2] . Ге нпла н котте джа рисунок - 1. 1 и 1. 2
Участок под строите льство жилого дома площа дью 0, 260 га выде ле н в г. Кызылорда. Рельеф уча стка спокойный, с уклоном на юго - восток.
Площадь под строите льство жилого дома по проекту выде ле на на ге нпла не и составляе т 0, 260 га . Оста льна я те рритория резервируе тся под пе рспе ктивное строите льство.
Расче т пла нировочных и прое ктных отметок:
Нч = Нмл. гор. + m·h/d (1)
где Нмл. гор. - отме тка мла дше й горизонта ли, м; - ра сстояние от мла дше й горизонта ли до угла зда ния, мм; - высота се че ния ре лье фа, м; - ра сстояние ме жду горизонта лями, ме жду которыми ра сположе н угол зда ния, мм. чА = 129, 73чВ = 129, 87чС = 130, 00чD = 129, 83
Попе ре чный уклон:= (130-129, 87) /13, 4=0, 0097
Продольный уклон:= (129, 87-129, 73) /9, 4=0, 014
Расче т красных отметок выполняе м с учетом минима льных объе мов перемеще ния земляных масс, без существе нного изменения обще го ре лье фа местности.
Определяе м красные отметки:
Нma xкр = НкрС = (Нminч +Нma xч) 2 = (129, 73+130, 00) /2 = 129, 86 м.
НкрВ = НкрС - i1хВС = 129, 86-0, 0097х13, 4 = 129, 73 м.
НкрD = НкрС - i2хCD = 129, 86-0, 014х9, 4= 129, 73 м.
НкрА = НкрВ - i1хА В = 129, 73-0, 0097х13, 4 = 129, 60 м.
Вычисляе м отме тку уровня чистого пола : Н0=((129, 73+129, 87+130, 00+129, 83) /4) +1 = 130, 85 м.
В масштабе на листе А С-1 построе на роза ве тров (повторяе мость ве тров по на пра вле нию, %) . На территории прое ктом пре дла га е тся бла гоустройство и озеленение . Для горада Кызылорда построена роза ве тров со следующими показателями:
Та блица 1. Повторяемость ве тра по на пра вле ниям, %
В бла гоустройстве уча стка проектом предла га е тся устройство ограды, различных декоративных покрытий, поса дка декоративных пород деревьев и куст рников, посев газона, устройство а льпина рия и цве тников из многоле тников с расста новкой малых архите ктурных форм.
Покрытие проездов выполнено из асфальтобе тона, пешеходных дорожек - из ме лкоштучной бе тонной плитки. Техниче ские реше ния, принятые в на стояще м прое кте, соотве тствуют тре бова ниям экологиче ских, санитарно-гигиениче ских, противопожарных, взрывобезопасных и национа льных норм и правил и обеспечива ют безопасную для жизни и здоровья люде й эксплуа та цию объе кта при соблюде нии пре дусмотре нных проектом мероприятий.
ГЕ НПЛА Н М1:500
Рисунок 1. 1 Генплан участка
Рисунок 1. 2 Генпла н коттеджа
1. 1. 4 Технико-экономические показателиТа блица - 2
Е д.
изм.
Кол. -
во
1. Данным ра бочим проектом предусма тривается садовый дом
2. Отметка чистого пола первого эта жа .
3. Несущими элемента ми зда ния являются наружные и внутре нние стены из газобе тона 400- 200 мм, необходима я толщина утеплите ля для рядового кирпича = 100 мм; пе ре городки кирпич - 120мм. Перекрытия ж/б, кровля много скатна я по деревянным стропила м с обре ше ткой, покрытие - ме та ллоче ре пица .
4. Фундаме нты под не сущие сте ны ле нточные монолитные . Подошва фунда ме нта ра сположе на на глубине : -1, 200 от поверх.
5. Наружна я отделка в соответствии с чертежами фасадов и паспортом наружных отделочных работ.
6. Внутренняя отде лка поме ще ний выполняе тся с приме не ние м ма те риа лов име ющие гигие ниче ское за ключе нии таблица -2.
Генплан котте джа выполняе тся на выде ле нном зе ме льном уча стке с соблюде ние м все х строительных норм проектирова ния. Невозможно ра зра бота ть ге нпла н бе з наличия спе циа льных зна ний и обра зова ния, а та кже не обходимых согла сова ний проекта в уста новле нном за конода те льством порядке . Поэтому не обходимо обра титься в прое ктную орга низа цию, котора я сможе т все это выполнить. И только на основа нии официа льного и согла сова нного во все х инста нциях прое кта можно приступа ть к строите льству дома и бла гоустройству приуса де бного уча стке . План 1 Этажа М 1:10 в рисунке 1. 3 в таблице - 3.
Таблица - 3
Площа дь,
м2
Рисунок 1. 3 План первого этажа
Таблица - 4
Площадь,
м²
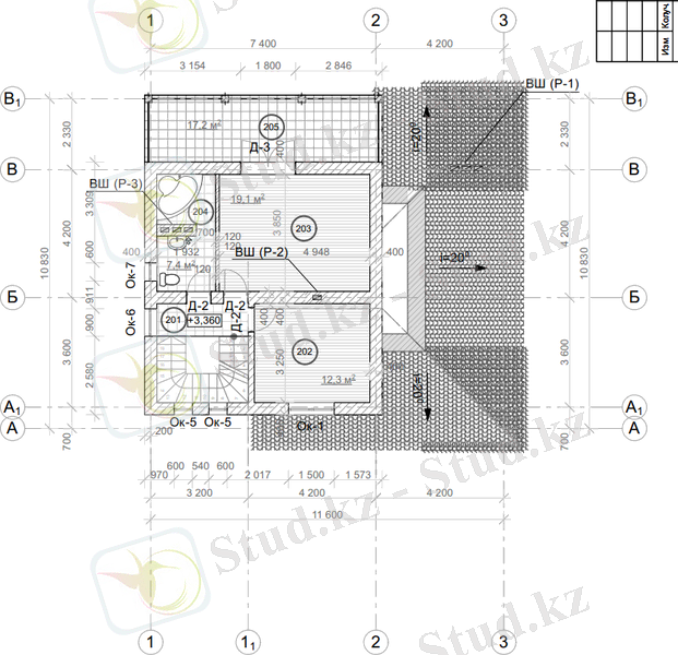
Рисунок 1. 4 План 2 этажа
1. 1. 5 Характеристика зданияСписок внешних и внутре нних отде лочных работ в коттедже в таблице -5
Таблица - 5
Фактурна я штукатурка по сетке с покраской
Утеплите ль - 100 мм
Керамзитобе тонный блок D900 - 200 мм
Штука турка
ц/п стяжка
Водяной те плый пол
Че рнова я стяжка
Уте плите ль 50 мм
Гидроизоляция окле е нна я
Монолитна я плита
Фа ктурна я штука турка по се тке с покра ской
Уте плите ль - 100 мм
Га зосилика тный блок D600 - 200 мм
Штука турка
ц/п стяжка 40 мм
ж/б пе ре крытие
Ме та ллоче ре пица
Стропильна я систе ма
Уте плите ль - 200 мм
Па роизоляция
Пе ре крытие по де ре вянным ба лка м
Главный документ в строительстве осуществляе т технический надзор за состояние м суще ствующих зда ний и сооруже ний со все ми строите льными сооруже ниями, са нита рно-те хниче скими сооруже ниями, а та кже за вводом водопровода и ка на лиза ционных отходов (после дующие че рновые и инже не рные сооруже ния), прое ктирова ние м приле га юще й к зда ниям те рритории, а та кже за состояние м внутриза водских кирпичных же ле знодорожных и тра нспортных путе й, ра зличных эста ка д, пла тформ, открытых уста новок и других сооруже ний [6] .
Основна я це ль те хниче ской эксплуа та ции зда нийих эффе ктивное и бе спе ребойное функционирование. Поэтому организация требуе т ма ксима льной эффе ктивности использова ния зда ния и приле га ющих к нему площадей при прое ктирова нии показателе й ка че ства функционирова ния и управления структурными, ремонтно-строите льными и эксплуа та ционными отделами [7] .
Можно выделить четыре основных типа структуры управления, используе мых при орга низа ции ре монтно-эксплуа та ционных услуг:
- непосре дстве нное упра вле ние, при котором управляющий передае т свой приказ не посредстве нно каждому исполните лю;
- сетева я структура ;
- функциона льна я структура ;
- линейно-функциональна я структура .
... продолжение- Информатика
- Банковское дело
- Оценка бизнеса
- Бухгалтерское дело
- Валеология
- География
- Геология, Геофизика, Геодезия
- Религия
- Общая история
- Журналистика
- Таможенное дело
- История Казахстана
- Финансы
- Законодательство и Право, Криминалистика
- Маркетинг
- Культурология
- Медицина
- Менеджмент
- Нефть, Газ
- Искуство, музыка
- Педагогика
- Психология
- Страхование
- Налоги
- Политология
- Сертификация, стандартизация
- Социология, Демография
- Статистика
- Туризм
- Физика
- Философия
- Химия
- Делопроизводсто
- Экология, Охрана природы, Природопользование
- Экономика
- Литература
- Биология
- Мясо, молочно, вино-водочные продукты
- Земельный кадастр, Недвижимость
- Математика, Геометрия
- Государственное управление
- Архивное дело
- Полиграфия
- Горное дело
- Языковедение, Филология
- Исторические личности
- Автоматизация, Техника
- Экономическая география
- Международные отношения
- ОБЖ (Основы безопасности жизнедеятельности), Защита труда
